电脑桌面
添加小米粒文库到电脑桌面
安装后可以在桌面快捷访问

建筑面积(作业)

建筑面积(作业)_第1页
1/10
建筑面积(作业)_第2页
2/10
建筑面积(作业)_第3页
3/10
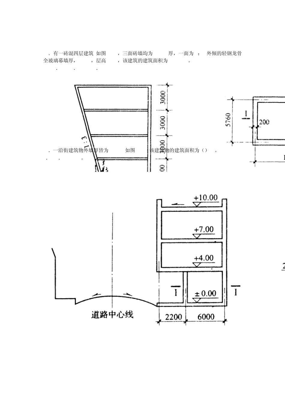
作业: 1.如图4-1所示为某建筑物地下室的剖面图,地下室外墙外边线的尺寸分别为60m×15m(墙厚 240mm)层高为2.1m,采光井的建筑面积为50m2,防潮层沿外墙设置,厚度为50mm,高度为200mm根据《建设工程建筑面积计算规范》,计算此地下室的建筑面积()m2。 A.450 B.457.51 C.500 D.900 2.某六层建筑物的局部标准层平面图如图所示(墙厚 240mm),已知三个阳台的面积均为1.5m2,阳台 1和阳台 2不封闭、阳台 3全封闭,根据《建设工程建筑面积计算规范》,计算此建筑物的建筑面积(一层不设阳台)为()m2 A.5508.35 B. 5512.l C. 5515.85 D.5530.85 3.以下说法正确的是( )。 A.建筑物内设备管道夹层可计算建筑面积 B.建筑面积包括有效面积与结构面积 C.地下人防通道应计算建筑面积 D.宽度等于 2.10m的无柱雨篷按雨篷结构板的水平投影面积的一半计算建筑面积 4.某住宅建筑各层外围水平面积为400m2,共 6层,二层以上每层有两个阳台,每个水平面积为5m2(有围护结构),建筑中间设置宽度为300mm变形缝一条,缝长 10m,则该建筑的总建筑面积为()m2 A.2422 B.2407 C.2450 D.2425 5.一栋四层坡屋顶住宅楼,勒脚以上结构外围水平面积每层为930m2,l~3层层高3.0m。建筑物顶层全部加以利用,净高超过2.1m的面积为410m2,净高在1.2~2.1m的部位面积为200m2,其余部位净高小于1.2m,该住宅楼的建筑面积为()m2 A.3100 B.3300 C.3400 D.3720 6.某单层建筑物的局部平面图如图所示(墙厚240mm),层高为3m,外墙保温层厚度为50mm,门洞口尺寸为2000mm x 900mm,附墙柱的断面为4 00mm ×500mm,飘窗的尺寸如图所示,根据《建设工程建筑面积计算规范》GB/T 50353,计算此单层建筑物的建筑面积为( )m2。 A. 113.82 B. 116.28 C.116.58 D.116.64 7.某层高3.6m的六层建筑,每层建筑丽积力 2000m2,建筑内有一7.2m高的中央圆形大厅,直径 10m,环绕大厅有一层半圆回廊。回廊宽 2m,层高3.60m。则该建筑的建筑面积为( )m2。 A.12025 B.11946 C.12031 D. 11953 8.以下不应该按 1/2计算建筑面积的是( )。 A.有围护结构的挑阳台 B.层高为1.8的设备管道夹层 C.坡屋顶内净高大于1.2m的部分 D.建筑内大厅回廊层高2.1m时 10.有一建筑顶层设计为储藏室(平面如图4-4),四面墙厚为360mm,则该层的建筑面积为( )m2 A.60 B.30 C .40.50 D.52.55 11.有一砖混四层建筑(如...

1、当您付费下载文档后,您只拥有了使用权限,并不意味着购买了版权,文档只能用于自身使用,不得用于其他商业用途(如 [转卖]进行直接盈利或[编辑后售卖]进行间接盈利)。
2、本站所有内容均由合作方或网友上传,本站不对文档的完整性、权威性及其观点立场正确性做任何保证或承诺!文档内容仅供研究参考,付费前请自行鉴别。
3、如文档内容存在违规,或者侵犯商业秘密、侵犯著作权等,请点击“违规举报”。

碎片内容

建筑面积(作业)

小辰6+ 关注
实名认证
内容提供者

出售各种资料和文档

确认删除?
VIP
微信客服
  • 扫码咨询
会员Q群
  • 会员专属群点击这里加入QQ群
客服邮箱
回到顶部