电脑桌面
添加小米粒文库到电脑桌面
安装后可以在桌面快捷访问

无阀滤池过滤器VIP专享

无阀滤池过滤器_第1页
1/8
无阀滤池过滤器_第2页
2/8
无阀滤池过滤器_第3页
3/8
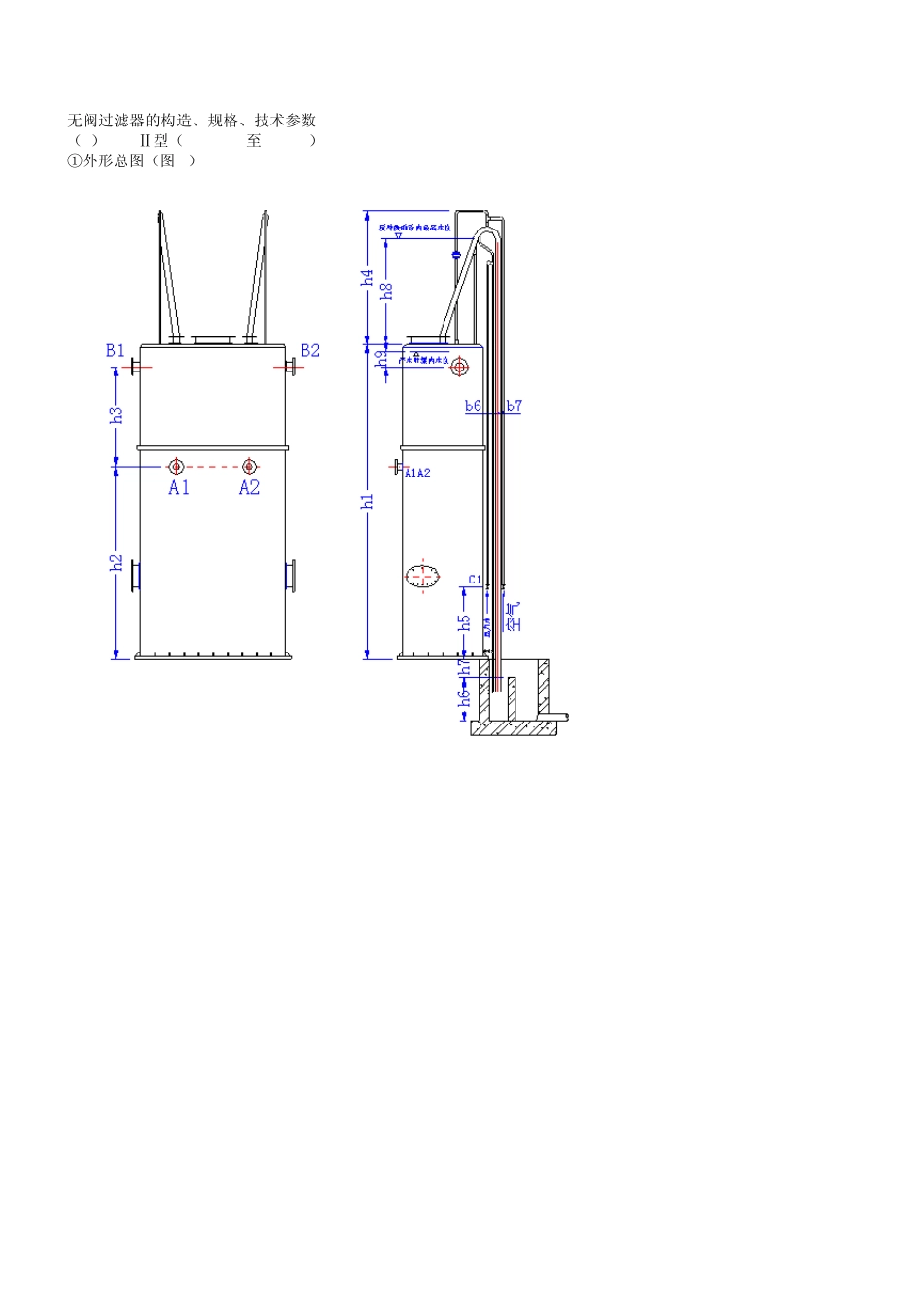
无阀滤池过滤器 钢制重力式无阀过滤器系列产品广泛应用于地表水净化、地下水除铁除锰、循环水旁流过滤、生产废水除悬浮杂质、有机污水经生化处理和二次沉淀池处理之后的后续过滤以及室内游泳池水的过滤,是一种理想的水处理设备。 无阀过滤器有二大系列:一类是滤池为方形CBL-Ⅱ型,过滤水量有20m3/h至 175m3/h;另一类滤池为圆形DLB-Ⅱ、DLB-Ⅲ型,过滤水量有20m3/h至 80m3/h、200m3/h至 750m3/h。其中过滤水量为20m3/h至 175m3/h的均整体运输至现场,过滤水量为200m3/h至 750m3/h的,由我公司预制成几部分,运至现场拼装而成,再经防腐后交付施工单位,装填滤料后即可调试和运行。 型式标准举例: CBL-Ⅱ、DLB-Ⅱ、DLB-Ⅲ型系列钢制式无阀过滤器进水、出水、冲洗及排水均不用阀门,靠水利作用自动运行,运行费用低,管理方便,安全可靠,运行自动化,设备一体化,进水箱、过滤器、反冲洗水箱组装一体,结构紧凑,用户只需按要求做设备基础和接通进出水管即可投入运行。同时,该过滤器系类产品均装有顶盖,卫生防护条件好,可以露天设置,与钢筋混凝土滤池相比自重小,采用沥青砂柔性基础。 二、钢制重力式无阀过滤器原理和设计参数 (一)基础原理简介 原水由进水管送入滤池,经过滤层自上而下地过滤,清水即从连通管注入存水箱内贮存,水箱充满后,水通过出水管入清水池,滤层不断截留悬浮物,造成滤层阻力的逐渐增加,因而促使虹吸管内的水位不断升高。当水位达到虹吸辅助管管口时,水自该管中落下,通过抽气管借以带走虹吸下降管中的空气,当真空度达到一定值时,便发生虹吸作用。这时水管中的水自下而上地通过滤层,对滤料进行反冲洗。当冲洗水箱水面下降至虹吸破坏管时,空气进入虹吸管,破坏虹吸作用。滤池反冲洗结束,进入下一周期工作,应而无需象其它过滤器那样,必须设置反冲洗水泵和反冲洗水塔。 本 系 列 过 滤 器 的 较 大 规 格 产 品 中 , 与 国 标 图 的 钢 筋 混 凝 土 重 力 式 无 阀 过 滤 池 相 比 , 增 加 了 每 组 三 座 系 列 , 期 终 水 头 损 失 最 大 许可 值 由 国 际 图 的 1.70米 增 加 了 1.50米 和 1.90米 两 档 次 , 为 净 水 厂 设 计 的 高 程 布 置 提 供 了 方 便 选 择 的 产 品 。 ( 二 ) 设 计 参 数 1、 平 均 滤 速 : 10 米 /时 2、 平 均 反 冲 洗 强 度...

1、当您付费下载文档后,您只拥有了使用权限,并不意味着购买了版权,文档只能用于自身使用,不得用于其他商业用途(如 [转卖]进行直接盈利或[编辑后售卖]进行间接盈利)。
2、本站所有内容均由合作方或网友上传,本站不对文档的完整性、权威性及其观点立场正确性做任何保证或承诺!文档内容仅供研究参考,付费前请自行鉴别。
3、如文档内容存在违规,或者侵犯商业秘密、侵犯著作权等,请点击“违规举报”。

碎片内容

无阀滤池过滤器

确认删除?
VIP
微信客服
  • 扫码咨询
会员Q群
  • 会员专属群点击这里加入QQ群
客服邮箱
回到顶部