电脑桌面
添加小米粒文库到电脑桌面
安装后可以在桌面快捷访问

FANUC硬件连接图v1.2

FANUC硬件连接图v1.2_第1页
1/17
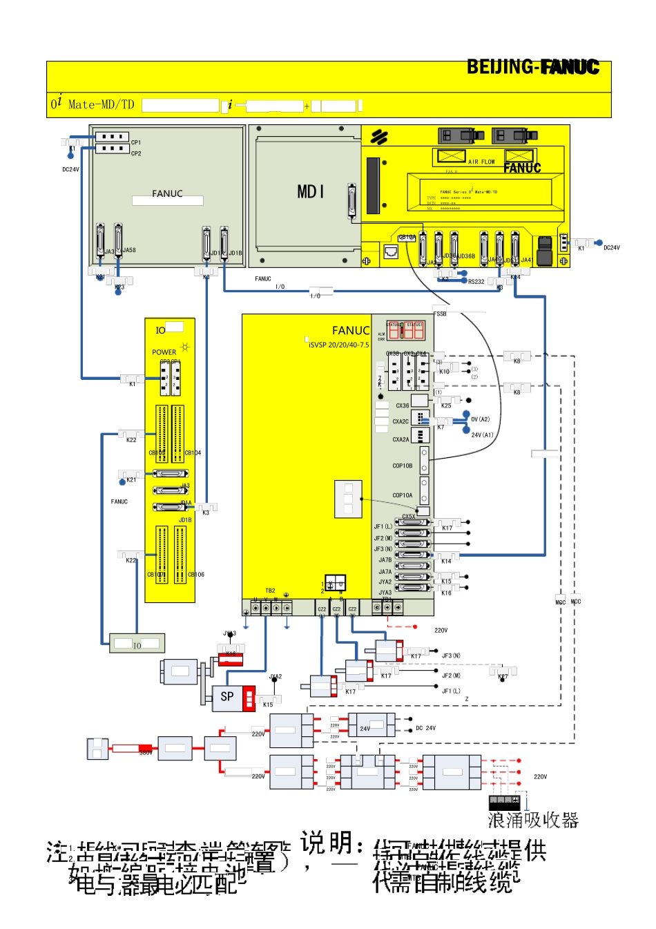
FANUC硬件连接图v1.2_第2页
2/17
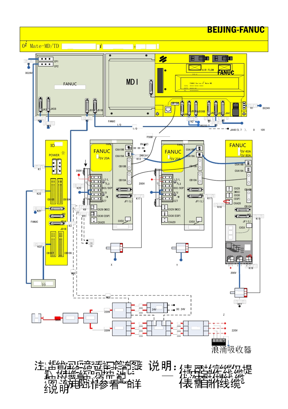
FANUC硬件连接图v1.2_第3页
3/17
FANUC380V220V220VFANUC24VDC 24V220V220V220V220V220V220V220V220V220VSTATUSCX5XCXA2ACXA2BCB10ACB10BSTATUSCXA2APLALMERRSTATUSCXA2ACXA2BSTATUSCX5XCXA2ACXA2BCB10ACB10BDC300VDC300VDC300VDC300VDC300VDC300V200VCX1A CX1BSRCX3MCCCX4ESPMCCMCCCZ2CZ2(L)CZ2(M)CZ2L1L2L3AB12CZ1AC200-240V(3)(2)(1)(3)(1)(3)(2)CP1CP2AIR FLOWFAN 0FAN 1FANUC Series 0i MD/TDTYPE****-****-****DATE****-**NO.*********JA41JD51JA40JD36BJD36AJA2CB10ACP1FSSBI/OJD1BJD1AJA58JA3DC24VK1K1DC24VJX4JY1JA7BJA7AJYA2JYA3JYA4JX5JF1(L)JF2(M)JX5JF1(L)K23K14K10K15K8K16K17K14K3K2RS232K12K17K6IOMDIK21ZSPK15K16 CZ2FANUCI/OJX1BCX37K26IOPOW ERCP2 CP1321321JD1AJD1BCB105CB104CB106CB107JA3FANUCK21FANUCMTBFANUCMTB1.K*2.3.K1K22K22K3K3UVWAB12UVWAB12UVWAB12K27UVWAB121 2 3BEIJING-FANUC0i MD/TDi+FANUCiSVSP 20/20/40-7.5U220VTB1JF3(N)JF2(M)JF1(L)JYA2COP10ACX5XCX3 CX4CZ2(L)CZ2(M)CZ2(N)380V220V220V220V220V220V220V220V220V24V220V220VDC 24VCXA2AWUVAB12TB2VW(2)(3)JA7AIOPOWERCP2CP1JD1AJD1BCB105CB104CB106CB107K22FANUCK17K15K17K17K17K16K21K22FANUCFANUCCP1CP2AIR FLOWFAN 0FAN 1FANUC Series 0i Mate-MD/TDTYPE ****-****-****DATE ****-**NO. *********JA41JD51JA40CB10ACP1JD36BJD36AJA2I/OJD1BJD1AJA58JA3DC24VK1K1DC24VK23K3K2RS232K21K3FSSBK14K3K14ZK27FANUCI/OSPK15K16JYA3321321321MCCMCC(3)K8(1)K10CX38K8CXA2C0V(A2)24V(A1)CX36STATUS1STATUS2ALMERRCOP10BK25K27MDIFANUCMTBFANUCMTB1.K*2.3.BEIJING-FANUC0i Mate-MD/TD i+FANUCK1321321JA3IOJYA2JYA3JA7BJF1(L)JF2(M)JF3(N)`K7220V1 2 30i Mate-MD/TD i+380V220V220ViSV 40AL1L2L3AB21UVWAB21RCRCREAB21R1CZ4CZ5CZ6CZ4CZ5CZ6FANUC200ViSV 80ACXA19ACXA19BCB10ACB10BCX5XL2/L1/L3DCC/DCPV/U/WCZ7FANUCiSV 20AFAN/CXA19ACXA19BCB10ACB10BCX5XCX29(MCC)CX30(ESP)CXA20L2/L1/L3DCC/DCPV/U/WCZ7FANUCiSV 20AFAN/CXA19ACXA19BCB10ACB10BCX29(MCC)CX30(ESP)CXA20JA40(5,7),010VOV(A2)24V(A1)MCC24VDC 24V220V220V220V220V220V220V220V220VMCCBEIJING-FANUCCX29(MCC)CX30(ESP)CXA20(1)(3)IOPOW ERCP2CP1321321JD1AJD1BCB105CB104CB106CB107K22JA3FANUCK5JF1(L)JX5200V200V(1)(3)K21K17K9K11K17K13K18K17K19K4K22FANUCFANUCCP1CP2AIR FLOWFAN 0FAN...

1、当您付费下载文档后,您只拥有了使用权限,并不意味着购买了版权,文档只能用于自身使用,不得用于其他商业用途(如 [转卖]进行直接盈利或[编辑后售卖]进行间接盈利)。
2、本站所有内容均由合作方或网友上传,本站不对文档的完整性、权威性及其观点立场正确性做任何保证或承诺!文档内容仅供研究参考,付费前请自行鉴别。
3、如文档内容存在违规,或者侵犯商业秘密、侵犯著作权等,请点击“违规举报”。

碎片内容

FANUC硬件连接图v1.2

确认删除?
VIP
微信客服
  • 扫码咨询
会员Q群
  • 会员专属群点击这里加入QQ群
客服邮箱
回到顶部