电脑桌面
添加小米粒文库到电脑桌面
安装后可以在桌面快捷访问

史上最全最强幕墙专业英语

史上最全最强幕墙专业英语_第1页
1/14
史上最全最强幕墙专业英语_第2页
2/14
史上最全最强幕墙专业英语_第3页
3/14
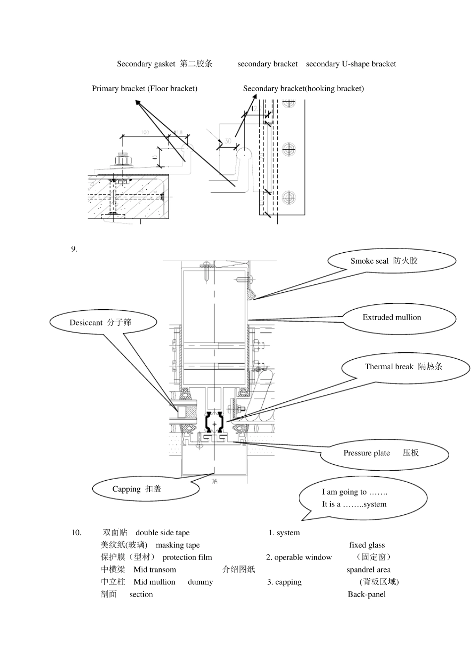
幕墙专业英语 1. 幕墙国际会议自我介绍: 名字:My English name is Andrew. 公司:I represent JiangHe curtain wall company. 职责(主要负责事物):I am in charge of structural calculation/design & fabrication drawing/tender drawing. 3. 幕墙中常用的变形:deflection, 而不是deformation. Deflection: the degree to which the moving part on a measuring instrument moves away from zero. Deformation: the progress of changing the shape of something in a way that spoil its usefulness or appearance. D.L dead load 永久荷载 4. 常用的荷载缩写 W.L wind load 风荷载 L.L live load 活荷载 5.表面处理可分为两种:(1). Type of finish (2). Surface treatment Natural Anodize 镀银色(本色) Black Anodize 镀黑色 Bronze Anodize 镀铜色 Hot dipped galvanize 热镀 stick curtain wall system 框架式幕墙 6. Electrical galvanize 电镀 unitized curtain wall system 单元式幕墙 Tower 主楼 分格 division 方管 square section 7. Podium 群楼 格栅 lattice 圆管 round pipe Primary gasket 第一胶条 primary bracket steel primary bracket 8. gasket 转角连接 1. 镜面:mirror 2. 亚 satin['sæ tin] 3. 拉丝:hair line nondirectional 1. PVDF /Fluorocarbon coating 2. PC. Powder coating 粉末喷涂 3. Anodize 阳极电镀/氧化 Secondary gasket 第二胶条 secondary bracket secondary U-shape bracket Primary bracket (Floor bracket) Secondary bracket(hooking bracket) 9. 10. 双面贴 double side tape 1. system 美纹纸(玻璃) masking tape fixed glass 保护膜(型材) protection film 2. operable window (固定窗) 中横梁 Mid transom 介绍图纸 spandrel area 中立柱 Mid mullion dummy 3. capping (背板区域) 剖面 section Back-panel Smoke seal 防火胶 Extruded mullion Pressure plate 压板 Capping 扣盖 Thermal break 隔热条 Desiccant 分子筛 I am going to ……. It is a ……..system 平面 plan (背板) 立面 elevation [,eli'veiʃən] 4....

1、当您付费下载文档后,您只拥有了使用权限,并不意味着购买了版权,文档只能用于自身使用,不得用于其他商业用途(如 [转卖]进行直接盈利或[编辑后售卖]进行间接盈利)。
2、本站所有内容均由合作方或网友上传,本站不对文档的完整性、权威性及其观点立场正确性做任何保证或承诺!文档内容仅供研究参考,付费前请自行鉴别。
3、如文档内容存在违规,或者侵犯商业秘密、侵犯著作权等,请点击“违规举报”。

碎片内容

史上最全最强幕墙专业英语

您可能关注的文档

确认删除?
VIP
微信客服
  • 扫码咨询
会员Q群
  • 会员专属群点击这里加入QQ群
客服邮箱
回到顶部