电脑桌面
添加小米粒文库到电脑桌面
安装后可以在桌面快捷访问

树脂雨水槽施工工法

树脂雨水槽施工工法_第1页
1/4
树脂雨水槽施工工法_第2页
2/4
树脂雨水槽施工工法_第3页
3/4
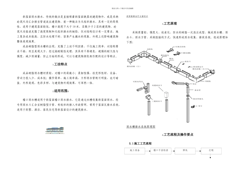
精品文档---下载后可任意编辑斜屋面雨水排水,传统的做法是直接顺着斜屋面跌落到建筑物外,或是采纳砼筑天沟汇合排至管道流出建筑物。前一种做法为无组织排水,具有一定的局限性,适用于建筑屋面较低,檐口高度不大于 10 米,层数少于 2 层的建筑物。砼筑天沟虽说克服了高度限制和无组织排水的缺陷,但对结构设计有一定要求,施工复杂成本较高,且防水处理不好,容易产生漏水的现象,外观上还影响建筑物整体美观效果。成品树脂型雨水槽的出现,克服了上述不利因素,不仅施工简单,对结构要求不高,而且美观大方,经过高耐候性处理,其具有不易褪色,超强的耐久性与强度,减少雨滴量,防止污垢的形成, 可以与建筑物颜色相匹配的设计等特点。1.工法特点成品树脂雨水槽材质轻,对檐口的荷载小;柔韧性强,抗变形性好,设备、劳动力投入少,成本低;操作简单、施工效率高,方形雨水管既可明装,也可暗装。外形美观,色彩多样,与建筑物外观效果,可浑然一体。2.适用范围:檐口雨水槽适用于斜屋面檐口雨水排水,它是通过水槽收集斜屋面雨水,经专用雨水斗汇合至树脂型方管,有组织的排入市政管网。常用于屋面瓦排水系统,适用于别墅、酒店、居民住宅等斜屋面设计的建筑排水。迎宾馆宴会厅立面设计3.工艺原理采纳质量轻、强度大、抗老化、防水的树脂一次浇注成型,做成雨水槽、雨水斗、雨水方管,采纳胶接的方式,快速形成雨水收集、排放系统。组成原理如下图:雨水槽排水系统原理图4.工艺流程及操作要点5.1 施工工艺流程施工准备檐口平面检查弹线打眼精品文档---下载后可任意编辑5.2 操作要点5 施工准备1 检查外墙脚手架搭设是否安全牢固,屋檐处作业脚手架是否阻挡雨水槽安装。2 根据屋檐结构转向准备相应的雨水槽连接配件,配件装箱、水槽成包及工具搬运至作业脚手架处,安全存放,切勿坠落伤人。3 每组安排工人最少 2 人,一人操作工具施工,一人配合。5.2.2 檐口检查采纳铅垂吊线检查檐口侧壁抹灰是否平整,对不平整的部位进行剔凿找平,木饰面檐口不平处交与外装饰工人重新调整平整后,再进行下一步工序。5在雨水槽安装位置打水平,从起始端开始到末端用墨汁弹线。打眼:每个檐沟挂钩底座有 3 个小孔,呈倒三角分布,底座固定于檐口墙面。先用卷尺根据~米的间距量好檐沟挂钩安装位置,并根据雨水斗设置位置,转角,末端等位置适当增加檐沟挂钩设置。打眼时,1 人用铅笔以檐沟挂钩底座为模型在弹线位置画好打眼记号,另 1 人随...

1、当您付费下载文档后,您只拥有了使用权限,并不意味着购买了版权,文档只能用于自身使用,不得用于其他商业用途(如 [转卖]进行直接盈利或[编辑后售卖]进行间接盈利)。
2、本站所有内容均由合作方或网友上传,本站不对文档的完整性、权威性及其观点立场正确性做任何保证或承诺!文档内容仅供研究参考,付费前请自行鉴别。
3、如文档内容存在违规,或者侵犯商业秘密、侵犯著作权等,请点击“违规举报”。

碎片内容

树脂雨水槽施工工法

确认删除?
VIP
微信客服
  • 扫码咨询
会员Q群
  • 会员专属群点击这里加入QQ群
客服邮箱
回到顶部