电脑桌面
添加小米粒文库到电脑桌面
安装后可以在桌面快捷访问

模板及支撑工程施工专项方案

模板及支撑工程施工专项方案_第1页
1/14
模板及支撑工程施工专项方案_第2页
2/14
模板及支撑工程施工专项方案_第3页
3/14
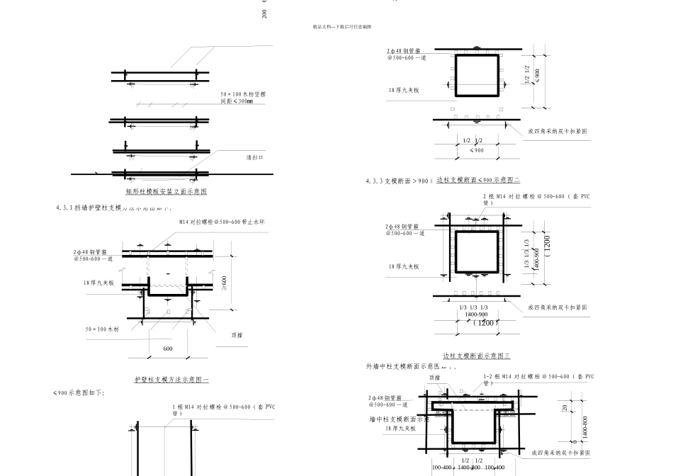
3mm 厚 50×50mm 冲孔止水片,居中电弧焊满精品文档---下载后可任意编辑一、工程概况1. 工程名称: 解甲庄中学-中学综合楼;宿舍、餐厅综合楼;小学综合楼;风雨操场工程建设项目2. 工程地点:烟台市莱山区解甲庄镇东解村村东3. 建设性质:新建,㎡,㎡㎡㎡㎡5. 建设单位:烟台市莱山区人民政府解甲庄街道办事处6. 设计单位:山东圣凯建筑设计咨询有限公司7. 监理单位:山东德林工程项目管理有限公司8. 结构形式:独立基础;框架结构二、方案选用1、模板及支撑的选用原则要有足够刚度及稳定性,能承受新浇混凝土及模板的重量及混凝土振捣时产生的侧压力以及施工中产生的荷载。2、模板:基础及主体结构工程梁、柱、墙等竖向结构均采纳九夹板木模板,厚 18mm,φ12 或φ14 高强丝杆加固(有防水要求的设止水环);楼板采纳九夹板木模板,厚 18mm,主体框架配三层楼的模板及支撑。墙板九夹板木模板外侧采纳 50×100mm 木枋作背枋。3、支撑系统:采纳扣件式钢管脚手架。三、施工准备1、作好模板的定位基准工作。进行控制线和位置线的放线:首先用经纬仪引测建筑物的墙轴线,并以该轴线为起点,引出每条轴线,模板放线时,应先清理现场,然后根据施工图,用墨线弹出墙模板的内外边线和控制线,以便模板的安装和校正。2、作好标高量测工作:用水准仪把建筑物水平标高根据模板实际标高的要求,直接引测到模板排放位置。3、进行安装面的找平:为防止模板底部漏浆,采纳与砼等级相同的水泥砂浆找平或泡沫塑料找平。4、设置模板定位基准:采纳短钢筋定位,即根据构件断面尺寸,切割一定长度短钢筋,点焊在主筋上,保证钢筋与模板位置的准确。5、模板工程检查重点检查其刚度、垂直度、平整度,特别注意外围墙模,电梯井、楼梯间等处模板位置的正确性。四、模板安装1、宿舍、餐厅综合楼有电梯一部,地下部分具有防水要求2、墙、柱模板及支撑柱、墙施工技术措施:2.2.1 水平施工缝采纳膨胀止水条,竖向施工缝采纳 LB 钢板膨胀橡胶腻子止水带缝材料,崁居中安装。 2.2.2 对拉螺栓施工方法:挡墙防水设计要求为抗渗混凝土,模板加固采纳 M12 或 M14 止水对拉螺栓,采纳 M12 止水对拉螺栓时,间距横竖向每 500mm 一个。如采纳 M14 止水对拉螺栓时,间距横竖向每 600mm 一个。2.2.3 止水对拉螺栓加工及安装 如下图所示:柱、 墙模板支撑示意图 安全栏杆高 1200㎜室内地坪施工缝 H+300C15 砼垫 100 厚止水对拉螺栓纵横间距@500...

1、当您付费下载文档后,您只拥有了使用权限,并不意味着购买了版权,文档只能用于自身使用,不得用于其他商业用途(如 [转卖]进行直接盈利或[编辑后售卖]进行间接盈利)。
2、本站所有内容均由合作方或网友上传,本站不对文档的完整性、权威性及其观点立场正确性做任何保证或承诺!文档内容仅供研究参考,付费前请自行鉴别。
3、如文档内容存在违规,或者侵犯商业秘密、侵犯著作权等,请点击“违规举报”。

碎片内容

模板及支撑工程施工专项方案

您可能关注的文档

确认删除?
VIP
微信客服
  • 扫码咨询
会员Q群
  • 会员专属群点击这里加入QQ群
客服邮箱
回到顶部