电脑桌面
添加小米粒文库到电脑桌面
安装后可以在桌面快捷访问

安装工程识图复习

安装工程识图复习_第1页
1/10
安装工程识图复习_第2页
2/10
安装工程识图复习_第3页
3/10
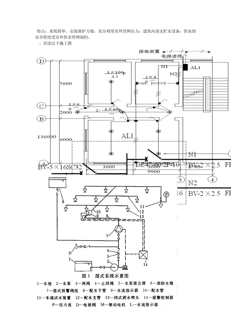
《安装工程识图》复习题 1.塑料管规格符号用 DN表示 2.给水管应在铺在排水管上面,给水管应加套管,其长度不得小于排水管管径的3倍。 3. 电气工程图中在导线BVV(3×5+1×35)K-WE的文字说明,表示导线的根数为 4根。 4.给排水工程图中,地漏的图例为 5. 闸阀一般安装在引入管或管径DN 大于50mm的双向流动且不经常启闭的管道上。 6.电气工程图中在导线BLV-(3×5+1×35)PVC32-WC,表示导线的所用材料为铝芯聚氯乙烯塑料绝缘电线。 7. 热水系统横管应有不小于0.003 的坡度,以便放气和泄水。 8. 湿式自动喷水灭火系统能广泛应用于环境温度不低于5℃、不高于80℃的建筑物或场所。基于以上特点,湿式系统是目前世界上应用最广泛的一种系统。 9. 湿式自动喷水灭火系统的特点是什么? 10. 圆形风管标高采用的是中心线标高。 11、排水管道一般应地下埋设或在地上楼板下明设 12、当冷、热水管上下平行敷设时,热水支管应安装在上面;垂直安装时,热水管应在面向的左侧。 13、给水系统由引入管、计量设备、给水管网、给水附件、增压设备、用水设备组成。 14、同程式系统的特点是通过各个立管的循环环路的总长度都相等。 15、变电所内设有变压器、高压进电设备和配电设备。 16、间接加热供水系统将热媒通过水加热器把热量传递给冷却水达到加热冷水的目的,在加热过程中热媒和冷水不接触。 17、水平支管与灶具之间的一段垂直管线叫下垂管。 18、湿式喷水灭火系统采用的是闭式碰头 19、管道坡度宜用单线箭头表示。 20、电气图中的大多数图如系统图、电路图、逻辑图和极限图等都属于简图。 21、湿式自动喷水灭火系统的特点是什么? 22、干式自动喷水灭火系统的特点是什么? 23、 (1) 系统是直接给水方式? (2) 该系统的适用范围:室外管网压力、水量在一天的时间内均能满足室内用水需要,H0>H。 特点:系统简单,安装维护方便,充分利用室外管网压力;建筑内部无贮水设备,供水的安全程度受室外供水管网制约。 24、识读以下施工图 《安装工程识图》复习题 1、矩形风管应标注(管底)标高。 2、定位轴线从左至右依次用(阿拉伯数字)编号。 3、绘制管道轴测图一般均采用45°斜轴测法绘制,绘制时,管道系统图的布图方向应与平面图(一致)。 4、下面( DY )是火灾自动报警设备电源的文字符号。 5、下面( B-T )是通用火灾报警控制器的文字符号。 6、在火灾自动报警设备常用图形符号中,下面符号(...

1、当您付费下载文档后,您只拥有了使用权限,并不意味着购买了版权,文档只能用于自身使用,不得用于其他商业用途(如 [转卖]进行直接盈利或[编辑后售卖]进行间接盈利)。
2、本站所有内容均由合作方或网友上传,本站不对文档的完整性、权威性及其观点立场正确性做任何保证或承诺!文档内容仅供研究参考,付费前请自行鉴别。
3、如文档内容存在违规,或者侵犯商业秘密、侵犯著作权等,请点击“违规举报”。

碎片内容

安装工程识图复习

您可能关注的文档

确认删除?
VIP
微信客服
  • 扫码咨询
会员Q群
  • 会员专属群点击这里加入QQ群
客服邮箱
回到顶部