电脑桌面
添加小米粒文库到电脑桌面
安装后可以在桌面快捷访问

平方二层中式农村房屋带阳台设计图

平方二层中式农村房屋带阳台设计图_第1页
1/3
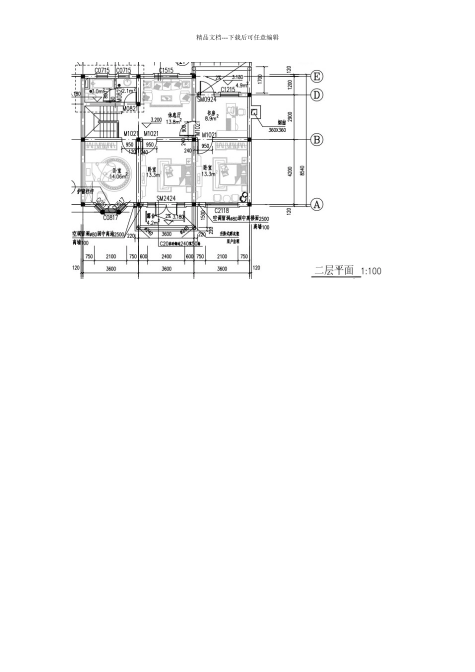
平方二层中式农村房屋带阳台设计图_第2页
2/3
平方二层中式农村房屋带阳台设计图_第3页
3/3
精品文档---下载后可任意编辑建筑高度:米(含屋顶)坡屋顶。结构形式:砖混结构;一层:厨房、餐厅、客厅、卧室、杂物间、卫生间;二层:主卧、休息厅、次卧(附书房、露台)、次卧(附露台)、公共卫生间。图纸目录:建筑:编制总说明、建筑设计说明、总平面示意图、一层平面、二层平面图、屋顶平面图、东立面图、西立面图、南立面图、北立面图、1-1 剖面图、2-2 剖面图、节点详图、楼梯详图、1-1 楼梯剖面、厨房、厕所详图、墙身大样、门窗表、门窗大样。结构:结构设计说明、条形基础底板主筋配置示意图、半砖内隔基础详图、构造柱配筋和拉接详图、砖墙与构造柱拉结详图、砖墙墙体连接详图、板在支座的锚固构造、表面分布钢筋示意图、圈梁钢筋水平连接、基础结构平面、门窗过梁详图、一层结构平面、二层结构平面、屋顶结构平面、屋顶板面配筋图、楼梯详图。电气图:电气设计说明、一层、二层配电平面、一层、二层弱电平面、基础接地平面、屋顶防雷平面、配电系统图等等。给排水图:排水设计说明、总平面示意图、一层、二层平面、屋顶平面、给排水系统图、一层、二层厨房、卫生间给水透视图、屋顶给排水系统图。工程概况:1、本工程的建筑面积为 ㎡,基地尺寸南北向长度为,东西向长度。建筑的东西向外墙离边界,北向离边界(见总平面示意图)。2、建筑层数为二层;建筑高度是(不含屋顶);建筑结构是砖混结构;3、建筑的耐火等级为三级,屋面防水等级为三级,抗震设防烈度为七度。精品文档---下载后可任意编辑精品文档---下载后可任意编辑

1、当您付费下载文档后,您只拥有了使用权限,并不意味着购买了版权,文档只能用于自身使用,不得用于其他商业用途(如 [转卖]进行直接盈利或[编辑后售卖]进行间接盈利)。
2、本站所有内容均由合作方或网友上传,本站不对文档的完整性、权威性及其观点立场正确性做任何保证或承诺!文档内容仅供研究参考,付费前请自行鉴别。
3、如文档内容存在违规,或者侵犯商业秘密、侵犯著作权等,请点击“违规举报”。

碎片内容

平方二层中式农村房屋带阳台设计图

范哲铺+ 关注
实名认证
内容提供者

想你所想,急你所急,你需要的都在店铺里可以找到。

相关文档

确认删除?
VIP
微信客服
  • 扫码咨询
会员Q群
  • 会员专属群点击这里加入QQ群
客服邮箱
回到顶部