电脑桌面
添加小米粒文库到电脑桌面
安装后可以在桌面快捷访问

拉森钢板桩施工方案()

拉森钢板桩施工方案()_第1页
1/17
拉森钢板桩施工方案()_第2页
2/17
拉森钢板桩施工方案()_第3页
3/17
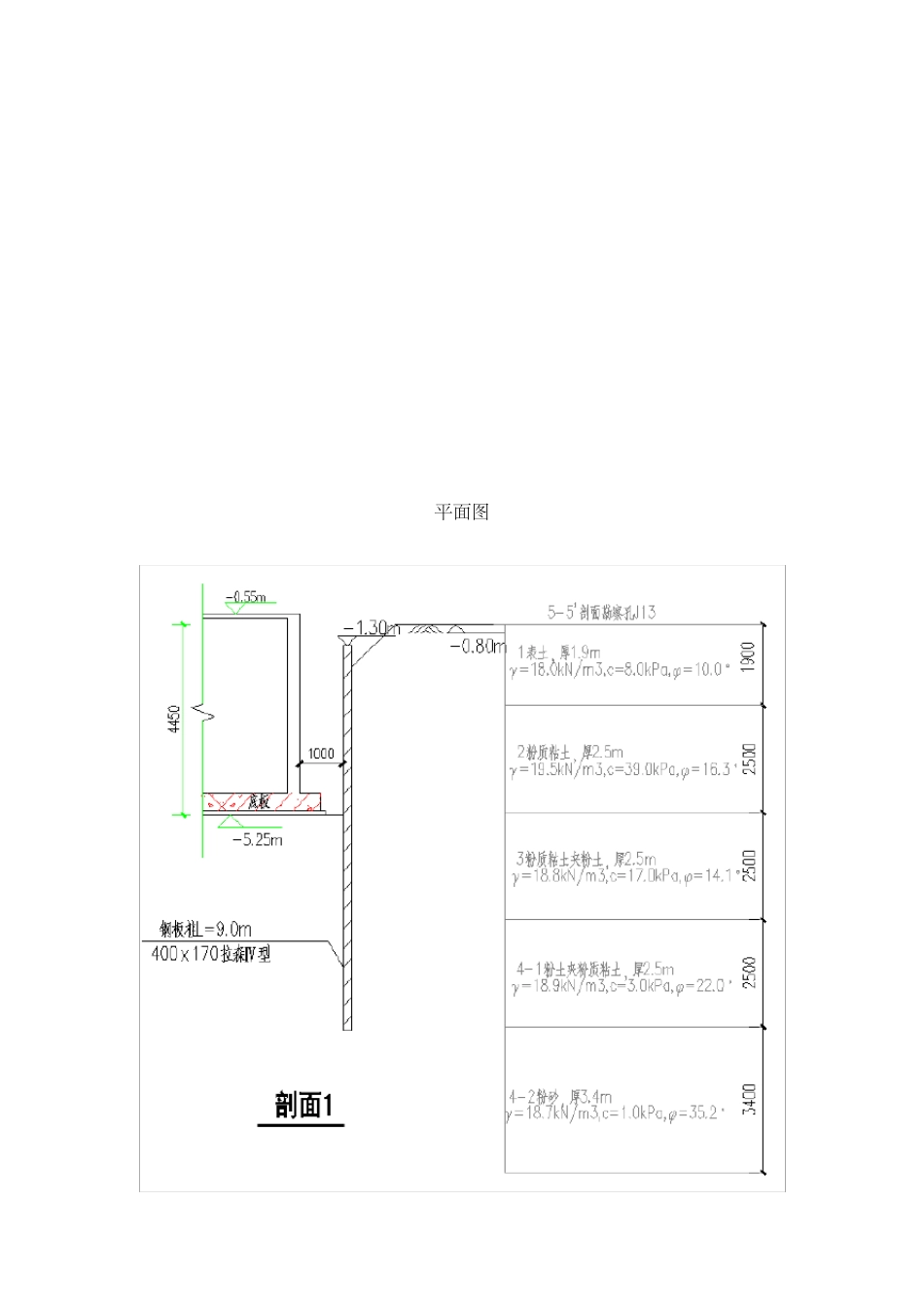
拉 森 钢 板 桩 基 坑 围 护 施 工 方 案 基 坑 专 项 施 工 方 案 1 编 制 目 的 (1 ) 保 证 钢 板 桩 围 护 施 工 过 程 的 生 产 安 全 ; (2 ) 指 导 钢 板 桩 围 护 的 正 确 生 产 施 工 ; (3 ) 保 证 基 底 开 挖 的 防 水 要 求 。 (4 ) 因 地 制 宜 , 科 学 组 织 施 工 , 提 高 生 产 效 率 , 在 保 障 安 全 的 前 提 下 , 加 快 施 工进 度 , 提 高 围 护 质 量 。 2 编 制 依 据 ( 1 ) 工 程 地 质 与 水 文 地 质 详 勘 报 告 ; ( 2) 《 建 筑 地 基 基 础 工 程 施 工 质 量 验 收 规 范 》 ( GB50202-2002) ( 3) 《 国 家 标 准 建 筑 基 坑 支 护 技 术 规 范 》 ( JGJ120-2012) ( 4) 《 混 凝 土 结 构 工 程 施 工 质 量 验 收 规 范 》 ( GB50204-2002) ( 5) 《 建 筑 基 坑 支 护 技 术 规 程 》 ( JGJ120-2012) ( 6) 《 建 筑 地 基 处 理 技 术 规 范 》 ( JGJ79-2002) ( 7) 《 钢 结 构 工 程 施 工 质 量 验 收 规 范 》 ( GB50205-2001) ( 8 ) 现 场 实 地 踏 勘 结 果 。 3 工 程 概 况 3 .1 设 计 概 况 平 面 图 3 .2 工程地质概况 1.(1)层 表 土 : 杂 色 , 松 散 , 以 黏 性 土 为 主 , 含 大 量 植 物 根 茎 和 虫 孔 等 。 厚度 :0.30~ 2.80m, 平 均1.62m; 层 底 标 高 :0.72~ 2.55m, 平 均1.69m; 层 底 埋深 :0.30~ 2.80m, 平 均1.62m。 该 层 土 全 场 分 布 , 工 程 特 性 差 , 基 坑 开 挖 时 需 清除 。 (1-1)层 杂 填 土 : 杂 色 , 松 散 , 含 大 量 建 筑 垃 圾 及 生 活 垃 圾 。 厚 度 :0.50~2.40m, 平 均1.27m; 层 底 标 高 :-1.08~ 1.76m, 平 均0.22m; 层 底 埋 深 :2.10~4.80m, 平 均3.25m。 该 层 土 仅 分 布 于 填 塞 河 道 中 , 工 程 特 性 差 , 基 坑 开 挖 时 需清 除 。 2.(2)层 粉 质 黏 土 : 黄 灰 色 , 硬 塑 , 局 部 可 塑 , 含 铁 锰 ...

1、当您付费下载文档后,您只拥有了使用权限,并不意味着购买了版权,文档只能用于自身使用,不得用于其他商业用途(如 [转卖]进行直接盈利或[编辑后售卖]进行间接盈利)。
2、本站所有内容均由合作方或网友上传,本站不对文档的完整性、权威性及其观点立场正确性做任何保证或承诺!文档内容仅供研究参考,付费前请自行鉴别。
3、如文档内容存在违规,或者侵犯商业秘密、侵犯著作权等,请点击“违规举报”。

碎片内容

拉森钢板桩施工方案()

确认删除?
VIP
微信客服
  • 扫码咨询
会员Q群
  • 会员专属群点击这里加入QQ群
客服邮箱
回到顶部