电脑桌面
添加小米粒文库到电脑桌面
安装后可以在桌面快捷访问

民用建筑测量基础知识

民用建筑测量基础知识_第1页
1/17
民用建筑测量基础知识_第2页
2/17
民用建筑测量基础知识_第3页
3/17
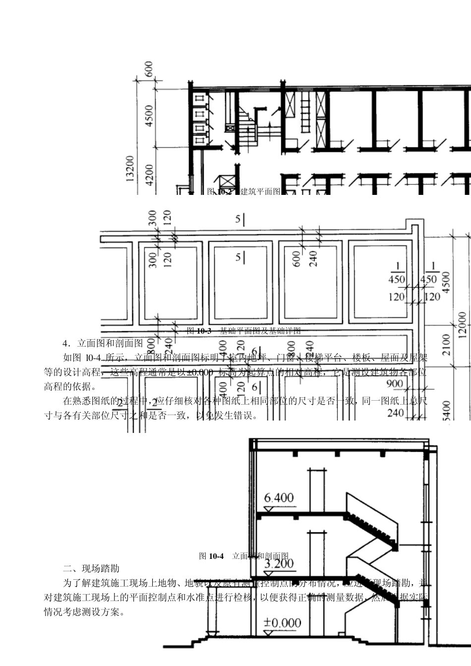
第十章 民用建筑施工测量 民用建筑施工测量主要包括放样、基础施工测量、墙体工程施工测量以及使用基础皮数杆和墙体轴线测设等。 第一节 概 述 民用建筑是指供人们居住、生活和进行社会活动用的建筑物,如住宅、医院、办公楼和学校等,民用建筑分为单层、低层(2~3 层)、多层(4~8 层)和高层(9 层以上)。因民用建筑的类型、结构和层数各不相同,因而施工测量的方法和精度要求也有所不同,民用建筑施工测量就是按照设计的要求将民用建筑的平面位置和高程测设出来。施工测量的过程主要包括建筑物定位、细部轴线放样、基础施工测量和墙体工程施工测量等。在进行施工测量前,应做好以下准备工作。 一、熟悉设计图纸 设计图纸是施工测量的主要依据,测设前应充分熟悉各种有关的设计图纸,了解施工建筑物与相邻地物的相互关系以及建筑物本身的内部尺寸关系,准确无误地获取测设工作中所需要的各种定位数据。与测设工作有关的设计图纸主要如下。 1.建筑总平面图 如图 10-1 所示,建筑总平面图给出了建筑场地上所有建筑物和道路的平面位置及其主要点的坐标,标出了相邻建筑物之间的尺寸关系,注明了各栋建筑物室内地坪高程,是测设建筑物总体位置和高程的重要依据。 图 1 0 -1 建筑总平面图 2.建筑平面图 建筑平面图标明了建筑物首层、标准层等各楼层的总尺寸,以及楼层内部各轴线之间的尺寸关系,如图 10-2 所示,它是测设建筑物细部轴线的依据。 3.基础平面图及基础详图 如图 l0-3 所示,基础平面图及基础详图标明了基础形式、基础平面布置、基础中心或中线的位置、基础边线与定位轴线之间的尺寸关系、基础横断面的形状和大小以及基础不同部位的设计标高等,它是测设基槽(坑)开挖边线和开挖深度的依据,也是基础定位及细部放样的依据。 图1 0 -2 建筑平面图 图1 0 -3 基础平面图及基础详图 4.立面图和剖面图 如图l0-4 所示,立面图和剖面图标明了室内地坪、门窗、楼梯平台、楼板、屋面及屋架等的设计高程,这些高程通常是以± 0.000 标高为起算点的相对高程,它是测设建筑物各部位高程的依据。 在熟悉图纸的过程中,应仔细核对各种图纸上相同部位的尺寸是否一致,同一图纸上总尺寸与各有关部位尺寸之和是否一致,以免发生错误。 图1 0 -4 立面图和剖面图 二、现场踏勘 为了解建筑施工现场上地物、地貌以及原有测量控制点的分布情况,应进行现场踏勘,并对建筑施工现场上的平面控制点和水准...

1、当您付费下载文档后,您只拥有了使用权限,并不意味着购买了版权,文档只能用于自身使用,不得用于其他商业用途(如 [转卖]进行直接盈利或[编辑后售卖]进行间接盈利)。
2、本站所有内容均由合作方或网友上传,本站不对文档的完整性、权威性及其观点立场正确性做任何保证或承诺!文档内容仅供研究参考,付费前请自行鉴别。
3、如文档内容存在违规,或者侵犯商业秘密、侵犯著作权等,请点击“违规举报”。

碎片内容

民用建筑测量基础知识

小辰5+ 关注
实名认证
内容提供者

出售各种资料和文档

相关文档

确认删除?
VIP
微信客服
  • 扫码咨询
会员Q群
  • 会员专属群点击这里加入QQ群
客服邮箱
回到顶部