电脑桌面
添加小米粒文库到电脑桌面
安装后可以在桌面快捷访问

空压机安装要求

空压机安装要求_第1页
1/6
空压机安装要求_第2页
2/6
空压机安装要求_第3页
3/6
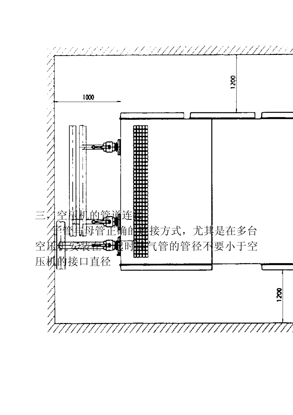
空压机安装要求 一,空压机的安装环境 1 . 空压机的选址按使用说明书要求,选择合适的安装地点 1 . 宽敞明亮干净的地方 2 . 环境通风良好 3 . 最好有起吊设备 2 . 避免安装在下列地点 1 . 直接室外安装 粉尘较多的地方(特别是打沙设备附近) 2 . 封闭的环境 二,空压机的安装布局 空压机与其他设备四周要有适当的空间以便日后的检修与维修 三,空压机的管道连接 子管与母管正确的连接方式,尤其是在多台空压机安装在一起时排气管的管径不要小于空压机的接口直径 四,空压机的通风及其管道的安装 五,空压机供电和电源线的安装 压机供电电源线入口,要安装进线 盒,供电电缆进线引入需空有一定弧度 六,空压机供电和电源线的安装 1 . 电源供电线路上必须有熔断丝或空气开关及隔离开关 2 . 电源线的线径必须符合说明书规定和国家规定,一般估算:1 平方毫米=2 安培 3 . 电源线的引入必须牢固可靠,避免电源线有大的应力和被磨破的危险

1、当您付费下载文档后,您只拥有了使用权限,并不意味着购买了版权,文档只能用于自身使用,不得用于其他商业用途(如 [转卖]进行直接盈利或[编辑后售卖]进行间接盈利)。
2、本站所有内容均由合作方或网友上传,本站不对文档的完整性、权威性及其观点立场正确性做任何保证或承诺!文档内容仅供研究参考,付费前请自行鉴别。
3、如文档内容存在违规,或者侵犯商业秘密、侵犯著作权等,请点击“违规举报”。

碎片内容

空压机安装要求

您可能关注的文档

确认删除?
VIP
微信客服
  • 扫码咨询
会员Q群
  • 会员专属群点击这里加入QQ群
客服邮箱
回到顶部