电脑桌面
添加小米粒文库到电脑桌面
安装后可以在桌面快捷访问

现场施工总平面布置图

现场施工总平面布置图_第1页
1/6
现场施工总平面布置图_第2页
2/6
现场施工总平面布置图_第3页
3/6
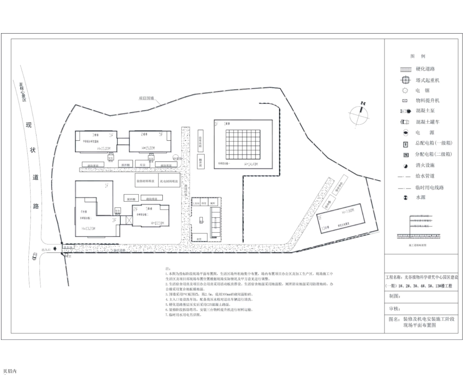
页眉内容页眉内容页眉内容钢筋加工及堆放钢筋原料堆放:::硬化道路-4 -塔式起重机◎电锯物料提升机1•咗混凝土泵混凝土罐车*电源叵]总配电箱(一级箱)回分配电箱(二级箱)蠱消火设施给水管道一一临时用电线路?.水源〔200(100)厚 C25 砼—onnrs7■七沫-7—300 厚砖渣石屑碾压300 厚回填工碾压-;1「二■■二■[亠▼二 F:rr.'zV■■■zV.-zvz4「H=]0.5OM、::食堂临时道路卫■路-道时-临放堆料p|1 蛀冊备輯二■L 严"洗车池.f]堆材出入口T钢筋加工及堆放工具间浴室厕所放堆构钢面屋5 总詞翹0—•回钢筋原料堆放中塔式起重机◎电锯物料提升机回_>混凝土泵混凝土罐车至公,卿藐务卜二匚,:丁&电源画总配电箱(一级箱)叵]分配电箱(二级箱)盍消火设施--给水管道临时用电线路X 水源水泥砂浆抹灰_C5 细石砼垫层排水沟断面图砖砌体120注:1.临时用水根据甲方指定接水点挂表接入。2•临时用水采用钢塑管埋地敷设。排水沟沿道路二侧设置。3•临时用电根据甲方指定位置接入项目总配电箱内,采用三级配电箱。4•总配电箱内分别引出五个二级配电箱,由一级配电箱引出二级配电箱。5•临时用电电力电缆架设遵守规范要求,采用埋地及架空敷设。匚程名称:光谷植物科学研兜中心回区建设〔-期)1 執冰 3#、4 以妙⑶楼工程制图:审核:图名:临时用电施工现场平面布置图页眉内容页眉内容共享知识分享快乐

1、当您付费下载文档后,您只拥有了使用权限,并不意味着购买了版权,文档只能用于自身使用,不得用于其他商业用途(如 [转卖]进行直接盈利或[编辑后售卖]进行间接盈利)。
2、本站所有内容均由合作方或网友上传,本站不对文档的完整性、权威性及其观点立场正确性做任何保证或承诺!文档内容仅供研究参考,付费前请自行鉴别。
3、如文档内容存在违规,或者侵犯商业秘密、侵犯著作权等,请点击“违规举报”。

碎片内容

现场施工总平面布置图

wxg+ 关注
实名认证
内容提供者

该用户很懒,什么也没介绍

确认删除?
VIP
微信客服
  • 扫码咨询
会员Q群
  • 会员专属群点击这里加入QQ群
客服邮箱
回到顶部