电脑桌面
添加小米粒文库到电脑桌面
安装后可以在桌面快捷访问

工程量清单计价实务期中考试

工程量清单计价实务期中考试_第1页
1/11
工程量清单计价实务期中考试_第2页
2/11
工程量清单计价实务期中考试_第3页
3/11
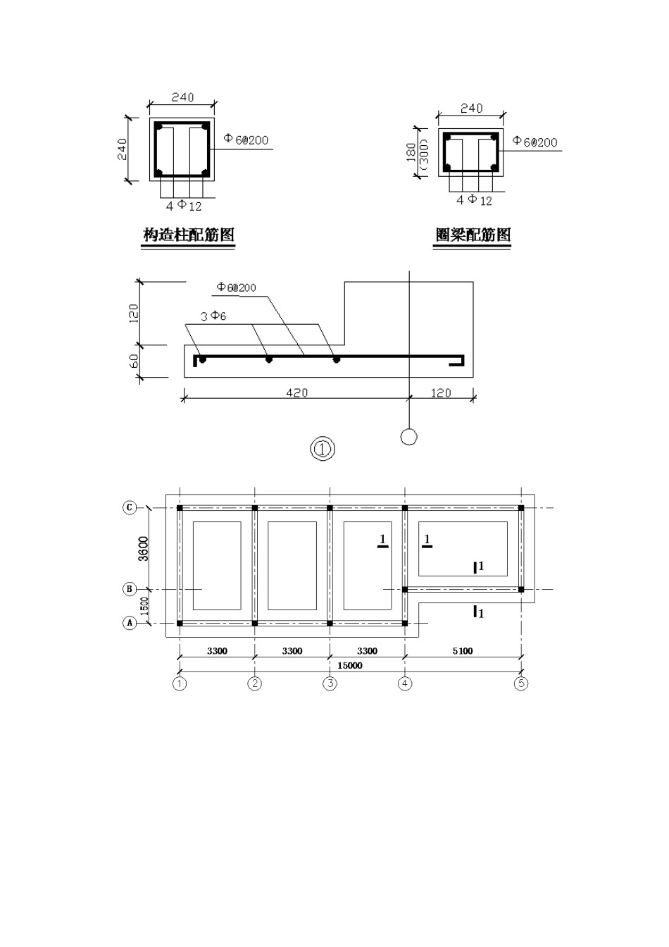
2025—2025 学年度第二学期期中试卷《工程量清单计价实务》专业______ ___班级_________学号__________姓名_____________1 工程概况1.2 设计说明(1)本工程为单层砖混结构,M2.5 水泥石灰砂浆砌一砖内外墙及女儿墙,在檐口处设 C20钢筋混凝土圈梁一道,在外墙四周设 C20 钢筋混凝土构造柱。(2)基础采纳现浇 C20 钢筋混凝土带型基础、M5 水泥砂浆砌砖基础;C20 钢筋混凝土地圈梁。(3)屋面做法:柔性防水屋面。面层:细砂撒面;防水层:三布四涂防水;找平层:1:2.5 水泥砂浆 20mm 厚;找坡层:1:6 水泥炉渣找坡(最薄处厚 10mm);基层:预应力空心屋面板。落水管选用 Φ110UPVC 塑料管。(4)室内装修做法如下:① 地面:面层:1:2.5 带嵌条水磨石面,15mm 厚; 找平层:1:3 水泥砂浆,20mm 厚; 垫层:C10 混凝土,80mm 厚; 基层:素土夯实。② 踢脚线:高 150mm,同地面面层做法。③ 内墙面:混合砂浆底,面层刷 106 涂料两遍。④ 天棚面:基层:预制板底面清刷、补缝。 面层:抹混合砂浆底,面层刷 106 涂料两遍。(5)室外装修做法如下:① 外墙面:抹混合砂浆底,普通水泥白石子水刷石面层。② 室外散水:C15 混凝土提浆抹光,60mm 厚, 60mm 宽。 (6)门窗:如表 1 所示(其中木门刷聚氨脂漆三遍) 表 1 门窗登记表门窗名称代号洞口尺寸 mm×mm数量(樘单樘面积(m2)合计面积(m2)单扇无亮无砂镶板门M900×202541.87.2双扇铝合金推拉窗C11500×180062.716.2双扇铝合金推拉窗C22100×180023.78(7)门窗过梁:门洞上加设过梁,长度为洞口宽加 500mm,断面为 240mm×120mm。窗洞上凡圈梁代过梁处,底部增长 1ф14 钢筋,其余钢筋配置同圈梁。 1.3 施工说明(1)场地土为三类土,已完毕“三通一平”。(2)现场搭设钢制脚手架,垂直运送采纳卷扬机。(3)本工程不发生场内运土,余土均用双轮车运至场外 500 米处。(4)预制板由预制构件厂加工,厂址离施工现场 15km。(5)门窗均由施工单位附属加工厂制作并运至现场,运距 15km。 2 工程量计算根据《清单法律规范》和《基础定额》,本例工程项目划分及工程量计算在表格中完毕。(1)基数计算序号名称计算式单位数量1建筑面积m²2外墙中心线m3外墙外边线m4内墙中心线m (2) 土石方工程量计算 (3)砌筑工程计算 表 4 砌筑工程量计算序项目编码项目计算式单工程序号项目编码项目名称计算式单位工程量1平整场地m22挖基础土方m33室内土方回填土m34基...

1、当您付费下载文档后,您只拥有了使用权限,并不意味着购买了版权,文档只能用于自身使用,不得用于其他商业用途(如 [转卖]进行直接盈利或[编辑后售卖]进行间接盈利)。
2、本站所有内容均由合作方或网友上传,本站不对文档的完整性、权威性及其观点立场正确性做任何保证或承诺!文档内容仅供研究参考,付费前请自行鉴别。
3、如文档内容存在违规,或者侵犯商业秘密、侵犯著作权等,请点击“违规举报”。

碎片内容

工程量清单计价实务期中考试

文森传品+ 关注
实名认证
内容提供者

一家传播文化教育的小店,资料丰富,随意挑选。

确认删除?
VIP
微信客服
  • 扫码咨询
会员Q群
  • 会员专属群点击这里加入QQ群
客服邮箱
回到顶部