电脑桌面
添加小米粒文库到电脑桌面
安装后可以在桌面快捷访问

样板安装及基准线挂设质量管理VIP专享

样板安装及基准线挂设质量管理_第1页
1/8
样板安装及基准线挂设质量管理_第2页
2/8
样板安装及基准线挂设质量管理_第3页
3/8
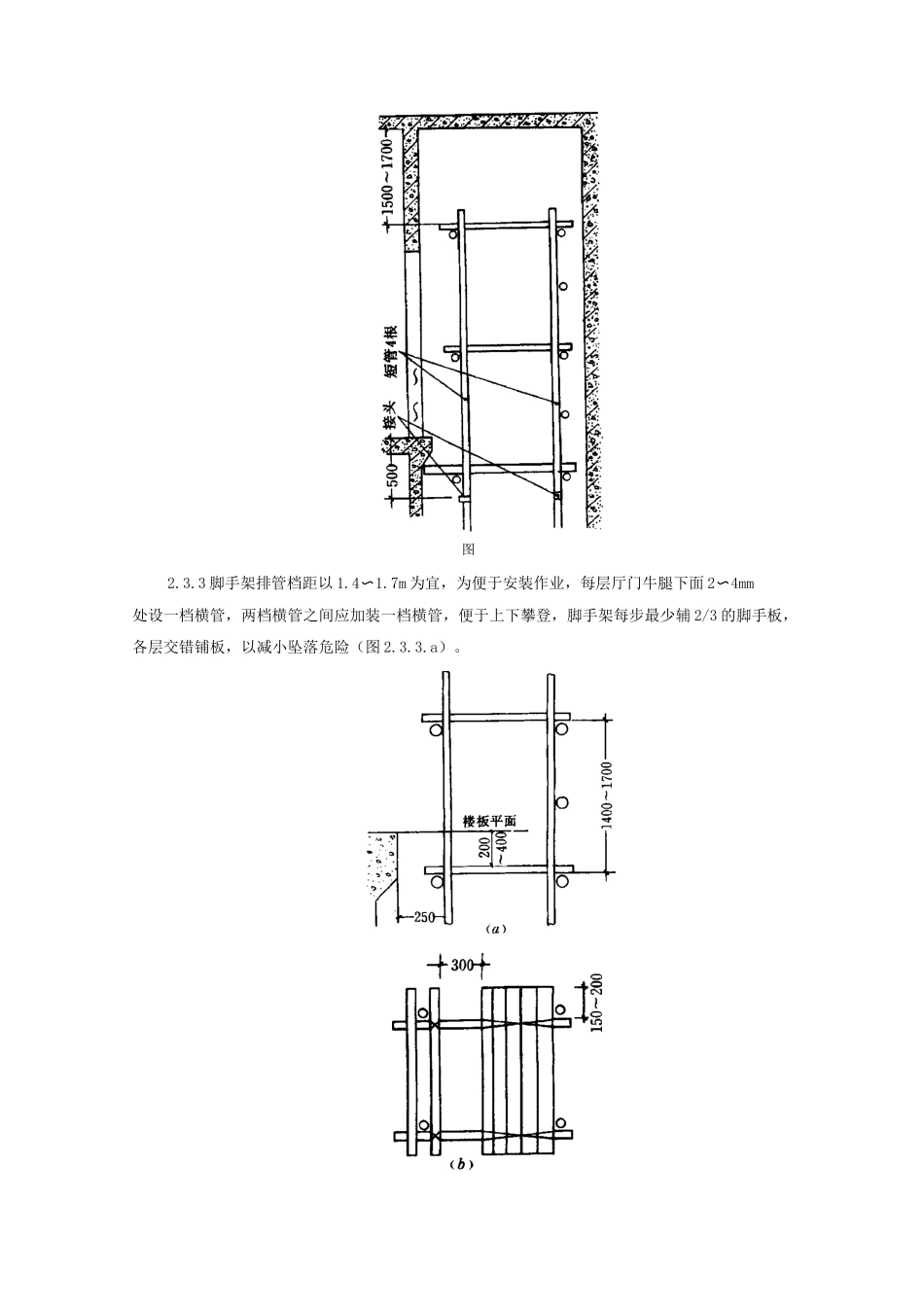
样板安装及基准线挂设质量管理1、范围本工艺标准适用于额定载重量 50kg 及以下,额定速度 3m/s 及以下各类国产曳引驱动电梯样板安装及基准线挂工程。2、施工准备2.1 材料要求:2.1.1 本质样板应选用无节、干燥、韧性强、不变形的木材。并且应加上面刨光、平直。2.1.2 根据提升高度不同,样板横断面不小表 2.1.2 中所列数值。提升高度(m)厚度(mm)宽度(mm)<20408020〜60501>60601注:表中要求尺寸为加工后净尺寸。2.1.3 加工后横断面不小于 1 x 1mm 的木方(架设样板)、角钢,M16 膨胀螺栓,U 形卡钉,钉子,琴钢丝,8#铅丝等。2.2 主机机具:电锤、铁锤、水平尺、直角尺、钢板尺、盒尺、线坠、墨头斗。2.3 作业条件:2.3.1 井道内脚手架搭设完毕,并符合《建筑安装工程脚手架安全技术操作规程》及安装部门提供的图纸要求。2.3.2 脚手架平台最高点位于井道顶板下:1.5〜1.7m 处为宜,以便稳放样板。顶层脚手架立管最好用四根短管,拆除此短管后,余下的立管顶点应在最高层牛腿下面 5mm 处,以便于轿厢安装(2.3.2)。图 2.3.3 脚手架排管档距以 1.4〜1.7m 为宜,为便于安装作业,每层厅门牛腿下面 2〜4mm处设一档横管,两档横管之间应加装一档横管,便于上下攀登,脚手架每步最少辅 2/3 的脚手板,各层交错铺板,以减小坠落危险(图 2.3.3.a)。图 2.3.4 脚手架必须经过安全技术部门检查,验收后,方可使用。2.3.6 现场施工用电、照明用电必须符合国标《施工现场临时用电安全技术法律规范》要求。2.3.7 各层厅门必须设有良好的防护门;并且各层厅门及每步脚手板上应保持洁净、无杂物。2.3.8 实际测量顶层高度,底坑深度应与图纸相符,并核算是否能满足该梯越程的要求。3、操作工艺3.1 工艺流程:搭设样板架-测量井道确定基准线-样板就位,挂基准线3.1.1 搭设样板架:3.1.1.1 在井道顶板下面 1.2m 左右处用膨胀螺栓将角钢水平牢固地固定于井道壁上(图3.1.1.1 )。图 3.1.1.2 若井道壁为砖墙,应在井道顶板下 1.1m 左右处沿水平方向剔洞,稳放样板木支架,并且端部固定(图 3.1.1.2)。图 3.1.1.3 样板支架方木端部应垫实找平,水平度误差不得大于 3/10。3.1.2 测量井道,确定标准线。3.1.2.1 预放两根厅门线测量井道。一般两线间距为门净开度。3.1.2.2 根据井道测量结果来确定基准线时,应注意的问题:a 井道内安装的部件对轿厢运行有无阻碍,如限速器钢绳,选层器钢带,限位开关,中...

1、当您付费下载文档后,您只拥有了使用权限,并不意味着购买了版权,文档只能用于自身使用,不得用于其他商业用途(如 [转卖]进行直接盈利或[编辑后售卖]进行间接盈利)。
2、本站所有内容均由合作方或网友上传,本站不对文档的完整性、权威性及其观点立场正确性做任何保证或承诺!文档内容仅供研究参考,付费前请自行鉴别。
3、如文档内容存在违规,或者侵犯商业秘密、侵犯著作权等,请点击“违规举报”。

碎片内容

样板安装及基准线挂设质量管理

确认删除?
VIP
微信客服
  • 扫码咨询
会员Q群
  • 会员专属群点击这里加入QQ群
客服邮箱
回到顶部