电脑桌面
添加小米粒文库到电脑桌面
安装后可以在桌面快捷访问

住宅楼电气照明工程量清单计价实例

住宅楼电气照明工程量清单计价实例_第1页
1/12
住宅楼电气照明工程量清单计价实例_第2页
2/12
住宅楼电气照明工程量清单计价实例_第3页
3/12
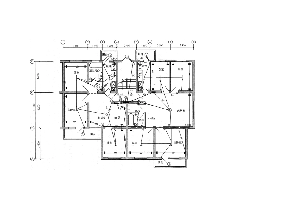
实例:某电气照明工程清单计价通常安装工程计价根据以下程序进行:一、熟悉工程概况、施工图与施工说明二、编制依据三、工程清单项目的划分及项目编码表格形式四、工程量计算五、套用定额计价表计算分部分项工程量清单报价六、计算主材费用七、单位工程措施项目清单八、单位工程其他项目清单九、规费明细十、单位工程费用汇总一、熟悉工程概况、施工图与施工说明本住宅楼共 6 层,每层高 3m,一个单元内每层共两户,有 A、B 两种户型:A 户型为 4 室 1 厅,约 92m2;B 户型为 3 室 1 厅,约 73m2。共用楼梯、楼道。本电气照明工程提供了两张设计图纸,电气照明平面图(见图 1)和配电系统图(见图 2)。图 2 某住宅楼供电系统图图 1 某 住 宅 楼 电 气 照 明 平 面 图由图 2 的配电系统图可知,每层住宅楼采纳 220V 单相三线系统供电。在楼道内设置一个配电箱 AL-1,安装高度为 1.8m,配电箱有 4 路输出线,其中,1L 为 A 户供电,2L 为 B 户供电,导线使用铜芯塑料绝缘线,3 根,截面积为 6mm2,穿钢管敷设,管径为 25mm,敷设方式为沿墙暗敷,3L供楼梯照明,4L 为备用,3L、4L 的预算省略。A 户、B 户在室内各安装一个配电箱 AL-1-2、AL-1-1,其安装高度为1.8m,分别采纳 3 路供电,其中 Ll供各房间照明,L2供起居室、卧室内的家用电器用电,L3供厨房、卫生间用电。房间内所有照明、插座管线均选用了 2.5mm2铜芯塑料绝缘线,穿线管使用 20mm 管径的 PVC 硬质塑料管,敷设在现浇混凝土楼板内,竖直方向为暗敷设在墙体内。照明回路沿墙和楼顶板暗敷,插座回路沿墙和楼地板暗敷。所有开关距地 1.4m 安装,插座距地 0.4m 安装。二、编制依据(本电气照明工程清单计价)主要编制依据有:① 工程施工图(平面图和系统图)和相关资料说明。②《江苏省建设工程工程量清单计价项目指引》。③《江苏省安装工程计价表》(2025 年)。④ 国家和工程所在地区有关工程造价的文件。三、工程清单项目的划分及项目编码表格本电气照明工程可划分成 11 个清单安装项目:1、照明配电箱安装;2、小电器板式开关安装;3、小电器插座安装;4、电气配管(电线钢管敷设);5、电气配管(电线 PVC 管敷设);6、电气配管(接线盒安装);7、电气配线(6mm2铜芯塑料绝缘线的管内穿线);8、电气配线(2.5mm2铜芯塑料绝缘线的管内穿线);9、普通吸顶灯及其他灯具(半圆球吸顶灯的安装);10、装...

1、当您付费下载文档后,您只拥有了使用权限,并不意味着购买了版权,文档只能用于自身使用,不得用于其他商业用途(如 [转卖]进行直接盈利或[编辑后售卖]进行间接盈利)。
2、本站所有内容均由合作方或网友上传,本站不对文档的完整性、权威性及其观点立场正确性做任何保证或承诺!文档内容仅供研究参考,付费前请自行鉴别。
3、如文档内容存在违规,或者侵犯商业秘密、侵犯著作权等,请点击“违规举报”。

碎片内容

住宅楼电气照明工程量清单计价实例

阳光书坊+ 关注
实名认证
内容提供者

阳光书坊,传播未来

确认删除?
VIP
微信客服
  • 扫码咨询
会员Q群
  • 会员专属群点击这里加入QQ群
客服邮箱
回到顶部