电脑桌面
添加小米粒文库到电脑桌面
安装后可以在桌面快捷访问

安全气囊系统电气线路图(1)VIP免费

安全气囊系统电气线路图(1)_第1页
1/9
安全气囊系统电气线路图(1)_第2页
2/9
安全气囊系统电气线路图(1)_第3页
3/9
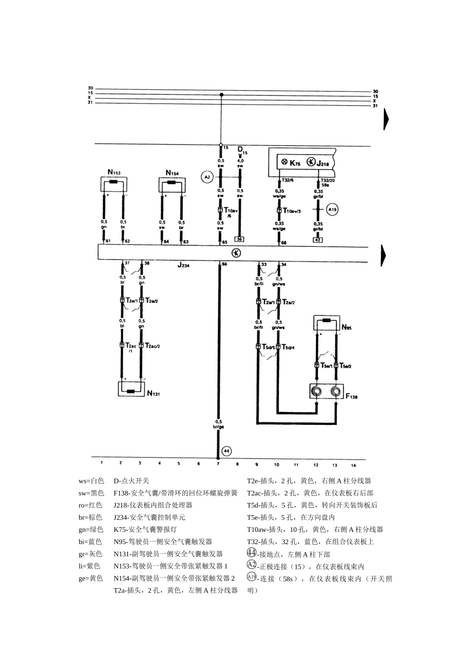
安全气囊系统电气线路图(从2000年车型起)安全气囊电气线路图如图2-2-75~图2-2-78所示。熔丝支架:(a)微型中央电器盒:(b)熔丝颜色:30A-绿色25A-白色20A-黄色15A-蓝色10A-红色7.5A-棕色5A-米色熔丝支架上的保险从23号位置开始,在电路图上标有号码223,依次类推。图2-2-75熔丝支架、微型中央继电器盒ws=白色sw=黑色ro=红色br=棕色gn=绿色bi=蓝色gr=灰色li=紫色ge=黄色D-点火开关F138-安全气囊/带滑环的回位环螺旋弹簧J218-仪表板内组合处理器J234-安全气囊控制单元K75-安全气囊警报灯N95-驾驶员一侧安全气囊触发器N131-副驾驶员一侧安全气囊触发器N153-驾驶员一侧安全带张紧触发器1N154-副驾驶员一侧安全带张紧触发器2T2a-插头,2孔,黄色,左侧A柱分线器T2e-插头,2孔,黄色,右侧A柱分线器T2ac-插头,2孔,黄色,在仪表板右后部T5d-插头,5孔,黄色,转向开关装饰板后T5e-插头,5孔,在方向盘内T10aw-插头,10孔,黄色,右侧A柱分线器T32-插头,32孔,蓝色,在组合仪表板上-接地点,左侧A柱下部-正极连接(15),在仪表板线束内-连接(58s),在仪表板线束内(开关照明)图2-2-76驾驶员和副驾驶员安全气囊和安全带张紧器ws=白色sw=黑色ro=红色br=棕色gn=绿色bi=蓝色gr=灰色li=紫色ge=黄色C22-安全气囊抗干扰电感线圈E3-警报灯开关F145-开关:左后座安全带F146-开关:右后座安全带J234-安全气囊控制单元J429-中央门锁控制单元K-自诊断接头N196-左后座安全带张紧触发器N197-右后座安全带张紧触发器T1d-插头,1孔,棕色,,右侧A柱分线器T10av-插头,10孔,黄色,右侧A柱分线器T16a-插头,10孔,自诊断接头-连接(自诊断K线),在仪表板线束内图2-2-77前座侧面安全气囊、后座安全带张紧器ws=白色sw=黑色ro=红色br=棕色gn=绿色bi=蓝色gr=灰色li=紫色ge=黄色E224-副驾驶员安全气囊切断开关F158-安全带张紧器开关1J234-安全气囊控制单元K145-副驾驶员一侧安全气囊关闭警报灯K198-后座中间安全带张紧触发器T2ce-插头,2孔,黄色,在后座中间T8l-插头,8孔,在仪表板右后部T10av-插头,10孔,黄色,右侧A柱分线器T10av-插头,15孔,灰色,左侧A柱分线器-接地点,左侧A柱下部-接地连接2,在仪表板线束内-接地连接3,在仪表板线束内拔下插头时,短路跨接生效*折叠式后座椅**非折叠式后座椅#两种都可能图2-2-78后座中间安全带张紧器、后坐侧面安全气囊七、防抱死制动系统(ABS)(带EDS电子差速锁和ASR驱动防滑装置)电气线路图(从2000年车型起)防抱死制动系统(ABS)(带EDS电子差速锁和ASR驱动防滑装置)电气线路图如图2-2-79~图2-2-83所示。熔丝支架:(a)微型中央电器盒:(b)熔丝颜色:30A-绿色25A-白色20A-黄色15A-蓝色10A-红色7.5A-棕色5A-米色熔丝支架上的保险从23号位置开始,在电路图上标有号码223,依次类推。图2-2-79熔丝支架、8孔继电器盘ws=白色sw=黑色ro=红色br=棕色gn=绿色bi=蓝色gr=灰色li=紫色ge=黄色D-点火开关G44-右后轮转速传感器G45-右前轮转速传感器G47-左前轮转速传感器J104-带EDS的ABS控制单元J105-ABS回油泵继电器J106-ABS电磁阀继电器J217-自动变速器控制单元J220-多点喷射控制单元S7-熔丝支架上熔丝S123-ABS控制单元熔丝T10k-插头,10孔,橙色,左侧A柱分线器T10w-插头,10孔,蓝色,右侧A柱分线器T10au-插头,10孔,灰色,右侧A柱分线器T15u-插头,15孔,红色,压力舱电器盒分线器V39-ABS回油泵-接地点,在液压单元上-正极连接(15),在仪表板线束内-连接1(15a),在ABS线束内*不带ASR的车**带ASR的车#带自动变速器的车##6缸汽油发动机图2-2-80防抱死制动系统、车轮转速传感器ws=白色sw=黑色ro=红色br=棕色gn=绿色bi=蓝色gr=灰色li=紫色ge=黄色G46-左后轮转速传感器J104-带EDS的ABS控制单元J217-自动变速器控制单元N99-右前轮ABS进液阀N100-右前轮ABS出液阀N101-左前轮ABS进液阀N102-左前轮ABS出液阀N133-右后轮ABS进液阀N134-左后轮ABS进液阀N135-右后轮ABS出液阀N136-左后轮ABS出液阀N166-右前轮EDS转换阀N167-右前轮EDS出液阀N168-左前轮EDS转换阀N169-左前轮EDS出液阀T10k-插头,10孔,橙色,左侧A柱分线器T15r-插头,15孔,棕色,右侧A柱分线器*带A...

1、当您付费下载文档后,您只拥有了使用权限,并不意味着购买了版权,文档只能用于自身使用,不得用于其他商业用途(如 [转卖]进行直接盈利或[编辑后售卖]进行间接盈利)。
2、本站所有内容均由合作方或网友上传,本站不对文档的完整性、权威性及其观点立场正确性做任何保证或承诺!文档内容仅供研究参考,付费前请自行鉴别。
3、如文档内容存在违规,或者侵犯商业秘密、侵犯著作权等,请点击“违规举报”。

碎片内容

安全气囊系统电气线路图(1)

确认删除?
VIP
微信客服
  • 扫码咨询
会员Q群
  • 会员专属群点击这里加入QQ群
客服邮箱
回到顶部