电脑桌面
添加小米粒文库到电脑桌面
安装后可以在桌面快捷访问

拉深件模具设计说明书VIP免费

拉深件模具设计说明书_第1页
1/31
拉深件模具设计说明书_第2页
2/31
拉深件模具设计说明书_第3页
3/31
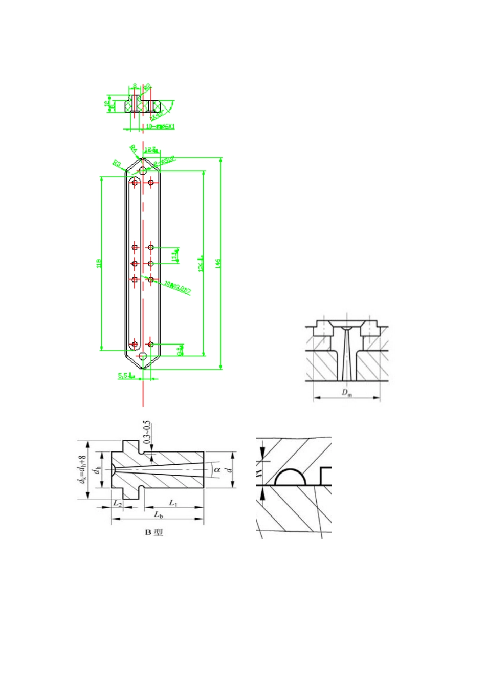
冷冲模课程设计说明书无凸缘筒件的模具设计院系航空宇航工程学院专业飞行器制造工程(钣金与模具)班号6403020学号200604032042姓名洪晓明指导教师刘占军沈阳航空工业学院2009年12月20日摘要本次课程设计的内容为用模具生产无凸缘筒件,其中包括落料、拉深、二次拉深、三次拉深、切边等工序。其中把落料和首次拉深用复合模完成,而其他不出图但进行了相关的尺寸计算,重点在复合模上,解决落料和拉深的计算问题同时对相关的模具的零件给以详细的设计。生成装配工程图和相关的零件刚才图。关键词:落料拉深单排剪切第1章概论……………………………………………………………11.1冲压模具在制造业的地位…………………………………………………11.2冲压模具的历史发展与现状………………………………………………1第2章工艺方案分析及确定…………………………………………22.1冲压件工艺分析…………………………………………………………22.1.1产品机构分析分析………………………………………………………22.2冲压工艺的确定……………………………………………………………3第3章模具结构的确定………………………………………………43.1坯料尺寸计算……………………………………………………………43.2排样………………………………………………………………………53.3各工序尺寸计算…………………………………………………………63.4压力计算与设备选择……………………………………………………93.5拉深模工作零件设计与计算……………………………………………93.6卸料弹簧计算…………………………………………………………103.7压边的橡胶计算…………………………………………………………11第4章模具结构的确定…………………………………………124.1模具的形式……………………………………………………………124.2定位装置………………………………………………………………124.3导向零件………………………………………………………………124.4模架……………………………………………………………………13第5章落料拉深模具结构图……………………………………14第6章二、三次拉深模具结构图………………………………15第7章模具零件的加工工艺过程………………………………16结束语…………………………………………………………………………18参考文献………………………………………………………………………19第1章概论1.1冲压模具在制造业的地位冲压是使板料经分离或成形而得到制件的加工方法。冲压利用冲压模具对板料进行加工。常温下进行的板料冲压加工称为冷冲压。模具是大批生产同形产品的工具,是工业生产的主要工艺装备。模具工业是国民经济的基础工业。模具可保证冲压产品的尺寸精度,使产品质量稳定,而且在加工中不破坏产品表面。用模具生产零部件可以采用冶金厂大量生产的廉价的轧钢钢板或钢带为坏料,且在生产中不需加热,具有生产效率高、质量好、重量轻、成本低且节约能源和原材料等一系列优点,是其他加工方法所不能比拟的。使用模具已成为当代工业生产的重要手段和工艺发展方向。现代制造业的发展和技术水平的提高,很大程度上取决于模具工业的发展。目前,工业生产中普遍采用模具成形工业方法,以提高产品的生产率和质量。一般压力机加工,一台普通的压力机设备每分钟可成形零件几件到几十件,高速压力机的生产率已达到每分钟数百件甚至上千件。据不完全统计,飞机、汽车、拖拉机、电机、电器、仪表、等产品,有60%左右的零件是用模具加工出来的;而自行车、手表、洗衣机、电冰箱及电风扇等轻工业产品,有90%左右的零件时用模具加工出来的;至于日用五金、餐具等物品的大批量生产基本上完全靠模具来进行。显而易见,模具作为一种专用的工艺设备,在生产中的决定性作用和重要地位逐渐为人们所共识。1.2冲压模具的历史发展与现状模具的出现可以追溯到几千年前的陶瓷烧制和青铜器铸造,但其大规模应用却是随着现代工业的崛起而发展起来的。19世纪,随着军火工业、钟表工业、无线电工业的发展,模具开始得到广泛的使用20世纪50年代中期以前,模具...

1、当您付费下载文档后,您只拥有了使用权限,并不意味着购买了版权,文档只能用于自身使用,不得用于其他商业用途(如 [转卖]进行直接盈利或[编辑后售卖]进行间接盈利)。
2、本站所有内容均由合作方或网友上传,本站不对文档的完整性、权威性及其观点立场正确性做任何保证或承诺!文档内容仅供研究参考,付费前请自行鉴别。
3、如文档内容存在违规,或者侵犯商业秘密、侵犯著作权等,请点击“违规举报”。

碎片内容

拉深件模具设计说明书

您可能关注的文档

确认删除?
VIP
微信客服
  • 扫码咨询
会员Q群
  • 会员专属群点击这里加入QQ群
客服邮箱
回到顶部