电脑桌面
添加小米粒文库到电脑桌面
安装后可以在桌面快捷访问

化学锚栓计算(304) VIP免费

化学锚栓计算(304) _第1页
1/13
化学锚栓计算(304) _第2页
2/13
化学锚栓计算(304) _第3页
3/13
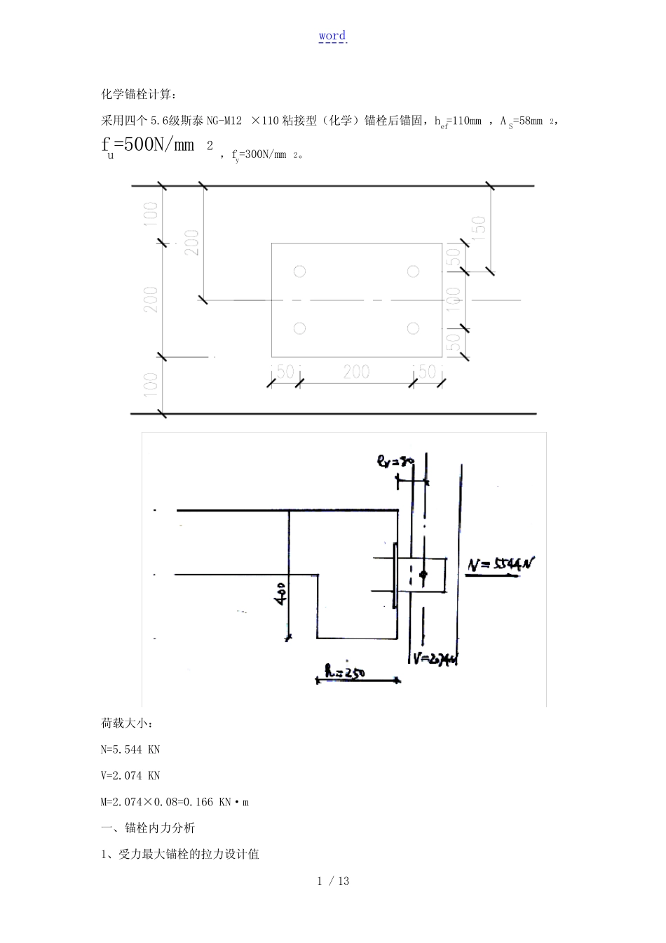
word1/13化学锚栓计算:采用四个5.6级斯泰NG-M12×110粘接型(化学)锚栓后锚固,hef=110mm,AS=58mm2,fu=500N/mm2,fy=300N/mm2。荷载大小:N=5.544KNV=2.074KNM=2.074×0.08=0.166KN·m一、锚栓内力分析1、受力最大锚栓的拉力设计值word2/13因为3612215.544100.166105042250MyNny=556N>0故,群锚中受力最大锚栓的拉力设计值:12ihSdMyNNny3625.544100.166105042250=2216N2、承受剪力最大锚栓的剪力设计值化学锚栓有效锚固深度:efh=efh-30=60mm锚栓与混凝土基材边缘的距离c=150mm<10efh=10×60=600mm,因此四个锚栓中只有部分锚栓承受剪切荷载。承受剪力最大锚栓的剪力设计值:2hSdVV=2074/2=1037N二、锚固承载力计算1、锚栓钢材受拉破坏承载力锚栓钢材受拉破坏承载力标准值:,5850029000RkssstkNAfN锚栓钢材破坏受拉承载力分项系数:S,1.25001.22.0300stkRNykff≥1.41.0-1.55锚栓钢材破坏时受拉承载力设计值:,,,29000145002.0RksRdsRSNNNN>hSdN=2216N锚栓钢材受拉承载力满足规X要求!2、混凝土锥体受拉破坏承载力锚固区基材为开裂混凝土。单根锚栓理想混凝土锥体破坏时的受拉承载力标准值:word3/13,01.5,3.0(30)RkcefcukNhf7.01.53.0(9030)35=8248.64N混凝土锥体破坏情况下,确保每根锚栓受拉承载力标准值的临界间距:,33(9030)180mmcrNefsh混凝土锥体破坏情况下,确保每根锚栓受拉承载力标准值的临界边距:,1.51.5(9030)90mmcrNefch基材混凝土劈裂破坏的临界边距:,22(9030)120mmcrspefch则,c1=150mm>,90crNcmm,取c1=90mm边距c对受拉承载力降低影响系数:,,900.70.30.70.390sNcrNcc=1.0表层混凝土因密集配筋的剥离作用对受拉承载力降低影响系数:,90300.50.5200200efreNh=0.8荷载偏心对受拉承载力的降低影响系数:,,111.012/120ecNNcrNes其中,0Ne开裂混凝土,1.0ucrN单根锚栓受拉,混凝土理想化破坏锥体投影面面积:0222,,18032400mmcNcrNAsword4/13s1=100mm<,取,180crNsmms1=100mms2=200mm>,180crNsmm,取s2=180mmc1=150mm>,90mmcrNc,取c1=90mm,c2=90mm群锚受拉,混凝土破坏锥体投影面面积,cNA:,11,22,(c0.5)(0.5)cNcrNcrNAsscss(901000.5180)(901800.5180)=100800mm2混凝土锥体破坏时的受拉承载力分项系数,,2.15RcN群锚混凝土锥体受拉破坏时的受拉承载力标准值:,0,,,,,,0,cNRkcRkcsNreNecNucrNcNANNA1008008248.641.00.81.01.032400=20529.95N群锚混凝土锥体受拉破坏时的受拉承载力设计值:,,,20529.959548.812.15RkcRdcRcNNNN>N=5544N混凝土锥体受拉承载力满足规X要求!3、混凝土劈裂破坏承载力基材混凝土劈裂破坏的临界边距:,22(9030)120mmcrspefch则,c1=150mm>,120mmcrspc,取c1=120mm,c2=120mmword5/13,,22120240mmcrspcrspscs1=100mm<,240crspsmm,取s1=100mms2=200mm>,240crspsmm,取s2=200mm0222,,24057600mmcNcrspAs,11,22,(c0.5)(0.5)cNcrspcrspAsscss(1201000.5240)(1202000.5240)=149600mm2构件厚度h对劈裂承载力的影响系数:2233h,250()()2260spefhh=1.631>1.5,取h,1.5sp单根锚栓理想混凝土锥体破坏时的受拉承载力标准值:,01.5,3.0(30)RkcefcukNhf1.53.0(9030)35=8248.64N群锚混凝土锥体受拉破坏时的受拉承载力标准值:,0,,,,,,0,cNRkcRkcsNreNecNucrNcNANNA1496008248.641.00.81.01.057600=17138.84N混凝土劈裂破坏受拉承载力标准值:,,,1.517138.8425708.26RksphspRkcNNN混凝土劈裂破坏受拉承载力设计值:,,/25708.26/2.1511957.33RdspRkspRspNNword6/13N>N=5544N混凝土劈裂破坏承载力满足规X要求!4、锚栓钢材受剪破坏承载力锚栓钢材破坏时的受剪承载力标准值:,0.50.55850014500RkssstkVAfN锚栓钢材受剪承载力分项系数:,5001.2/1.22.030...

1、当您付费下载文档后,您只拥有了使用权限,并不意味着购买了版权,文档只能用于自身使用,不得用于其他商业用途(如 [转卖]进行直接盈利或[编辑后售卖]进行间接盈利)。
2、本站所有内容均由合作方或网友上传,本站不对文档的完整性、权威性及其观点立场正确性做任何保证或承诺!文档内容仅供研究参考,付费前请自行鉴别。
3、如文档内容存在违规,或者侵犯商业秘密、侵犯著作权等,请点击“违规举报”。

碎片内容

化学锚栓计算(304)

您可能关注的文档

文达天下+ 关注
实名认证
内容提供者

各类试题、文摘、指南、行业规范

确认删除?
VIP
微信客服
  • 扫码咨询
会员Q群
  • 会员专属群点击这里加入QQ群
客服邮箱
回到顶部