电脑桌面
添加小米粒文库到电脑桌面
安装后可以在桌面快捷访问

BWY-804型变压器温度控制器说明书中文VIP免费

BWY-804型变压器温度控制器说明书中文_第1页
1/17
BWY-804型变压器温度控制器说明书中文_第2页
2/17
BWY-804型变压器温度控制器说明书中文_第3页
3/17
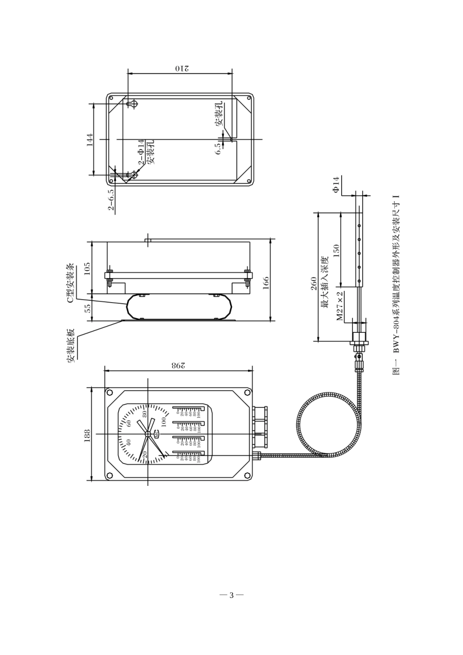
一、概述BWY-804型变压器温度控制器(以下简称804型温控器)是本公司根据JB/T6302《变压器用压力式温度控制器》标准,在BWY-802、803型温度控制器的基础上研制开发的新一代产品。适用于中、大型变压器作油温测量控制。804型温控器具有以下新特点:1、适用范围广:针对变电所无人值班的智能化控制要求,本机能输出以下控制信号:(1)Pt100铂电阻;(2)直流(4-20)mA电流;(3)RS232、RS485通讯接口。2、带有4组开关,开关可全量程设定,分别用于变压器冷却系统的控制,超温报警,超温跳闸等。3、提供两种安装尺寸:为了满足不同用户的使用需求,本机推出两种安装尺寸,供用户选择。(1)安装尺寸I:与BWY-802、803相同的安装尺寸,即JB/T6302标准规定的安装尺寸。我们推荐客户使用。(2)安装尺寸Ⅱ:具有与部分进口仪表相同的安装尺寸,以方便部分原采用进口仪表现需更新仪表的客户使用。二、型号命名804型温控器型号命名的具体含意如下:BWY804(TH)/288FC配计算机方型带接点控制湿热带三防A输出Pt100铂电阻信号D输出直流(4-20mA)电流信号带有4只温度开关表示线性刻度液体压力式温度计变压器AD同时输出Pt100铂电阻和直流(4-20mA)电流信号三、主要技术指标(一)804型温控器主要技术指标—1—1、正常工作条件:(-40~+55)℃2、温度测量范围:(0-100)℃(0-120)℃(0-150)℃3、指示精确度:1.5级4、控制性能:(1)设定范围:全量程可调(2)设定精确度:±3℃(3)开关差:6±2℃(4)额定功率:AC250V/3A(5)标准设定点:(0-100)℃:K1=55℃K2=65℃K3=80℃K4=90℃(0-120)℃:K1=55℃K2=65℃K3=80℃K4=100℃(0-150)℃:K1=55℃K2=65℃K3=80℃K4=130℃5、输出性能:(1)Pt100铂电阻;(2)直流(4-20)mA电流。6、防护等级:IP557、仪表的外形及安装尺寸:(1)804型温控器的外形如图一。(2)804型温控器的安装尺寸:①安装尺寸I(与BWY-802、803相同)见图一;②安装尺寸Ⅱ:拧下6只M4×10沉头螺钉,去掉安装底板就得到如图二所示安装尺寸。—2——3—图二BWY—804系列温度控制器安装尺寸Ⅱ(二)XMT-288F,288FC主要技术指标1、正常工作条件:(-10-50)℃2、温度测量范围:(0-100)℃(0-120)℃(0-150)℃3、精度:1.5级4、分辨率:0.1℃5、输入信号:Pt100铂电阻,三线制(接受804型温控器输出的Pt100铂电阻信号)6、供电电源:AC220V±10%7、控制性能:(1)设定范围:全量程可调(2)设定精确度:±1℃(3)开关差:2℃(4)触点容量:AC250V/3A(5)标准设定点:55℃,80℃—4—8、输出性能(适用于288FC):(1)直流电压:(0-5)V、(1-5)V;(2)直流电流:(4-20)mA;(3)通讯接口:RS232、RS485。9、XMT-288F,288FC的外形及安装尺寸见图三图三XMT—288F,XMT-288FC外形图四、仪表的设定(一)BWY-804型温度控制器温度开关的设定:温控器出厂时各温度开关的设定点已按标准设定点设定好(参见主要技术指标),若用户需要改变设定值,可按如下步骤进行:1、用本机配带的10mm呆扳手打开表盖;2、用本机配带的6mm呆扳手拧松开关固定螺栓(见图四);3、将红色设定针拨动到所需设定值;4、拧紧开关固定螺栓;5、合上表盖。(二)XMT-288F,288FC数显温控仪温度开关的设定:1、将拨动开关拨到设定位置(见图三);—5—2、调节电位器到所需的温度;3、将拨动开关拨回到测量位置。五、仪表的接线804型温控器接线需打开表盖,拧下引线端子上的开关摒紧螺栓(见图四),取出引线密封圈,依次将接线电缆穿入后,一起装入引线端子,然后按接线图要求接好线,最后拧紧开关摒紧螺栓,合上表盖。引线电缆的单根电线截面建议选用1.5mm2。BWY-804DTH接线见图五。BWY-804ATH/XMT-288F接线见图六。BWY-804ATH/XMT-288FC接线见图七。BWY—804AD接线见图八。—6—°C6060040200204020040606004020020408010060引线端子引线密封圈摒紧螺栓1开关固定螺栓设定指针2345678910111213141516图四BWY—804系列温度控制器结构图—7—图五BWY—804DTH接线示意图注:虚线以上部分为仪表内部接线,虚线以下为用户接线。—8—1234567891011风机备用报警跳闸Pt100K1K2K3K4...

1、当您付费下载文档后,您只拥有了使用权限,并不意味着购买了版权,文档只能用于自身使用,不得用于其他商业用途(如 [转卖]进行直接盈利或[编辑后售卖]进行间接盈利)。
2、本站所有内容均由合作方或网友上传,本站不对文档的完整性、权威性及其观点立场正确性做任何保证或承诺!文档内容仅供研究参考,付费前请自行鉴别。
3、如文档内容存在违规,或者侵犯商业秘密、侵犯著作权等,请点击“违规举报”。

碎片内容

BWY-804型变压器温度控制器说明书中文

您可能关注的文档

墨香书阁+ 关注
实名认证
内容提供者

热爱教学事业,对互联网知识分享很感兴趣

确认删除?
VIP
微信客服
  • 扫码咨询
会员Q群
  • 会员专属群点击这里加入QQ群
客服邮箱
回到顶部