电脑桌面
添加小米粒文库到电脑桌面
安装后可以在桌面快捷访问

外幕墙落地脚手架施工方案VIP专享VIP免费

外幕墙落地脚手架施工方案_第1页
1/15
外幕墙落地脚手架施工方案_第2页
2/15
外幕墙落地脚手架施工方案_第3页
3/15
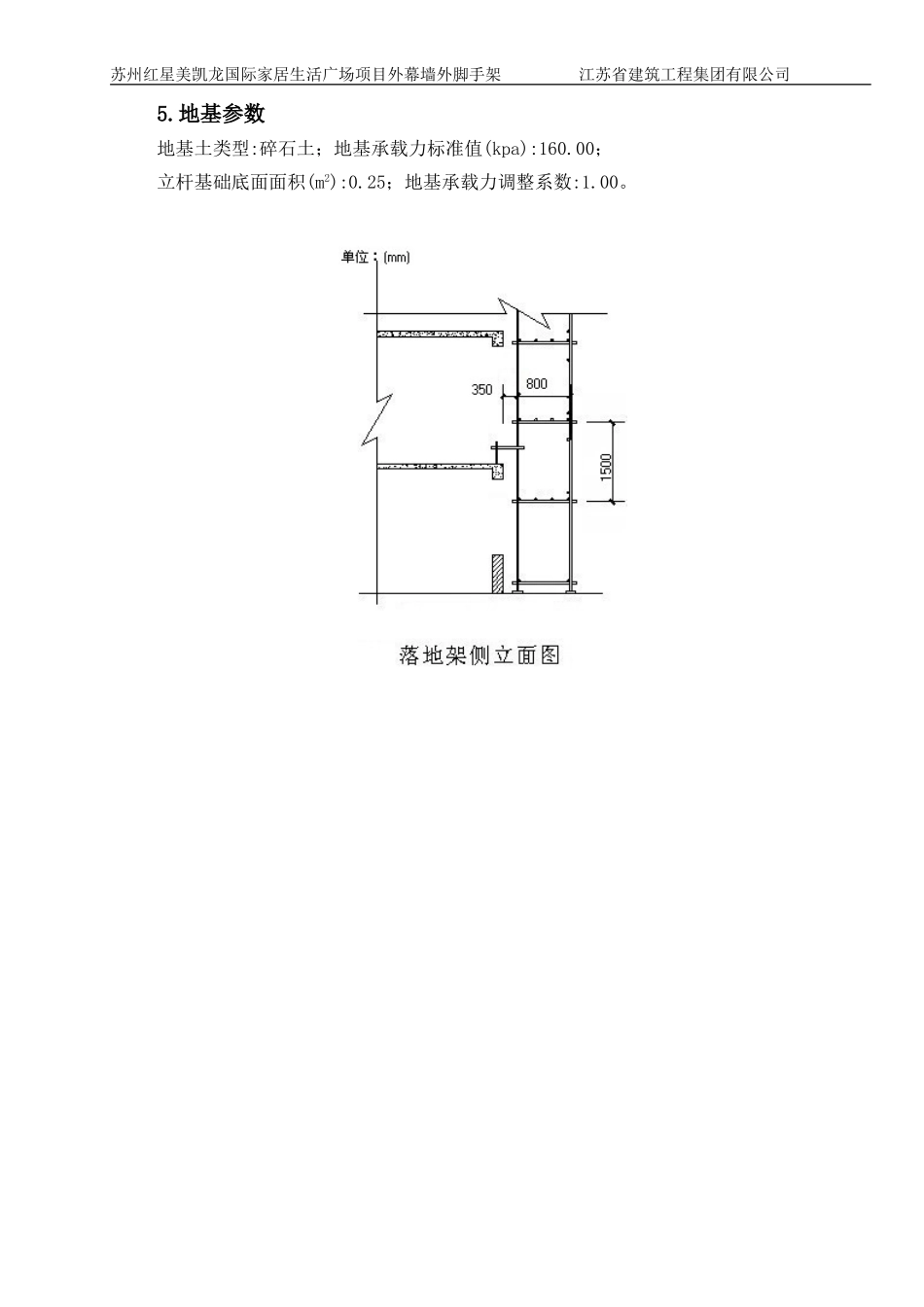
苏州红星美凯龙国际家居生活广场项目外幕墙外脚手架江苏省建筑工程集团有限公司外幕墙落地脚手架施工方案一、工程概况工程名称:苏州红星美凯龙家居生活广场园区店项目工程工程地点:娄葑北区扬华路北、扬帆路东、扬青路南勘察单位:苏州市城市建筑设计院有限责任公司设计单位:苏州苏园建筑设计有限公司建设单位:苏州工业园区中翔美通仓储销售有限公司监理单位:苏州联信工程管理咨有限公司施工单位:江苏省建筑工程集团有限公司本工程位于娄葑北区扬华路北、扬帆路东、扬青路南处,为新建带一层地下车库的5层商场。北面为扬青路,与博洛尼隔道相望,南侧临靠东明装饰城,西面紧靠主干道——312国道,东侧靠近捷普绿點企业厂区,独特的地理优势,超强的人文氛围,使其建成后将成工业园区又一道靓丽的风景线。拟建本工程占地面积约54335.5平方米,建筑面积约为162110平方米(其中地下车库40980平方米),场地东西长333.9米、南北宽约150.5米,场地平面形状呈平行四边形,建筑物平面为长方形,桩筏基础,框剪结构,5层带一层地下车库,檐高29.2米,地下室层高5.2米,标准层高5.1米,外墙主要为幕墙及花岗石装修,内墙为涂料,顶棚为涂料及石膏板吊顶,地面主要为细石砼、大理石、玻化砖地面等。二、施工准备及施工条件1、熟悉建筑工程施工图,了解建筑物构造形式。2、清除脚手架搭设四周的障碍物,分层夯实基础,并做好排水措施。3、对脚手架搭拆施工班组进行安全、技术交底,交底双方均应签字。4、脚手架必须检查验收合格后方能使用。三、主要材料要求1、钢管应符合GB/700标准,表面应光滑,不得有折叠、裂缝、搭焊等缺陷存在,不得有超过壁厚允许偏差值的划道、刮伤、焊缝错位、烧伤结疤等缺陷存在,钢管表面锈蚀的深度<0.50mm,钢管弯曲<12mm。脚手架钢管严禁用电焊或氧焊切割,严禁打孔。剪刀撑漆成黑黄警戒色。2、扣件质量应符合《钢管脚手架扣件》(JGJ22-85)均规定对重复使用的扣件应及时检查,有裂缝、变形的扣件严禁使用。滑丝的螺栓必须更换,垫圈必须齐全,表面应涂油漆防腐,扣件螺栓拧紧,扭力矩达65N.M时,铸铁扣件不得发生破坏。苏州红星美凯龙国际家居生活广场项目外幕墙外脚手架江苏省建筑工程集团有限公司四、主要机具要求主要机具应有扳手、力矩扳手、工具袋套、水准仪、经纬仪、水平尺、线锤等。五、脚手架计算书扣件式钢管落地脚手架的计算依据《建筑施工扣件式钢管脚手架安全技术规范》(JGJ130-2001)、《建筑地基基础设计规范》(GB50007-2002)、《建筑结构荷载规范》(GB50009-2001)、《钢结构设计规范》(GB50017-2003)等编制。一、参数信息:1.脚手架参数双排脚手架搭设高度为27.5米,6米以下采用双管立杆,6米以上采用单管立杆;搭设尺寸为:立杆的纵距为1.5米,立杆的横距为0.8米,大小横杆的步距为1.5米;内排架距离墙长度为0.35米;大横杆在上,搭接在小横杆上的大横杆根数为2根;采用的钢管类型为Φ48×3.0;横杆与立杆连接方式为单扣件;取扣件抗滑承载力系数为0.80;连墙件采用两步三跨,竖向间距3米,水平间距4.5米,采用扣件连接;连墙件连接方式为双扣件;2.活荷载参数施工均布活荷载标准值:2.000kN/m2;脚手架用途:装修脚手架;同时施工层数:1层;3.风荷载参数本工程地处江苏省苏州市,基本风压为0.45kN/m2;风荷载高度变化系数μz为1.00,风荷载体型系数μs为0.65;脚手架计算中考虑风荷载作用4.静荷载参数每米立杆承受的结构自重标准值(kN/m2):0.1394;脚手板自重标准值(kN/m2):0.300;栏杆挡脚板自重标准值(kN/m):0.150;安全设施与安全网(kN/m2):0.005;脚手板铺设层数:22;脚手板类别:竹笆片脚手板;栏杆挡板类别:栏杆、竹笆片脚手板挡板;每米脚手架钢管自重标准值(kN/m2):0.033;苏州红星美凯龙国际家居生活广场项目外幕墙外脚手架江苏省建筑工程集团有限公司5.地基参数地基土类型:碎石土;地基承载力标准值(kpa):160.00;立杆基础底面面积(m2):0.25;地基承载力调整系数:1.00。苏州红星美凯龙国际家居生活广场项目外幕墙外脚手架江苏省建筑工程集团有限公司二、大横杆的计算:按照《扣件式钢管脚手架安全技术规范》(JGJ130-2001)第5.2.4条...

1、当您付费下载文档后,您只拥有了使用权限,并不意味着购买了版权,文档只能用于自身使用,不得用于其他商业用途(如 [转卖]进行直接盈利或[编辑后售卖]进行间接盈利)。
2、本站所有内容均由合作方或网友上传,本站不对文档的完整性、权威性及其观点立场正确性做任何保证或承诺!文档内容仅供研究参考,付费前请自行鉴别。
3、如文档内容存在违规,或者侵犯商业秘密、侵犯著作权等,请点击“违规举报”。

碎片内容

外幕墙落地脚手架施工方案

您可能关注的文档

确认删除?
VIP
微信客服
  • 扫码咨询
会员Q群
  • 会员专属群点击这里加入QQ群
客服邮箱
回到顶部