电脑桌面
添加小米粒文库到电脑桌面
安装后可以在桌面快捷访问

屋顶构造设计VIP免费

屋顶构造设计_第1页
1/4
屋顶构造设计_第2页
2/4
屋顶构造设计_第3页
3/4
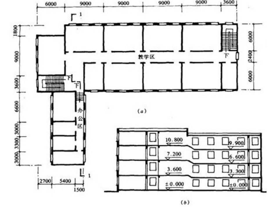
1.设计条件•(1)图为某小学教学楼平面图和剖面图。该教学楼为四层,教学区层高为3.60m,办公区层高为3.30m,教学区与办公区的交界处做错层处理。•(2)结构类型:砖混结构。•(3)屋顶类型:平屋顶。•(4)屋顶排水方式:有组织排水,檐口形式由学生自定。•(5)屋面防水方案:卷材防水或刚性防水。•(6)屋顶有保温或隔热要求。2.设计内容及图纸要求•用A3图纸一张,按建筑制图标准的规定,绘制该小学教学楼屋顶平面图和屋顶节点详图。•(1)屋顶平面图:比例1∶200。•①画出各坡面交线、檐沟或女儿墙和天沟、雨水口和屋面上人孔等,刚性防水屋面还应画出纵横分格缝。•②标注屋面和檐沟或天沟内的排水方向和坡度值,标注屋面上人孔等突出屋面部分的有关尺寸,标注屋面标高(结构上表面标高)。•③标注各转角处的定位轴线和编号。•④外部标注两道尺寸(即轴线尺寸和雨水口到邻近轴线的距离或雨水口的间距)。•⑤标注详图索引符号,注写图名和比例。2.设计内容及图纸要求•(2)屋顶节点详图:比例1∶10或1∶20。•①檐口构造:当采用檐沟外排水时,表示清楚檐沟板的形式、屋顶各层构造、檐沟处的防水处理,以及檐沟板与圈梁、墙、屋面板之间的相互关系,标注檐沟尺寸,注明檐沟饰面层的做法和防水层的收头构造做法;•当采用女儿墙外排水或内排水时,表示清楚女儿墙压顶构造、泛水构造、屋顶各层构造和天沟形式等,注明女儿墙压顶和泛水的构造做法,标注女儿墙的高度、泛水高度等尺寸;•当采用檐沟女儿墙外排水时要求同上。用多层构造引出线注明屋顶各层做法,标注屋面排水方向和坡度值,标注详图符号和比例,剖切到的部分用材料图例表示。•②泛水构造:画出高低屋面之间的立墙与低屋面交接处的泛水构造,表示清楚泛水构造和屋顶各层构造,注明泛水构造做法,标注有关尺寸,标注详图符号和比例。•③雨水口构造:表示清楚雨水口的形式、雨水口处的防水处理,注明细部做法,标注有关尺寸,标注详图符号和比例。•④刚性防水屋面分格缝构造:若选用刚性防水屋面,则应做分格缝,要表示清楚各部分的构造关系,注明细部做法,标注细部尺寸、标高、详图符号和比例。

1、当您付费下载文档后,您只拥有了使用权限,并不意味着购买了版权,文档只能用于自身使用,不得用于其他商业用途(如 [转卖]进行直接盈利或[编辑后售卖]进行间接盈利)。
2、本站所有内容均由合作方或网友上传,本站不对文档的完整性、权威性及其观点立场正确性做任何保证或承诺!文档内容仅供研究参考,付费前请自行鉴别。
3、如文档内容存在违规,或者侵犯商业秘密、侵犯著作权等,请点击“违规举报”。

碎片内容

屋顶构造设计

您可能关注的文档

确认删除?
VIP
微信客服
  • 扫码咨询
会员Q群
  • 会员专属群点击这里加入QQ群
客服邮箱
回到顶部