电脑桌面
添加小米粒文库到电脑桌面
安装后可以在桌面快捷访问

施工用吊篮计算书VIP免费

施工用吊篮计算书_第1页
1/5
施工用吊篮计算书_第2页
2/5
施工用吊篮计算书_第3页
3/5
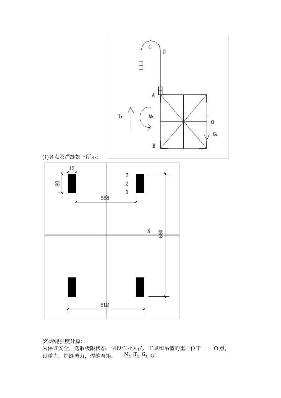
吊篮计算书1.吊篮结构示意图2.荷载计算Ф16钢筋单位长度重量=15.48N/m;作业人员和工具总重=3000N;风载、雪载等因素忽略不计。3.AB面处焊缝强度的计算(1)各点及焊缝如下所示:(2)焊缝强度计算:为保证安全,选取极限状态,假设作业人员、工具和吊篮的重心位于O点。设重力,焊缝剪力,焊缝弯矩。+*+=*=15.48*(0.6*6+0.7*2)+15.48*(0.6*7+0.7*3+0.922*6+0.1*20)+3000=3291N==3291N*0.6=3291*0.6=1974N*M=两钢筋之间的焊缝当作对接焊缝处理。对于单个角焊缝,焊脚尺寸=6mm,焊缝计算长度L=100-2t=100-2*10=80mm。焊缝截面对中性轴x轴的惯性矩:=*24**612*=*588*=3.48*1轴处以上焊缝截面对中性轴的面积矩:==80*612*300–80*588*300=5.76*2轴处以上焊缝截面对中性轴的面积矩:==40*612*320–40*588*320=3.07*为(3轴处)最大正应力3340*1974*10==满足要求=1.92Mpa<140Mpa81048.3推知1、2轴处正应力=1.46Mpa*=*=1.69Mpa=最大切应力(1轴处)为576.*53291*10==0.225Mpa<80Mpa满足要求824103.48推知2、3轴处切应力576.10*53291*=0.12Mpa==824.34810=0验算1、2、3处的折算应力=1.63Mpa=1.82Mpa=1.92Mpa均满足要求3.C截面处强度计算施工时,吊篮弯钩处挂在构件上,考虑安全因素,假设接触面积较小,作用于C点的为集中力。弯矩对C截面应力的影响不加考虑。=+*(0.7*2+0.6*2)+*(0.6*2+0.922*2+0.1*8)=3291+50.9+23.2=2255.5N剪力==2255.5N故C截面剪应力为满足要求=8.86Mpa<125Mpa==4.D截面处强度计算施工时,吊篮弯钩处挂在构件上,整体在自重、支持力和摩擦力的共同作用下保持平衡。此时,DAB杆件与竖直方向有一定的角度。D截面所受拉力可以等截面应力的影响不加考虑。于吊篮自重。弯矩对D=+*(0.7*2+0.6*2)+*(0.6*2+0.922*2+0.1*8)=3291+40.2+59.5=3390N拉力==3390N故D截面拉应力为==13.3Mpa<215Mpa满足要求综述5.

1、当您付费下载文档后,您只拥有了使用权限,并不意味着购买了版权,文档只能用于自身使用,不得用于其他商业用途(如 [转卖]进行直接盈利或[编辑后售卖]进行间接盈利)。
2、本站所有内容均由合作方或网友上传,本站不对文档的完整性、权威性及其观点立场正确性做任何保证或承诺!文档内容仅供研究参考,付费前请自行鉴别。
3、如文档内容存在违规,或者侵犯商业秘密、侵犯著作权等,请点击“违规举报”。

碎片内容

施工用吊篮计算书

确认删除?
VIP
微信客服
  • 扫码咨询
会员Q群
  • 会员专属群点击这里加入QQ群
客服邮箱
回到顶部