电脑桌面
添加小米粒文库到电脑桌面
安装后可以在桌面快捷访问

建筑工程类—建筑制图(3)VIP免费

建筑工程类—建筑制图(3)_第1页
1/43
建筑工程类—建筑制图(3)_第2页
2/43
建筑工程类—建筑制图(3)_第3页
3/43
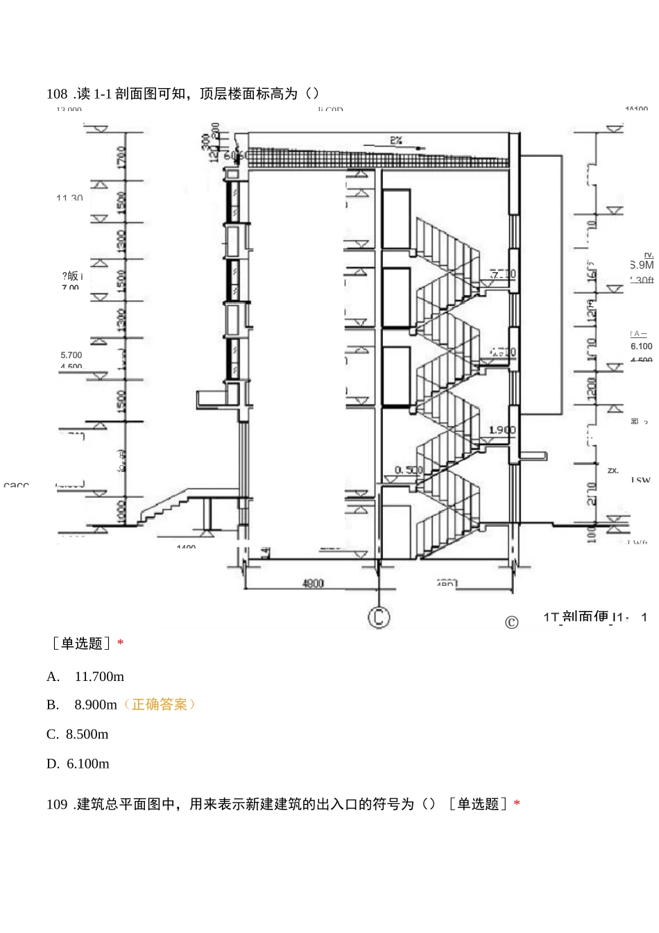
建筑工程类—建筑制图101 .房屋工程施工图因专业不同,一般分为建筑施工图、结构施工图和()[单选题]*A. 给水排水施工图B. 装潢施工图C. 基础施工图D. 设备施工图(正确答案)102 .建筑施工图采用的投影方法是()[单选题]*A. 斜投影B. 正投影(正确答案)C. 中心投影D. 垂直投影103 .建筑施工图中规定,除总平面图外,零点标高应注写成()[单选题]*A. ±0.0B. ±0.00C. ±0.000(正确答案)D. +0.000104 .建筑制图标准中规定,表达一个形体可有六个基本投射方向。平行投射线由上向下垂直 H 面的投影图,叫做()[单选题]*A. 正立面图B. 平面图(正确答案)C. 右侧立图D.底面图105 .楼梯的建筑详图不包括()[单选题]*A. 楼梯的平面图B. 楼梯的剖面图C. 楼梯的立面图(正确答案)D. 踏步、栏杆等节点详图106 .不能把结构施工图作为施工依据的是()[单选题]*A. 施工放样B. 挖基槽C. 室内装修(正确答案)D. 绑钢筋107 .若一平面,其 H 和 W 面投影为垂直于 Y 轴的直线,则该平面一定为()[单选题]*A. 水平面B. 正平面(正确答案)C. 正垂面D. 铅垂面li.C0D2J00§0,000cacc吕o'•二?rv.S.9M7.30ft才 A 一6.1004.500108 .读 1-1 剖面图可知,顶层楼面标高为()[单选题]*A.11.700mB.8.900m(正确答案)C. 8.500mD. 6.100m109 .建筑总平面图中,用来表示新建建筑的出入口的符号为()[单选题]*13.0001^100D7.£4,7亂 3---LWft-14004BD©1T 剖面便 I 1 : 1 5.7004.500gCII11.30?皈 i7,00zx.l.SWA.^(正确答案)B.・CXD"110 .Al 图纸幅面为()[单选题]*A. 297x420B. 420x594C. 594x841(正确答案)D. 841X1189111 .若一平面 W 面投影为一斜线,则该平面一定为()[单选题]*A. 水平面B. 正平面C. 正垂面D. 侧垂面(正确答案)112 .从底层平面图可以看出室外平台标咼为-0.050,则该平台的踢面咼度是()[单选题]*A. 120mmB. 150mm(正确答案)C. 200mmD. 250mm113 .建筑立面图一般水平方向不注尺寸。但需要标注()[单选题]*A. 雨蓬、房檐下口的位置B. 台阶顶面的位置C. 最外两端墙的轴线及编号(正确答案)D. 门窗洞口上下口位置114 .下列建筑材料图例中,表示耐火砖材料的是()[单选题]*A.B.C.(正确答案)/ / /D.115 .根据所给正立面图和平面图,选择正确的左侧立面图()[单选题]*A.B.C.2-2 卿 2-20® IB 点的坐标(5,...

1、当您付费下载文档后,您只拥有了使用权限,并不意味着购买了版权,文档只能用于自身使用,不得用于其他商业用途(如 [转卖]进行直接盈利或[编辑后售卖]进行间接盈利)。
2、本站所有内容均由合作方或网友上传,本站不对文档的完整性、权威性及其观点立场正确性做任何保证或承诺!文档内容仅供研究参考,付费前请自行鉴别。
3、如文档内容存在违规,或者侵犯商业秘密、侵犯著作权等,请点击“违规举报”。

碎片内容

建筑工程类—建筑制图(3)

确认删除?
VIP
微信客服
  • 扫码咨询
会员Q群
  • 会员专属群点击这里加入QQ群
客服邮箱
回到顶部