电脑桌面
添加小米粒文库到电脑桌面
安装后可以在桌面快捷访问

卫生间排气道节点细部做法VIP免费

卫生间排气道节点细部做法_第1页
1/7
卫生间排气道节点细部做法_第2页
2/7
卫生间排气道节点细部做法_第3页
3/7
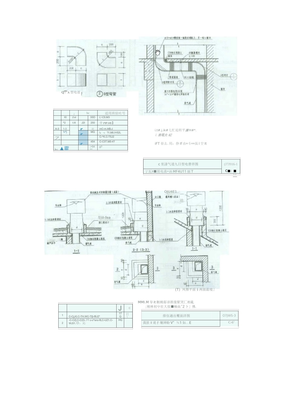
+.为岀 1L 汆牺忡人撷气追内 r 宜柱帖取超莖推施.t 位后,住宅施工单位轻在#气逋占的卑陳处支掳啖檢底模.tJC20fel勇:■雄隙虫轴实,说讦 M 灿座,4.6 譬斤.皈馆等哦吹业対排烟首道不禪梓》.*穷年的排气迸丸.5 施工安装要冬5.1 排气逬安装巫在工廉堵构主停一¥完里丈肯,块讳工程凤并他设毎管暹蚩夷丈前进 A 防女-师左龍.時倒黑为檢岂伴誉领和咽盘的母弓巻配李妖芸丹愛乓,捷顶风寸向在屋密窈承县反保屋踊务层議工酉”拉抵攻计要朮进行":.2 排七遒或装茁.灶电施工单位恋按閘说卄更尹.崔誓足燥扳预密 S•装聊吒电孔网,护偎证各丧駁板预辭孔洞尺力和位盘止礎而艮上.下垂贞时中.舌世幣 4?rO.i-3 推岂道应从下至上運凰安装.苜思安叢时,地面站裁用14*强砂蚩戒早.£4 拌弋逋捲□怪于楼板梵及嗾豆之间討,详见 i 系更排丸道 i 田.5-5 在5.E■園•^创楼厂石勇同刘亓抹勺过外僅滿哇网(措曙划.料】,两远主压搭补抹町飞水冕莎来.5.1 梓屯适堕加外黔别的岸.罠或满.足说苗戌茁武豎刹替迈的 4 至时火柄腋萍耳一5-6 捷亟凤帝的妄装鬲度超过咼窑¥讨閱领为孔毎?.本 SXC 系列扭气道参漏单位;此金蝶些伸有隈公司第制说明(17J91ti1耳粗:枫”脚 ai 时丨叼 1期 t.»齡 bfi3住宅舞气道选型设计及远用要点1.仔主挥 mia 工柞用建槪述性宅排气邃是-科筑魅排除石杲屮烹谯产生讪烟我工生间打诬吒味的捋臣背逹史'EaS 芒刊 ST 箭,橫向排气支甘•防火及訪自烟菲件,揑顶%忻组底.通迈朮币舞荒姻 WL及幷气躺曲机麻作昆,轉 it 宅厨.兔,卫生间般咅包空气橐出到抵奁,雾理用空汗您,杞刘肾唸 11^筌内外环境污療的咼疹.畀就国球击性宅出常用的珂易,卫住间工腿赳品・隹眾备户豹询老勺沽州排却拦用抖气追序圾忒封%通必皱凡齐用够葩说通薇走,保偉气锻嚴畅'A 过,摊向丸气,ir 杲拌吒址乍电-艮负玉力討穴•眈会逍成排气吝咼,彳致申姐申 w 现象的境土.为址,有訥拌气道剧用辆整擲气迫内评肋排吗、道站捋及风析共同世用-旳衍排卷道系统科技气址三力、陆三由训幸宾,有射徘利用止逆用理:Lia%倒诵"电的招气逆 P 用变压叛、澄琵扳睁 W 各雲各尸昔气口枕的盏卸压亢・有的拌气道加刮用览帀降尬#萌总排%u 或安E 力,疑时德彳气逬解骗申門仁师:-烟勺蚪建 F 抽対 1妄装了防文同..当丸衣去生廿應灵尺论够貞动芸讪恰止烟丸版看捷*1 邁亶琏-2 住宅排円道述巫原则脅宅徘丸趙按他用亩能廿为:注宅耐榜排%过耗兽宅卫世问护吒道-按...

1、当您付费下载文档后,您只拥有了使用权限,并不意味着购买了版权,文档只能用于自身使用,不得用于其他商业用途(如 [转卖]进行直接盈利或[编辑后售卖]进行间接盈利)。
2、本站所有内容均由合作方或网友上传,本站不对文档的完整性、权威性及其观点立场正确性做任何保证或承诺!文档内容仅供研究参考,付费前请自行鉴别。
3、如文档内容存在违规,或者侵犯商业秘密、侵犯著作权等,请点击“违规举报”。

碎片内容

卫生间排气道节点细部做法

您可能关注的文档

确认删除?
VIP
微信客服
  • 扫码咨询
会员Q群
  • 会员专属群点击这里加入QQ群
客服邮箱
回到顶部