电脑桌面
添加小米粒文库到电脑桌面
安装后可以在桌面快捷访问

图书馆平面图VIP专享VIP免费

图书馆平面图_第1页
1/8
图书馆平面图_第2页
2/8
图书馆平面图_第3页
3/8
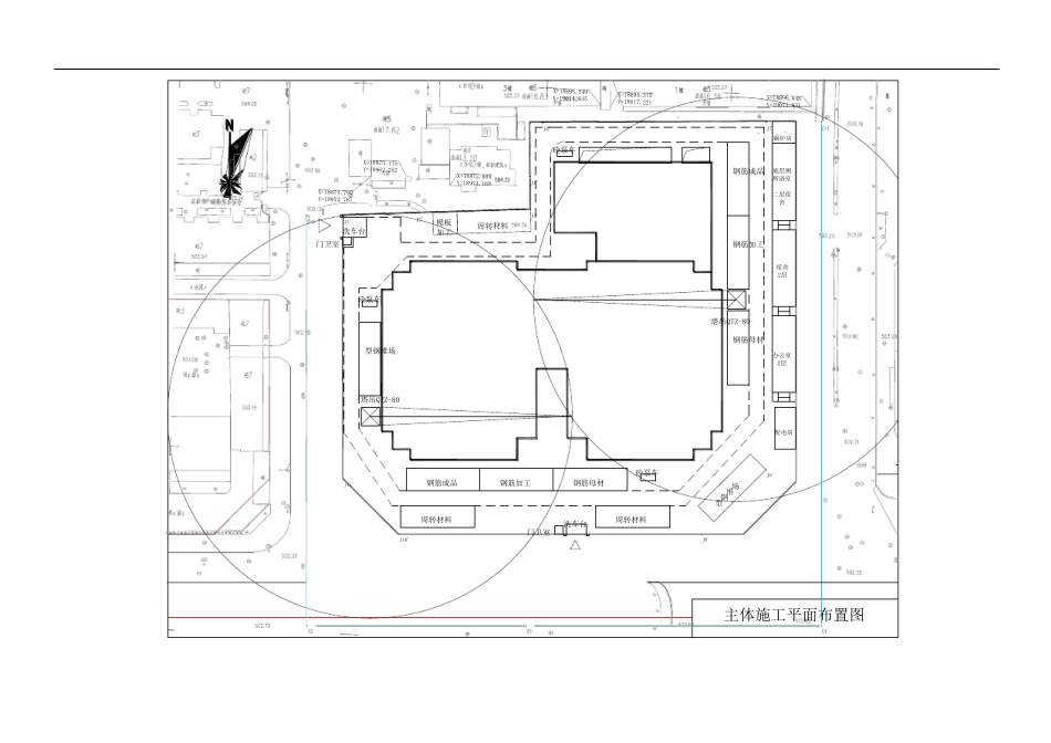
第一施工区域(主楼部分)第二施工区域(群楼部分)第三施工区域(人防通道)施工区域划分平面布置图J2'J3'J4'J6'J7'J8'J9'J10'J11'J1'Z+1Z4Z3Z2Z+2X=18896.848Y=19071.831X=18895.375Y=19017.221X=18895.549Y=19014.635X=18875.175Y=18962.252X=18874.799Y=18952.787X=18872.880Y=18974.168 钢筋母材钢筋加工钢筋成品模板加工模板成品周转材料地下室施工平面布置图锅炉房底层厕所浴室二层宿舍宿舍2层办公室2层配电房洗车台洗车台门卫室钢结构堆场塔吊QTZ-80塔吊QTZ-80J2'J3'J4'J6'J7'J8'J9'J10'J11'J1'Z+1Z4Z3Z2Z+2X=18896.848Y=19071.831X=18895.375Y=19017.221X=18895.549Y=19014.635X=18875.175Y=18962.252X=18874.799Y=18952.787X=18872.880Y=18974.168 钢筋成品模板加工砼泵车周转材料主体施工平面布置图钢筋加工钢筋母材钢筋成品钢筋加工钢筋母材砼泵车砼泵车周转材料周转材料型钢堆场型钢堆场锅炉房底层厕所浴室二层宿舍宿舍2层办公室2层配电房洗车台洗车台门卫室门卫室J2'J3'J4'J6'J7'J8'J9'J10'J11'J1'Z+1Z4Z3Z2Z+2X=18896.848Y=19071.831X=18895.375Y=19017.221X=18895.549Y=19014.635X=18875.175Y=18962.252X=18874.799Y=18952.787X=18872.880Y=18974.168塔吊QTZ-80塔吊QTZ-80 装饰材料堆场钢结构屋面吊装平面布置图钢结构堆场装饰材料堆场装饰材料堆场装饰材料堆场周转材料周转材料钢结构堆场龙门架龙门架干拌砂浆干拌砂浆干拌砂浆龙门架龙门架锅炉房底层厕所浴室二层宿舍宿舍2层办公室2层配电房洗车台门卫室模板加工周转材料幕墙堆场洗车台门卫室J2'J3'J4'J6'J7'J8'J9'J10'J11'J1'Z+1Z4Z3Z2Z+2X=18896.848Y=19071.831X=18895.375Y=19017.221X=18895.549Y=19014.635X=18875.175Y=18962.252X=18874.799Y=18952.787X=18872.880Y=18974.168 装饰材料堆场装饰施工平面布置图钢结构堆场装饰材料堆场装饰材料堆场装饰材料堆场砼泵车周转材料周转材料钢结构堆场龙门架龙门架干拌砂浆干拌砂浆干拌砂浆龙门架龙门架锅炉房底层厕所浴室二层宿舍宿舍2层办公室2层配电房洗车台门卫室模板加工周转材料幕墙堆场洗车台门卫室J2'J3'J4'J6'J7'J8'J9'J10'J11'J1'Z+1Z4Z3Z2Z+2X=18896.848Y=19071.831X=18895.375Y=19017.221X=18895.549Y=19014.635X=18875.175Y=18962.252X=18874.799Y=18952.787X=18872.880Y=18974.168龙门架 砼泵车施工用水平面布置图钢筋加工钢筋加工锅炉房底层厕所浴室二层宿舍宿舍2层办公室2层配电房洗车台门卫室沉淀池沉淀池楼层供水...

1、当您付费下载文档后,您只拥有了使用权限,并不意味着购买了版权,文档只能用于自身使用,不得用于其他商业用途(如 [转卖]进行直接盈利或[编辑后售卖]进行间接盈利)。
2、本站所有内容均由合作方或网友上传,本站不对文档的完整性、权威性及其观点立场正确性做任何保证或承诺!文档内容仅供研究参考,付费前请自行鉴别。
3、如文档内容存在违规,或者侵犯商业秘密、侵犯著作权等,请点击“违规举报”。

碎片内容

图书馆平面图

确认删除?
VIP
微信客服
  • 扫码咨询
会员Q群
  • 会员专属群点击这里加入QQ群
客服邮箱
回到顶部