电脑桌面
添加小米粒文库到电脑桌面
安装后可以在桌面快捷访问

基坑开挖施工技术交底VIP免费

基坑开挖施工技术交底_第1页
1/6
基坑开挖施工技术交底_第2页
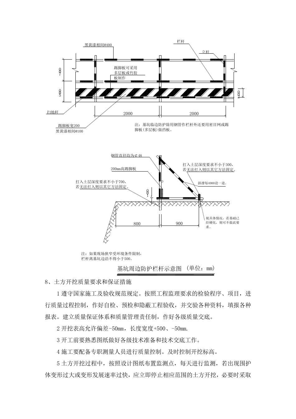
2/6
基坑开挖施工技术交底_第3页
3/6
基 坑 开 挖 施 工 技 术 交 底 1、 施 工 机 械 的 选 择 根 据 本 工 程 的 实 际 情 况 , 由 于 土 方 量 较 大 , 根 据 施 工 机 械 生 产 率 进 行 计 算 ,同 时 由 于 采 用 分 步 分 层 开 挖 ,根 据 总 的 施 工 进 度 安 排 ,为 了 确 保 计 划 目 标 的 完 成 ,每 天 必 须 确 保 出 土 量 在 3500 立 方 米 左 右 , 在 配 备 以 下 施 工 机 械 的 同 时 , 视 实 际情 况 对 挖 机 的 型 号 、 数 量 进 行 及 时 调 整 。 pc-200 挖 掘 机 4 台 pc-120 小 挖 掘 机 2 台 自 卸 车 10 辆 , 同 时 视 运 距 及 时 调 整 。 同 时 为 了 确 保 土 方 外 运 工 作 的 顺 利 进 行 , 保 证 工 程 挖 土 的 进 度 、 质 量 , 土 方施 工 时 必 须 配 备 足 够 的 现 场 管 理 人 员 , 必 须 到 场 组 织 施 工 。 2、 土 方 开 挖 工 程 概 况 根 据 地 质 勘 查 报 告 主 楼 基 坑 开 挖 深 4m。 3、 土 方 开 挖 顺 序 本 工 程 按 施 工 顺 序 为1#-4#主 楼 ==》 1#-4#主 楼 之 间 的 地 库 基 础 ==》 自 南 向西 分 层 开 挖 。 4、 工 程 桩 的 保 护措施 :本 工 程 7#楼 采 用 冲抓灌注桩 。 当土 方 开 挖 至桩 顶标 高时 ,对 工 程 桩 进 行 定位放样, 坑 中坑 挖 土 采 用 小 挖 机 轻挖 , 桩 位周边300mm 范围内采用 人 工 挖 土 , 保 证 工 程 桩 的 桩 身质 量 。 5、 出 土 口部位土 方 开 挖 :出 土 口附近土 方 高差不得超过1.5 米 , 土 方 采 用 逐层分 段开 挖 , 喷锚施 工 完 成48 小 时 内用 塘渣进 行 回填, 分 层 压实 作 为 出 土 通道。整 个挖 土 工 作 完 成 时 , 临时 道路坡口处土 方 , 采 用 长臂的 挖 机 进 行 挖 土 , 直接挖到 设计 标 高, 边挖 边退。 出 土 口坡道坡度 小 于 10%, 宽度 8m。 6、 土 方 开 挖 要求: ○1 、 根 据 基 坑 围护方 案, 结合场 地 实 际 条件基 坑 土 方 开 挖 由 东向 西...

1、当您付费下载文档后,您只拥有了使用权限,并不意味着购买了版权,文档只能用于自身使用,不得用于其他商业用途(如 [转卖]进行直接盈利或[编辑后售卖]进行间接盈利)。
2、本站所有内容均由合作方或网友上传,本站不对文档的完整性、权威性及其观点立场正确性做任何保证或承诺!文档内容仅供研究参考,付费前请自行鉴别。
3、如文档内容存在违规,或者侵犯商业秘密、侵犯著作权等,请点击“违规举报”。

碎片内容

基坑开挖施工技术交底

确认删除?
VIP
微信客服
  • 扫码咨询
会员Q群
  • 会员专属群点击这里加入QQ群
客服邮箱
回到顶部