1.院内感染患者管理流程图确认的感染病例<——>上报科室感染管理小组病例讨论、分析会诊、感染诊断隔离病人药敏培养查找感染原因规范性治...
公司各部门工作流程(通用)1目录1、行政会务工作流程图……………………………………………………………………………..…2、人力资源工作...
目录一.急性胸痛的分诊流程二.针对不同来院途径STEMI患者的救治流程图三.STEMI先诊治后收费流程图四.急性胸痛患者就诊床位安排方案五....
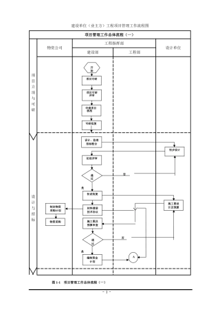
项目管理工作总体流程(一)项目立项与可研设计与招标项目上级主管部门项目领导小组设计单位是是否否-1-项目可研可研批复项目可研评审申请...
建设单位(业主方)工程项目管理工作流程图项目管理工作总体流程(一)项目立项与可研设计与招标物资公司工程指挥部设计单位建设部工程部是...
机关事业单位社会养老保险费征收流程图(行政征收类)(承办科室:社会保障中心咨询电话:0310-3893037)全程监督电话:监察大队:3893076...
来自www.3722.cn中国最大的资料库下载采购部店管部采购需求部门财务处领用部门监事处提出采购需求计划是否有库存?汇总拟订公司总体需求计...
流程图基本技巧流程图基本技巧江志昇2如何画流程图画流程图基本要求流程图符号绘制顺序,应从上至下,从左到到右的顺序。同一路径,指...
工程建设项目审批流程图立项规划选址阶段(︵7个工作日︶︶监理、施工招标阶段︵11个工作日︶核发《建设项目选址意见书》牵头单位:规划局...
房地产公司全套实用流程图【难得】流程目录一、人事行政部行政-01会议管理流程…………………………………………………04行政-02专项档案...
图文转换:流程图、图徽、方位图、漫画作者:shandongliyang12第一类流程图1.科学家培根等人曾提出一种科学知识增长的模式(如下图)。请...
1内部控制制度流程图–终稿2目录1.总则及说明...........................................................................................
房地产项目报建流程图(企业通过“招、拍、挂”拿到土地后)发改委:项目立项(20个工作日)1、项目申请报告2、项目可行性报告3、土地证4、...
一、资金管理总体流程图①②③二、资金计划流程①②③项目名称说明1、月度资金计划各部门根据工作内容,编制下月资金计划2、汇总计划财务根...
行政管理工作流程图制作人:崔翔1行政管理工作流程图目录一、公司发文管理工作流程图......................................................
XXXXXX公司采购管理流程图说明1、接收采购申请:需求单位按《XXXXX通知》(XXX〔XXXX〕XXX号)填报《采购申请表》(见附表1)。2、采购人员...
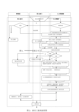
图1:********有限公司人事招聘流程图人力资源部用人部门管理层提出招聘需求申请预算核查审批停止招聘选择招聘渠道并发出招聘信息否同意招...
精选PPT模板+素材+流程图(PPT素材不在多,而在精!)2个年代的发展对比时间线第2页20082009•这里添加说明•这里添加说明•这里添加说明•...
房地产开发全过程流程图项目开发整体操作流程(一)投资决策开发部拓展部市场策划部设计管理部成本管理部财条部销售部工程部运营部物业部总...
思考思考情緒情緒創新創新合作合作40%15%20%20%25%25%投资组合进一步优化备注1:含外币资产境外股权投资,股权投资、股票等渠道含有一定市...

