1漫谈人体的运动与力学人体是个复杂的大系统生命离不开运动,人类的一切活动都离不开运动,竞技场上奥运健儿们的运动更是牵动着亿万人的心...
全国工程地质及土力学复习资料(终极完整版)第一章岩石和地质构造一、地球的构造分为外部和内部两部分。外部包括大气圈、水圈和生物圈;内...
1/4《工程地质与土力学》复习题一、填空题、常见的深成岩浆岩有、、、、橄榄岩、辉岩。、岩石中的裂隙按成因可分为、、。、地下水中常见的...
页眉内容1页脚内容工程地质及土力学复习资料第一章岩石和地质构造一、什么叫矿物质和岩石?说明几种主要的造岩矿物和岩石的种类?矿物:具...
《工程力学》期末复习题及答案2————————————————————————————————作者:———————————————...
《工程力学》题库(含答案)2————————————————————————————————作者:—————————————————...
工程力学试题及答案一、填空题1.物体的平衡是指物体相对于地面__________或作________运动的状态2.平面汇交力系平衡的必要与充分条件是:__...
《工程力学》期末复习题()2————————————————————————————————作者:—————————————————...
......参考材料《工程力学》期末复习题1选择题:(1)下面哪一选项是材料的刚度指标?AA弹性模量E;B屈服极限σs;C强度极限σb;D断后伸长率...
1江南大学现代远程教育2012年下半年第二阶段测试卷考试科目:《工程力学》材料力学第1至6章(总分100分)时间:90分钟__________学习中心(...
工程力学试题及答案一、填空题1.物体的平衡是指物体相对于地面__________或作________运动的状态2.平面汇交力系平衡的必要与充分条件是:__...
第一章习题下列习题中,凡未标出自重的物体,质量不计。接触处都不计摩擦。1-1试分别画出下列各物体的受力图。1-2试分别画出下列各物体系统...
1一、简答题(5×4分=20分)1、何谓应力集中现象?应力集中现象对脆性材料和塑性材料的不利影响是否相同?答:杆件在受力时,由于杆件截面...
《工程力学》期末复习题1选择题:(1)下面哪一选项是材料的刚度指标?AA弹性模量E;B屈服极限σs;C强度极限σb;D断后伸长率(延伸率)δ。(2...
1山西煤炭职业技术学院《工程力学》学习领域课程标准课程名称:工程力学代码:702003总学时数:68学分数:3.5适用专业:采煤专业一、学习领...
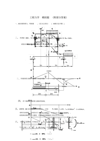
1工程力学模拟题(附部分答案)一、画出梁的剪力、弯矩图。(反力已求出)(画图方法不限).二、外伸梁ABC,受力如图示,现已求出支座反力RA=...
《工程力学》作业参考答案2————————————————————————————————作者:—————————————————...
工程力学常用公式1、轴向拉压杆件截面正应力NFA,强度校核max[]2、轴向拉压杆件变形NiiiFllEA3、伸长率:1100%lll断面收缩率:1100%AAA4、...
《工程力学1》习题解答(一)2001年9月1-1.画出下列指定物体的受力图。解:1-2.画出下列各物系中指定物体的受力图。解:1-3.画出下列各物...
工程力学I模拟试题《工程力学I》模拟试题二考试时间:120分钟题号一二三四总分复核人分数15102550100实得分一、单选题(每小题3分,共15分...

