第 1 单元长度单位5 厘米+20 厘米=()厘米14 厘米+6 厘米=()厘米37 厘米一 7 厘米=()厘米48 厘米一 4 厘米=()厘米答案提示:5 ...
1。1 长度和时间的测量一、单选题1。我校八年级同学们参加了学校组织的月考体育测试.你认为下列成绩记录符合实际的是()A.立定跳远成绩为...
钢筋弯钩增加长度计算序号名称角度计算式1半圆弯钩180°Iz=1.071D+0.571d+Ip2直弯钩90°Iz=0.285D-0.215d+Ip33斜弯钩135°Iz=0.678D+0.178d...
型号线径mm2长度km 理论重量kg/km重量备注型号10440.0016640.0025920.00351270.00501750.00702380.00953230.001203940.001504900.00185612...
、在下面的)里填上合适的单位。、量比较短的物体,通常用)作单位。、在)里填上合适的数。米)厘米+厘米()厘米厘米(厘米一厘米()厘...
专业 word 可编辑广州大学学生实验报告院(系)名称物理系班别姓名专业名称学号实验课程名称普通物理实验 I实验项目名称力学实验:长度...
梁 板 钢 筋 的 下 料 长 度 =梁 板 的 轴 线 尺 寸 -保 护 层 ( 一般 25)+上弯勾尺 寸 180 度 弯勾=6.25d 90...
(一)规范要求 ⑴《混凝土结构设计规范》(GB 50010-2002)(以下简称《混凝土规范》)第 7.3.11条第 2 款规定:一般多层房屋梁柱为...
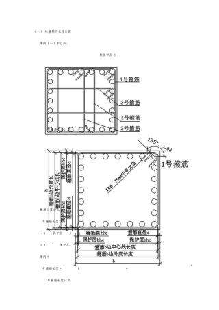
(一) 柱箍筋的长度计算 案例(一)中已知: KZ1 750*700 24B25 A10@100/200 柱保护层为 25mm 1. 1号箍筋长度计算 箍筋计算公...
板钢筋计算公式 一、普通板底筋计算 (一)、底筋长度 底筋长度=净跨+伸进长度×2+弯钩×2 1、当板的端支座为框架梁时 底筋长度=净跨+...
精品文档---下载后可任意编辑梁箍筋数量与长度的计算(附图示例)《混凝土结构施工图平面整体表示方法制图规则和构造详图》(03G101-1)(现浇...
精品文档---下载后可任意编辑 虹桥飞机场出租车数据分析报告---排队长度 张应山 华东师范大学金融与统计学院从数据我们可以得到五种数据...
5.3.2 排队长度模型(方法二) 多车道车辆排队长度的计算是研究车辆由于交通堵塞等意外情况的发生而在研究车道上产生的交通拥挤情况。我们...
挖沟槽计算工程量的内墙长度要减垫层宽度么? 没有要求放坡、垫层宽是外墙宽的3 倍的沟槽。在计算内墙长度时,是直接用剪掉墙宽的内墙净...
小学一年级数学下册长度、时间、元角分单位换算练习(全)单位换算练习题 11、55 元+10 元 60 角=元2、1 小时 15 分 60 秒+2 小...
长度单位换算练习题长度单位换算练习题1 厘米=()毫米1 分米=()厘米100 厘米=()分米=()米1 米=()分米80 分米=()米400 厘米=()分米=()...
钢筋重量表钢筋① 6;kg/m0.222 钢筋 08;kg/m0.3950 钢筋 010 kg/m0.6169钢筋012 kg/m0.8880钢筋014 kg/m1.21钢筋016 kg/m1.5800 钢 ...
八年级物理:时间和长度的测量练习题(含答案) 基础知识训练 1.36mm= dm,900s= min.(题型一、题型五) 2.某同学进行测量记录时...
1 八 年 级 物 理 长 度 单 位 换 算 练 习题及答案 八 年 级 新 开 的 一 门 科 目 就 是 物 理 , 在 学...
时间和长度的测量 在生活、生产和科研中,经常要进行长度和时间的测量.探究物体的运动规律也需要进行长度与时间的测量,所以我们必须学会...

