下载后可任意编辑物料提升机安装方案1、编制依据:《龙门架及井字架物料提升机安全技术法律规范及条文说明》JGJ-92。 《自升式龙门架提升...
合 川 区 育 才 中 学 学 生 宿 舍 、 教 学 楼 工 程龙门架安装施工方案技 术 负 责 人 : 合 川 区 裕 华 建...
下载后可任意编辑施工组织设计(方案)报审表表 B1-3工程名称:秦皇岛北戴河新区旅游接待中心暨总部经济会所 编号:至:秦皇岛市政工程建...
下载后可任意编辑沈海高速公路龙门架施工说明及预算沈海高速此次施工采纳双柱双横梁式龙门架、双柱平台式龙门架、热镀锌龙门架热镀锌后喷塑...
下载后可任意编辑XXXXXXXX 工程龙门架安拆施工方案编制人: 审批人: XXXXXXX 建筑有限公司 XXXXXXXXXXXXXXXXXXXXXXXXX 工程项目经理...
下载后可任意编辑 施工升降机(龙门架)租赁合同 合同编号:承租方:(以下简称:甲方)成都市工业设备安装公司设备租赁站出租方:(以下...
物 料 提 升 机 施 工 方 案 审批: 编制: 自升式门架升降机施工方案 铜川市耀州区XX 工程从主体及装饰工程开始安装1 台JK-...
下载后可任意编辑自升式龙门架安装安全专项方案与自备电厂故障录波屏调试安全技术方案汇编自升式龙门架安装安全专项方案一、工程概况:该工...
下载后可任意编辑自升龙门架安装拆除施工方案与自我鉴定写作技巧参考文本汇编自升龙门架安装拆除施工方案(1)特点和用途自升式龙门架综合...
下载后可任意编辑自升式龙门架安装安全专项方案与自我鉴定写作技巧参考文本汇编自升式龙门架安装安全专项方案一、工程概况:该工程为四层框...
组合龙门架安装方案一、工程概况;移动安装龙门架,由钢制立柱及横梁等附件组成承载框架,通过框架底座平台安装有实验室水池底部预埋的螺栓定...
目 录一. 编制依据31.1 施工图纸......................................................31.2 主要规范、规程..........................
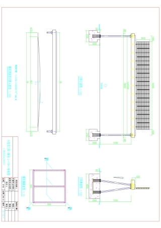
大型龙门架L=18M门架结构图(16000×2400)
龙门架施工方案提高机额定重量在kg一下,提高高度在30米下列为低架;使用的物料提高机必须获得建筑安全监督部门发放的《准用证》,无准用证...
合江县凤鸣初级中学校教师周转宿舍建设项目龙门架专项施工方案泸州顺宏建筑工程有限公司10月20日目录一、工程概括...........................
实用标准方案精彩文档龙门架及井架物料提升机安全技术规范JGJ88-20102010-08-03发布2011-02-01实施实用标准方案精彩文档前言根据住房和城乡...
龙门架施工方案目录一、工程概况二、龙门架结构形式三、龙门架安装施工四、安全注意事项一、工程概况本标段设计桩号3+741至4+391长度650m,...
xx建设工程项目龙门架安装拆除、施工方案编制人:审核人:xx建设工程有限公司项目部2016年5月6日龙门架安装拆除、施工方案本工程为xxx办公...
龙门架施工方案目录一、工程概况二、龙门架结构形式三、龙门架安装施工四、安全注意事项一、工程概况本标段设计桩号3+741至4+391长度650m,...
XSA120型安全龙门架安装方案一、主要技术性能参数序号项目单位参数备注1额定载重量Kg12002运行速度m/min≤403起升高度m25(基本型)可加高...

