劳技中心活动体会 为期两天的学工生活结束了,但仍令我难以忘怀。回想起在劳技中心的课程学习,感受颇深。在那里,我们体会到了动手的快乐...
劳技教学总结时间过得真快, 在平淡与忙碌中, 一学期的工作就这样一晃而过,半年来,在学校和教研组正确领导、同学科教师的大力协作下,...
劳技中心学习感想 去劳技中心有感 在小学六年级上册的外出活动中,去劳技中心让我的感触最深。我们去劳技中心学习了两天:第一天学的是金...
劳技中心学习体会 5 则范文 今天我们参加了,应急救护的学习 本次培训内容包括两个方面: 一、救护新概念、心肺复苏,运用不同种类灭...
时钟【教材分析】《时钟》是九年义务教育小学综合实践活动——小学劳动与技术五年级上册技术初步木盒技术的应用拓展内容。在学生已经学会了...
下载后可任意编辑劳技教研工作打算与勘察设计管理2024年工作计划汇编劳技教研工作打算年新学期我们教研组工作计划打算如下:1,仔细备课抓...
下载后可任意编辑劳技教研工作打算与勘察设计所2024年度工作计划及今后五年工作规划汇编劳技教研工作打算年新学期我们教研组工作计划打算如...
下载后可任意编辑劳动节征文竞赛活动方案与劳技教研工作打算汇编劳动节征文竞赛活动方案五月,是枝繁叶茂生机盎然的季节,是体现劳动价值和...
《纸壁挂》教案教学目标:1、了解一些纸壁挂艺术的浅显知识,丰富学生的知识,拓展视野。2、通过对纸壁挂的质疑探究,培养学生的观察能力,...
课题三、缝沙包教学目标:1、学习并初步掌握缝沙包的基本技能。2、培养兴趣,让学生能根据自己的喜好设计、缝制不同形状的沙包。3、发扬合...
五年级劳动与技术教学计划及进度一、教学目标1教育学生初步懂得劳动创造社会财富、劳动光荣、劳动没有高低贵贱之分的道理。-1-2从小培养他...
三年级上册劳动与技术教学计划(2015-2016学年度上学期)一、学情分析本学期我担任三(1)班的劳动课。孩子们都有着很强的求知欲,其中,大...
20XX年20XX年上劳技计划劳技教学计划劳技课是一门实践性很强的综合性学科,课堂教学要求学生既动脑又动手,手脑并用。这种教学实践活动正式...
纸贴花球执教:李春玲学习目标•1、学会制作纸贴花球。•2、培养动手能力、审美能力和创造性思维的能力。•3、做到每次做完一个作品后要养...
20XX年20XX年上劳技计划2011年秋学期初三劳技(电子电工)教研组工作计划一、指导思想:以学校教学计划为向导,围绕学校工作大局,大力推进...
《创意丝网蝴蝶》——教学设计一、教材分析:《创意丝网蝴蝶》是苏科版《综合实践活动——劳动与技术》五年级下册的《丝网花》的拓展内容。...
一年级上学期劳技教学计划红花梁子小学孙永权新的学期开始了,为更快适应新教材、掌握新教材,根据新课改的要求和精神,特制定劳技教学计划...
劳技教研工作计划一个学校教育教学工作搞的如何,除了学校领导层的正确领导外在教学这一头教研组的工作开展的如何将起到很重要的作用,作为...
中华路小学(劳动与技术)学科第(6)册教案主备教师:陈洁课题:做家用电器的小主人第(1)课时课型:新授一教学目标:1.让学生了解阅读家...
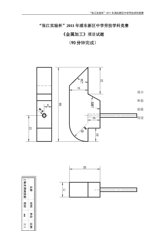
“张江实验杯”2011年浦东新区中学劳技学科竞赛“张江实验杯”2011年浦东新区中学劳技学科竞赛《金属加工》项目试题(90分钟完成)一、试题...

