电脑桌面
添加小米粒文库到电脑桌面
安装后可以在桌面快捷访问

建筑设计总结VIP免费

建筑设计总结_第1页
1/29
建筑设计总结_第2页
2/29
建筑设计总结_第3页
3/29
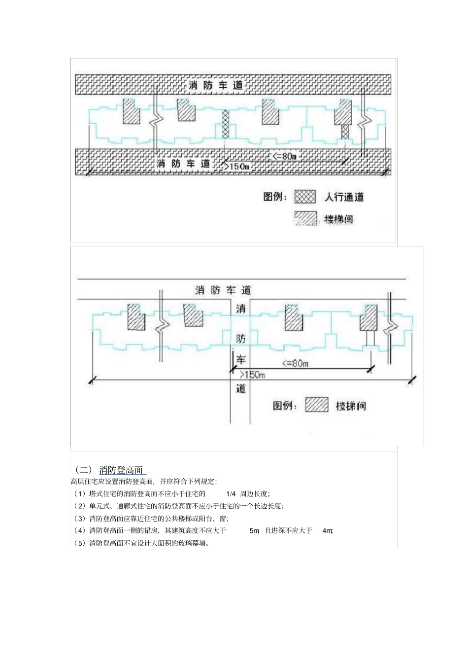
建筑设计总结一、必须了解的规划条件规划局的规划要点:建设用地范围即红线范围、地形情况、 建设用 地面 积、 建筑 规模(地上地下),容积率、绿地率、建筑高度、建筑退界要求、建筑退线要求、建筑间距要求、日照要求、配套公共服务设施要求、停车指标的要求,交通规划 及出入口 等要求。二、制作测算表格根据以上条件,制作测算表格,用甲方提供或甲方大致要求的户型进行强排,估算容积率, 对 项目 定位。 下面是万科总结的各类建筑分别对应的容积率数值。面对客户时可以做初步的项目判断。1. 容积率低于0.3 ,高档的独栋别墅项目。2. 容积率 0.3 -0.5 ,一般独栋别墅项目,密度偏大。穿插部分双拼别墅 、联排别墅,可适当降低密度提高品质。3. 容积率 0.5 -0.8 ,一般的双拼、联排别墅。4. 容积率 0.8 -1.2 ,全多层项目较多。如与低层或联排别墅组合,密度较高。5. 容积率 1.2 -1.5 ,正常的多层项目,环境一般。如果是多层与小高层的组合,环境品质较好。6. 容积率 1.5 -2.0 ,正常的多层+小高层项目。7. 容积率 2.0 -2.5 ,正常的小高层项目。8. 容积率 2.5 -3.0 ,小高层 +二类高层项目(18 层以内)。此时如果做全小高层,环境会很差。9. 容积率 3.0 -6.0 ,高层项目(楼高100 米以内)。10. 容积率 6.0 以上,摩天大楼项目。居住区入口的做法是相对模式化的,设计时要考虑以下问题:(1)门卫管理方便:用最少的人力兼顾车流和人流管理(2)出车的安全,门口要留出驻车的空间,让车在路口停留观察交通状况(3)进车的控制,让误闯的车辆可以及时掉头(4)人车分行另外,要注意门卫室是景观 做还是建筑做,如果是建筑做,是否有退界要求,是否要报批?三、合理布置路网、考虑消防车道(一)消防车道(1)低层、多层、中高层住宅 的居住区内宜设有消防车道,其转弯半径不应小于6m。高层住宅的周围应设有环形车道,其转弯半径不应小于12m,当确有困难时,应至少沿住宅的一个长边设置消防车道。尽端式消防车道的回车场地不应小于15m*15m。(2)联体的住宅群,当一个方向的长度超过150m或总长度超过220m时,消防车道的设置应符合下列之一的规定:a. 消防车道应沿建筑的两个长边设置,消防车道旁应设置室外消火栓 ,且建筑应设置与两条车道连通的人行通道(可利用楼梯间),其间距不应大于80m;b. 建筑的适中位置应设有穿过建筑的门洞,其净高、净宽不应小于4m。(二) 消...

1、当您付费下载文档后,您只拥有了使用权限,并不意味着购买了版权,文档只能用于自身使用,不得用于其他商业用途(如 [转卖]进行直接盈利或[编辑后售卖]进行间接盈利)。
2、本站所有内容均由合作方或网友上传,本站不对文档的完整性、权威性及其观点立场正确性做任何保证或承诺!文档内容仅供研究参考,付费前请自行鉴别。
3、如文档内容存在违规,或者侵犯商业秘密、侵犯著作权等,请点击“违规举报”。

碎片内容

建筑设计总结

确认删除?
VIP
微信客服
  • 扫码咨询
会员Q群
  • 会员专属群点击这里加入QQ群
客服邮箱
回到顶部