电脑桌面
添加小米粒文库到电脑桌面
安装后可以在桌面快捷访问

TD提升机说明书VIP免费

TD提升机说明书_第1页
1/6
TD提升机说明书_第2页
2/6
TD提升机说明书_第3页
3/6
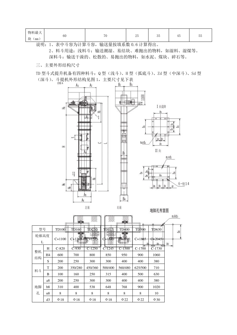
目 录 1.用 途 及 特 点 ---------------------------------------------2 2.技 术 性 能 表 ---------------------------------------------2 3.主 要 外 形 结 构 尺 寸 ------------- -------------------------2 4.安 装 要 求 -----------------------------------------------5 5.试 车 要 求 --------------------------------------------- 7 6.维 护 、 使 用 要 求 --------------------------------------- 7 7. 润 滑 ------------------------------------------------- 8 一 、 用 途 及 特 点 : TD 型 斗 式 提 升 机 是 D 型 的 更 新 换 代 产 品 , 它 的 主 要 性 能 参 数 等 效 或 参照 采 用 了 国 际 标 准 和 国 外 先 进 标 准 , 其 主 要 特 点 是 : 输 送 量 大 、 运 行 平 衡 可 靠 、 速 度 快 、提 升 高 度 大 、 有 良 好 的 密 封 性 , 从 而 扩 大 使 用 范 围 。 可 满 足 建 材 、 机 械 、 电 力 、 化 工 等部 门 多 种 物 料 的 输 送 要 求 。 TD 系 列 斗 提 机 采 用 离 心 式 和 混 合 式 两 种 方 式 卸 料 , 适 用 于 输送 堆 积 密 度 不 大 于 1.5t/m3的 粉 状 、 粒 状 、 小 块 状 的 无 磨 琢 性 、 半 磨 琢 性 物 料 , 如谷物 、煤、 水泥、 沙石、 化 肥等 。 TD 型 物 料 温度 一 般不 超过60℃ 二、 技 术 性 能 表 型 号 TD160 TD250 TD315 TD400 料 斗 型 式 Q H Zd Sd Q H Zd Sd Q H Zd Sd Q H Zd Sd 输 送 量(m3/h) 5.4 9.6 9.6 16 12 22 23 35 17 30 25 40 24 46 41 66 斗 宽(mm) 160 250 315 400 斗 容(L) 0.5 0.9 1.2 1.9 1.3 2.2 3.0 4.6 2 3.6 3.8 5.8 3.1 5.6 5.9 9.4 斗 距(mm) 280 350 360 450 400 500 480 560 带宽(mm) 200 300 400 500 斗 速(m/s) 1.4 1.6 1.6 1.8 物 料 最大块 (mm) 25 35 45 55 型 号 TD500 TD600 D160 D250 D350 D450 料 斗 型 式 Q H Zd Sd H Zd Sd Q S Q S Q S Q S 输 送 量(m3/h) 38 70 58 92 85 89 142 4.7 8 18 22...

1、当您付费下载文档后,您只拥有了使用权限,并不意味着购买了版权,文档只能用于自身使用,不得用于其他商业用途(如 [转卖]进行直接盈利或[编辑后售卖]进行间接盈利)。
2、本站所有内容均由合作方或网友上传,本站不对文档的完整性、权威性及其观点立场正确性做任何保证或承诺!文档内容仅供研究参考,付费前请自行鉴别。
3、如文档内容存在违规,或者侵犯商业秘密、侵犯著作权等,请点击“违规举报”。

碎片内容

TD提升机说明书

确认删除?
VIP
微信客服
  • 扫码咨询
会员Q群
  • 会员专属群点击这里加入QQ群
客服邮箱
回到顶部