电脑桌面
添加小米粒文库到电脑桌面
安装后可以在桌面快捷访问

外墙墙身和楼梯构造设计作业VIP免费

外墙墙身和楼梯构造设计作业_第1页
1/7
外墙墙身和楼梯构造设计作业_第2页
2/7
外墙墙身和楼梯构造设计作业_第3页
3/7
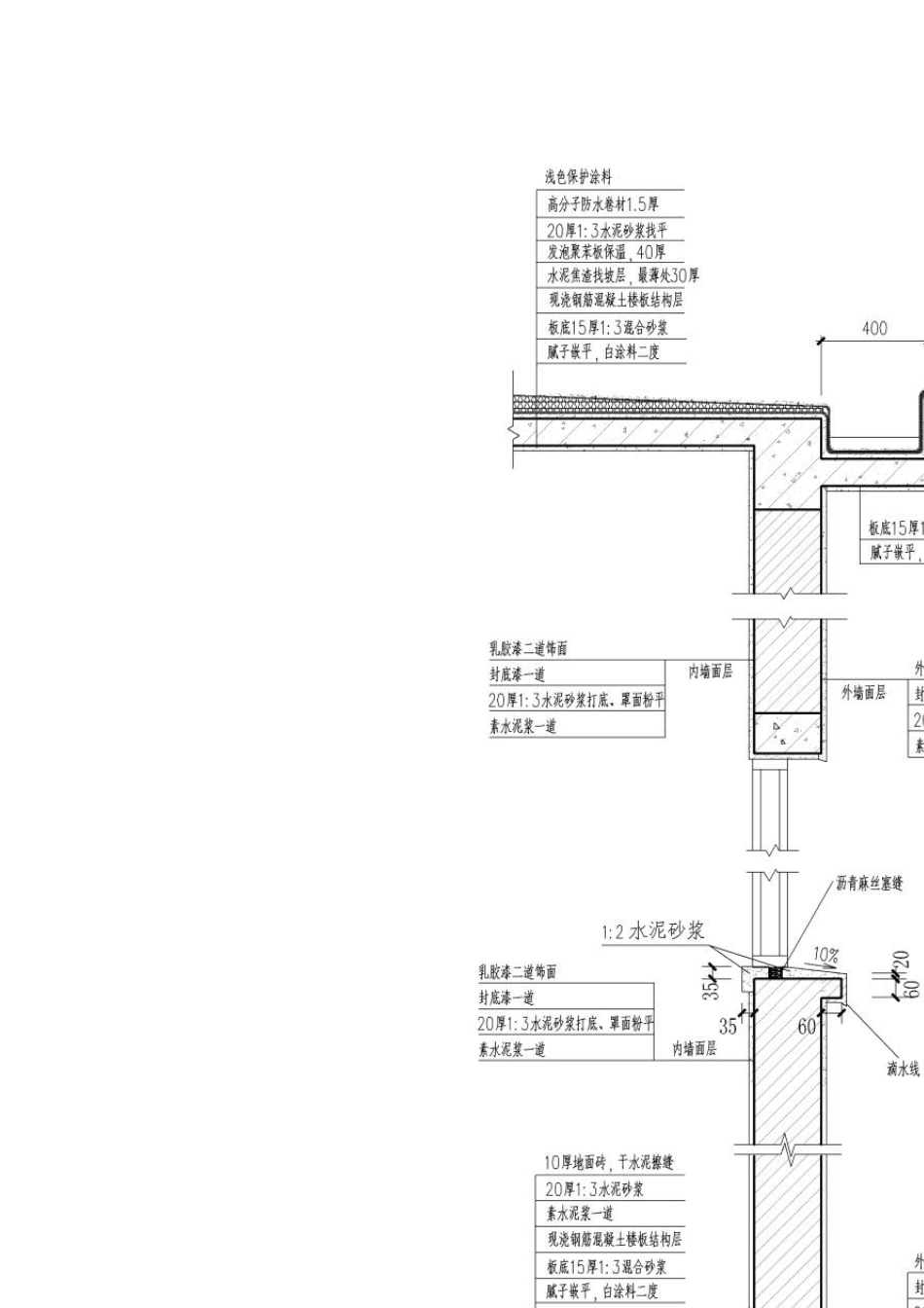
墙身构造设计 作业一 1.设计条件 某三层建筑物(框架结构),外墙采用砖墙(250),墙上有窗。室内外高差为450mm。采用钢筋混凝土楼板,顶屋为钢筋混凝土平屋顶,卷材防水(带保温层)(P260 檐沟与女儿墙)。 2.设计内容 要求沿外墙窗部位剖切,绘制墙身剖面。重点绘制以下内容(比例为1:25)。 (1) 屋面(P113)及檐沟构造(檐沟形式自己确定); (2)楼面与外墙、过梁(窗P133)构造; (3)窗台构造(P135); (4)勒脚(P142)、防潮层(P142-0.06m 20-25 厚 1:2)及地面构造(P107); (5)明沟或散水(P143)。 (6)踢脚 基本思路:先画各部件和构件,确定尺寸,再加保温防水层和面层(第四篇第四章)。尽量用天正画。 3.图纸要求 用一张 3#图纸完成,图中必须注明具体尺寸,注明所用材料; 要求字体工整,线条粗细分明。 独立完成,A 4 或 A 3 白纸打印,每班顺号集中提交。 (17 周) 图签 3、其他要求 五、时间安排 华中科技大学 土木与力学学院 工 程 名 称 专 业 墙身构造设计 图 别 班 级 图 号 姓 名 日 期 教 师 成 绩 六、参考资料六 主要参考资料: 楼梯构造设计作业二 依据下列条件和要求,设计某住宅的钢筋混凝土双跑楼梯。 一、设计条件 该住宅为三层砖混结构,层高 3.0m,楼梯间开间:2.700米、进深:6.600米。墙体均为 240砖墙,轴线居中,底层设有住宅出入口,室内外高差 600mm。 二、设计内容及深度要求 用 A2图纸一张完成以下内容: 1.楼梯间底层、二层和顶层三个平面图,比例 1:50。 (1)绘出楼梯间墙、门窗、踏步、平台及栏杆扶手等。底层平面图还应绘出室外台阶或坡道、部分散水的投影等。 (2)标注两道尺寸线。 开间方向: 第一道:细部尺寸,包括梯段宽、梯井宽和墙内缘至轴线尺寸; 第二道:轴线尺寸; 进深方向: 第一道:细部尺寸,包括梯段长度、平台深度和墙内缘至轴线尺 寸;第二道:轴线尺寸。 (3) 内部标注楼层和中间平台标高、室内外地面标高,标注楼梯上下行指示线,并注明该层楼梯的踏步数和踏步尺寸。 (4) 注写图名、比例,底层平面图还应标注剖切符号。 2.楼梯间剖面图,比例 1:50 (1)绘出梯段、平台、栏杆扶手,室内外地面、室外台阶或坡道、雨篷以及剖切到投影所见的门窗、楼梯间墙等,剖切到部分用材料图例表示。 (2)标注两道尺寸线 水平方向: 第一道:细部尺寸,包括梯段长度、平台宽度和墙内缘至轴线尺寸。 第二道:轴线尺...

1、当您付费下载文档后,您只拥有了使用权限,并不意味着购买了版权,文档只能用于自身使用,不得用于其他商业用途(如 [转卖]进行直接盈利或[编辑后售卖]进行间接盈利)。
2、本站所有内容均由合作方或网友上传,本站不对文档的完整性、权威性及其观点立场正确性做任何保证或承诺!文档内容仅供研究参考,付费前请自行鉴别。
3、如文档内容存在违规,或者侵犯商业秘密、侵犯著作权等,请点击“违规举报”。

碎片内容

外墙墙身和楼梯构造设计作业

您可能关注的文档

确认删除?
VIP
微信客服
  • 扫码咨询
会员Q群
  • 会员专属群点击这里加入QQ群
客服邮箱
回到顶部