电脑桌面
添加小米粒文库到电脑桌面
安装后可以在桌面快捷访问

下承式梁拱结合大桥施工方案VIP免费

下承式梁拱结合大桥施工方案_第1页
1/21
下承式梁拱结合大桥施工方案_第2页
2/21
下承式梁拱结合大桥施工方案_第3页
3/21
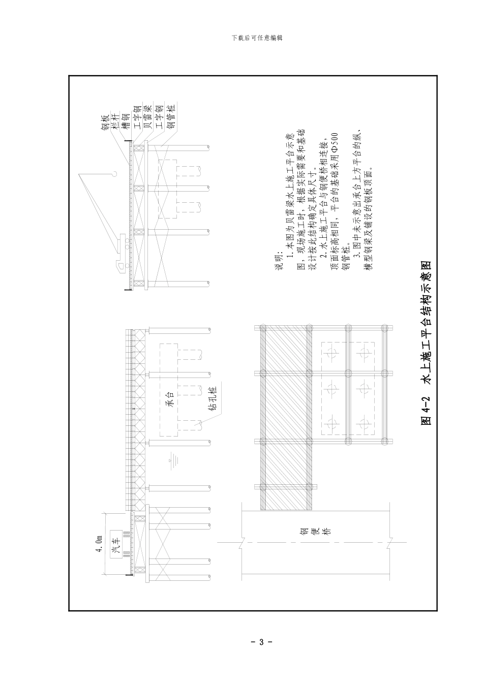
下载后可任意编辑第一章 主要施工方案本工程桥型为刚梁柔拱的七孔梁拱组合体系桥,桥梁全长 1907.21m。主桥跨径为 75+2*125+160+2*125+75。中间五孔设置拱肋。南引桥采纳变截面及等截面连续梁连接主桥,北引桥则为现浇变宽度板梁一、桩基根据本标段的地质情况,钻孔灌注桩采纳冲击钻机成孔,基础位于陆地上,平整场地并压实后钻机直接就位成孔,河道浅水区钻孔桩施工根据实际情况实行筑岛围堰,再上钻机进行钻孔桩施工;河道中深水位采纳水上固定平台及钢板桩围堰施工。桩身钢筋笼在加工场集中制作,运输至现场后吊机下放钢筋笼,导管法灌注水下混凝土。钻孔灌注桩施工工艺流程见图 4-1。筑岛围堰填土时处于岸边的自岸边开始,将土倒在已出水面的堰头上再顺坡送土水中。水面以上填土分层夯实。待围堰稳定后进行基坑排水,同时在围堰迎水面抛投块石,以防冲刷。固定式平台采纳钢管桩、型钢分配梁、贝雷桁架或型钢梁及花纹钢板桥面板的结构形式,平台施工采纳汽车吊或浮吊配振动锤插打钢管桩、汽车吊或浮吊配人工进行梁部及平台面板安装。水中施工平台见图 4-2。二、承台旱地承台,采纳挖掘机开挖基坑,人工清理基坑余土,采纳风镐凿除桩头,经检测桩基符合质量要求后,绑扎承台钢筋,预埋墩身钢筋,然后吊机配合人工支立钢模板,分层浇筑砼,并进行养护。采纳钢板桩围堰施工时,钢板桩用驳船运至现场,在已有水中平台的钢管桩上焊接工字钢做导向梁,利用打桩机等设备插打钢板桩,完成后,抽出围堰内水,进行破桩头,钢筋绑扎,最后分层浇筑砼。砼集中拌制,采纳泵送或驳船运输。钢板桩围堰施工工艺流程见图 4-3。三、墩台施工- 1 -泥浆备料泥浆池平整场地 ( 搭设钻机平台 )桩位放样埋设护筒钻机就位钻 进终孔质量检查清 孔下钢筋笼安装导管再次检查沉渣厚度及泥浆指标,必要时二次清孔水下混凝土灌注拔除护筒凿除桩头,质量检验下道工序孔内造泥浆泥浆沉淀池混凝土拌制及输送检查混凝土质量及顶面标高、制作试件拼装检查导管钢筋笼制作下载后可任意编辑图 4-1 钻孔桩施工工艺流程图(一)普通墩台施工在墩台身旁搭钢管脚手架,汽车吊配合人工安装定型钢模。采纳一模到顶、分层浇注施工方案,洒水覆盖塑料薄膜养生。- 2 -下载后可任意编辑4.0m汽车说明: 1.本图为贝雷梁水上施工平台示意图,现场施工时,根据实际需要和基础设计按此结构确定具体尺寸。 2.水上施工平台与钢便桥相连接,顶面标高相同,平台的基础采用Φ500钢管桩。...

1、当您付费下载文档后,您只拥有了使用权限,并不意味着购买了版权,文档只能用于自身使用,不得用于其他商业用途(如 [转卖]进行直接盈利或[编辑后售卖]进行间接盈利)。
2、本站所有内容均由合作方或网友上传,本站不对文档的完整性、权威性及其观点立场正确性做任何保证或承诺!文档内容仅供研究参考,付费前请自行鉴别。
3、如文档内容存在违规,或者侵犯商业秘密、侵犯著作权等,请点击“违规举报”。

碎片内容

下承式梁拱结合大桥施工方案

确认删除?
VIP
微信客服
  • 扫码咨询
会员Q群
  • 会员专属群点击这里加入QQ群
客服邮箱
回到顶部