电脑桌面
添加小米粒文库到电脑桌面
安装后可以在桌面快捷访问

铁路施工线路加固专项方案VIP免费

铁路施工线路加固专项方案_第1页
1/29
铁路施工线路加固专项方案_第2页
2/29
铁路施工线路加固专项方案_第3页
3/29
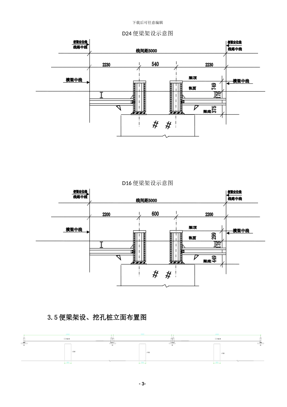
下载后可任意编辑线路加固施工专项施工方案1、人员组织项目负责人:施工负责人:技术负责人:驻战联络员:现场防护员:现场慢行看守人员:现场作业人员:30 名2、工期目标架设便梁和挖孔桩施工拟安排 2024 年 2 月 21 日开工,2024 年 5 月 25 日完工,估计工期 96 天。3、挖孔桩施工边梁架设方案3.1 现场线路状况 现场线路为胶济线上、下行线二条铁路,隧道顶面二条铁路均为 60kg/m钢轨无缝线路,线路为直线,线间距 5.0m。 3.2 总体施工方案 根据设计文件施工方案,挖孔桩施工采纳 D 型施工便梁加固线路,便梁下开挖通道进行挖孔桩施工。根据实际情况,现场采纳 2 孔 D16 和 4 孔 D24 施工便梁加固线路,D24 便梁设置在两端,D16 便梁设置在中间,D24 采纳双线甲式纵梁高位设置。D16 便梁采纳双线丙式纵梁高位设置。3.3 具体便梁架设方法 第一步,便梁运到施工现场(胶济线上下行两侧)。注意事项:便梁卸车不要碰到接触网立柱、栅栏等建筑物,慢卸慢放防止砸伤人。假如夜间到现场必须保证足够的夜间照明。第二步,利用线路封锁点方枕穿设钢横梁。首先根据间距 670mm 对既有轨枕进行方正,将多余的轨枕抽出运走存放好,以便恢复线路时使用,注意方枕必须将轨枕捣固密实。其次根据间距 0.67m 穿设钢横梁,钢枕穿设完毕立即安装钢轨扣件并捣固密实。第三步,清挖钢枕两端道碴。注意事项:使用编织袋装道碴防护钢枕和轨枕端部,防止道碴流塌,清挖深度必须大于设计轨底至纵梁低的高度,具体为 D16 便梁清挖深度不小于 480mm(轨底至纵梁低 449mm),D24 便梁清挖深度不小于 430mm(轨底至纵梁低 375mm)。铺设便梁支点,纵向采纳 2.5m枕木铺设宽 1.0m,横向便梁支点处采纳混凝土支墩,注意一定待混凝土达到设计强度才能承重。第四步,利用线路封锁点采纳人工架设纵梁。注意事项:由于场地限制,全部纵梁只能存放在胶济线上行线外侧,由于施工点和电力接触网以及接触网立柱的限制,纵梁架设只能采纳人工横移跨线后,再人工纵移纵梁就位,纵梁就位后应连接不少于 2 根钢枕。第 1 个封锁点横移下行线济南方外侧纵梁,需跨越 2 条线路,120 分钟施工点,只能完成一片横移,第 2 个封锁点纵移第 1 个封锁点横移进来的纵梁到位,这样完成下行线济南方和青岛方 D24便梁纵梁架设个需要 4 个。完成下行线 D16 便梁纵移需要 2 个封锁点,这样共需要 20 封锁点。- 1-下载后可任意编辑...

1、当您付费下载文档后,您只拥有了使用权限,并不意味着购买了版权,文档只能用于自身使用,不得用于其他商业用途(如 [转卖]进行直接盈利或[编辑后售卖]进行间接盈利)。
2、本站所有内容均由合作方或网友上传,本站不对文档的完整性、权威性及其观点立场正确性做任何保证或承诺!文档内容仅供研究参考,付费前请自行鉴别。
3、如文档内容存在违规,或者侵犯商业秘密、侵犯著作权等,请点击“违规举报”。

碎片内容

铁路施工线路加固专项方案

您可能关注的文档

确认删除?
VIP
微信客服
  • 扫码咨询
会员Q群
  • 会员专属群点击这里加入QQ群
客服邮箱
回到顶部