电脑桌面
添加小米粒文库到电脑桌面
安装后可以在桌面快捷访问

mastercam9.1三维画图训练作业四VIP免费

mastercam9.1三维画图训练作业四_第1页
1/6
mastercam9.1三维画图训练作业四_第2页
2/6
mastercam9.1三维画图训练作业四_第3页
3/6
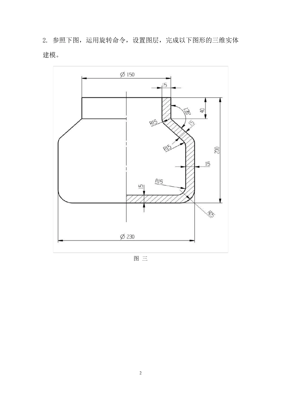
1 一、基础部分 1 . 参照下图,运用所学的绘图命令,按尺寸绘制二维轮廓 ,设置图层。 图 一 图 二 2 2. 参照下图,运用旋转命令,设置图层,完成以下图形的三维实体建模。 图 三 3 3. 参照下图,运用拉伸、基准平面等命令,设置图层,完成以下图形的三维实体建模。 图 四 图 五 4 二、拓展部分 图 六 5 图 七 图 八 6 注:基础部分图形的绘制(图1 到图5)作为作业每个学生必须完成(到下个星期二中午12 点钟以前发的作业有效,超过时间发的作业算没有交),拓展部分的绘图(图6 到图8)针对想提高自身水平的学生做(不做为作业来考核)。完成全部作业后压缩成绘图者的拼音文件夹发送给我的邮箱:**************** 发的主题学生的姓名及学号班级

1、当您付费下载文档后,您只拥有了使用权限,并不意味着购买了版权,文档只能用于自身使用,不得用于其他商业用途(如 [转卖]进行直接盈利或[编辑后售卖]进行间接盈利)。
2、本站所有内容均由合作方或网友上传,本站不对文档的完整性、权威性及其观点立场正确性做任何保证或承诺!文档内容仅供研究参考,付费前请自行鉴别。
3、如文档内容存在违规,或者侵犯商业秘密、侵犯著作权等,请点击“违规举报”。

碎片内容

mastercam9.1三维画图训练作业四

小辰+ 关注
实名认证
内容提供者

出售各种文档和资料

相关文档

确认删除?
VIP
微信客服
  • 扫码咨询
会员Q群
  • 会员专属群点击这里加入QQ群
客服邮箱
回到顶部