电脑桌面
添加小米粒文库到电脑桌面
安装后可以在桌面快捷访问

《AUTOCAD2004机械制图零件图集》——轴类零件部分(001050)VIP免费

《AUTOCAD2004机械制图零件图集》——轴类零件部分(001050)_第1页
1/50
《AUTOCAD2004机械制图零件图集》——轴类零件部分(001050)_第2页
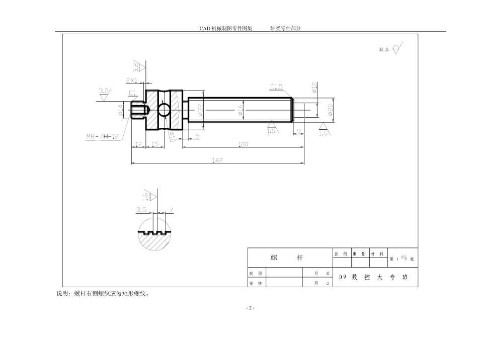
2/50
《AUTOCAD2004机械制图零件图集》——轴类零件部分(001050)_第3页
3/50
CAD 机械制图零件图集 轴类零件部分 - 1 - 其余瓦房店市职教中 心制 图审 核月 日月 日比 例重 量材 料第 ( ) 张液 压 缸1 :1 说明:由于该轴长度比较大,故画法上使用了断裂画法绘制。 CAD 机械制图零件图集 轴类零件部分 - 2 - 其余螺 杆0 9 数 控 大 专 班第 ( ) 张材 料重 量比 例月 日月 日审 核制 图 说明:螺杆右侧螺纹应为矩形螺纹。 CAD 机械制图零件图集 轴类零件部分 - 3 - 技术要求:、 调 质,表 面 在 规 定 长 度 范 围 内 表 面 渗 碳 淬 火 硬 度 至 5 5 - 6 2, 淬 硬 层 0 . 7 - 1 . 52 、 倒 角 均 为、 去 锐 边 毛 刺4 、 线 性 尺 寸 未 注 公 差 为主 动 轴0 9 数 控 大 专 班第 ( ) 张材 料重 量比 例月 日9 月 2 日审 核制 图 CAD 机械制图零件图集 轴类零件部分 - 4 - 其余0 9 数 控 大 专 班第 ( ) 张材 料重 量比 例月 日9 月 2 日审 核制 图 轴 说明:左右两端未注倒角均为 C1.5 CAD 机械制图零件图集 轴类零件部分 - 5 - 法 兰 轴0 9 数 控 大 专 班第 ( ) 张材 料重 量比 例月 日9 月 2 日审 核制 图 说明:左侧Φ 5、Φ 17 为通孔,宽 20 为双面槽,底面距离 24。 CAD 机械制图零件图集 轴类零件部分 - 6 - 模数 2齿数压力角 技术要求、 未 注 倒 角22 、 未 注 圆 角中 心 孔其 余制 图审 核9 月2 日月 日比 例重 量材 料第( )张0 9 数 控 大 专 班齿 轮 轴 说明:左侧Φ 20m6、Φ 20m6 为轴承内圈配合表面。 CAD 机械制图零件图集 轴类零件部分 - 7 - 制 图审 核9 月2 日月 日比 例重 量材 料第( )张 技术要求1 、 铸 件不 得 有 砂 眼 、 裂 纹2 、 锐 边 倒 角 为3 、 未 注 圆 角 为其 余0 9 数 控 大 专 班 轴 CAD 机械制图零件图集 轴类零件部分 - 8 - 制 图审 核月 日月 日比 例重 量材 料第( )张0 9 数 控 大 专 班丝 杠 CAD 机械制图零件图集 轴类零件部分 - 9 - 技 术 要 求调 质 处 理 2 4 1 - 2 6 9其 余制 图审 核月 日月 日比 例重 量材 料第( )张0 9 数 控 大 专 班轴 类 零 件: 1 CAD 机械制图零件图集 ...

1、当您付费下载文档后,您只拥有了使用权限,并不意味着购买了版权,文档只能用于自身使用,不得用于其他商业用途(如 [转卖]进行直接盈利或[编辑后售卖]进行间接盈利)。
2、本站所有内容均由合作方或网友上传,本站不对文档的完整性、权威性及其观点立场正确性做任何保证或承诺!文档内容仅供研究参考,付费前请自行鉴别。
3、如文档内容存在违规,或者侵犯商业秘密、侵犯著作权等,请点击“违规举报”。

碎片内容

《AUTOCAD2004机械制图零件图集》——轴类零件部分(001050)

小辰5+ 关注
实名认证
内容提供者

出售各种资料和文档

确认删除?
VIP
微信客服
  • 扫码咨询
会员Q群
  • 会员专属群点击这里加入QQ群
客服邮箱
回到顶部