电脑桌面
添加小米粒文库到电脑桌面
安装后可以在桌面快捷访问

鸿业管线的基础知识

鸿业管线的基础知识_第1页
1/69
鸿业管线的基础知识_第2页
2/69
鸿业管线的基础知识_第3页
3/69
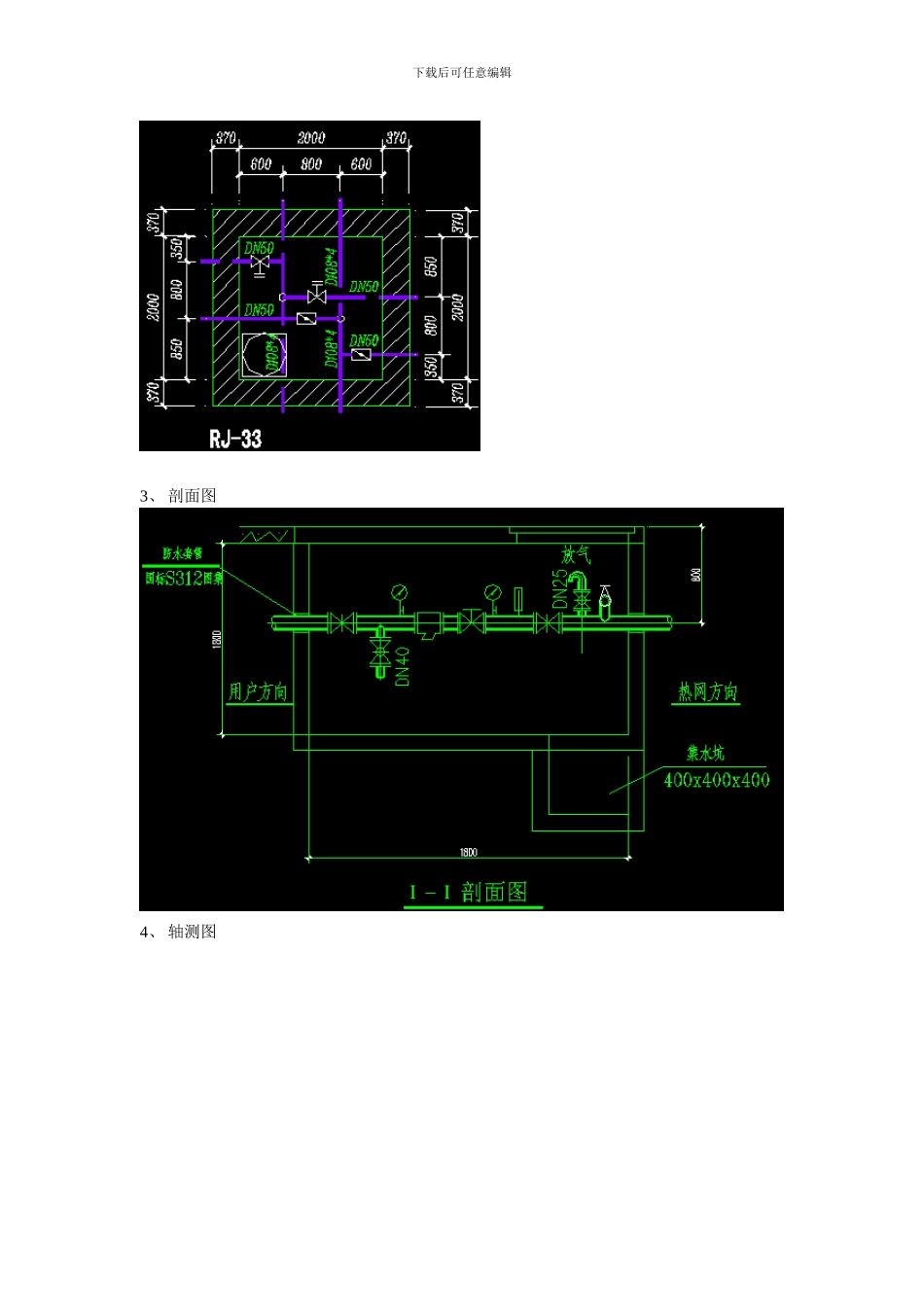
下载后可任意编辑制图的基础知识一、比例:图纸上 1mm 所代表的以 mm 为单位的实际距离的数值。一般表示为 1:***。例如,我们绘制 1:500 的地形图,指的就是图纸上的 1 毫米代表野外地形的 500 毫米。对于给定的一个实际距离 L 米 ,它在 1:500 图纸上的绘制大小为 L*1000/500;相反的,图纸上的 L 毫米代表的实际距离就是 L*500/1000。二、几种常用的图形表现形式总平面图、局部大样图(详图)、剖面图、轴测图、原理图、纵断面图、横断面图1、 总平面图下载后可任意编辑2、 局部大样图下载后可任意编辑3、 剖面图4、 轴测图下载后可任意编辑5、 纵断面图下载后可任意编辑三、一套图纸的构成室外给排水或市政管线:图纸目录、图例表、材料表、设计说明、平面图、纵断面图、给水节点详图、管道土石方表、基础详图、接口详图、支墩详图、……下载后可任意编辑下载后可任意编辑下载后可任意编辑下载后可任意编辑四、轴测图的含义轴测图是一种表示管道三维空间关系的一种制图方式。一般是 X 方向水平,Z 方向竖直,Y 方向根据某个角度绘制(一般是 45 度)。下载后可任意编辑 ————> 平面图 轴测图五、纵断面图的含义纵断面图就是沿着管线或道路方向,用剖面形式表示管道标高、埋深等信息的一种图纸常见的参照方向有:管道长度(管道里程桩断面、选择断面)、道路长度(中桩断面)、X 方向长度(投影断面)六、横断面图的含义沿管道垂直方向绘制的一种剖面图,表示管道之间的横向和竖向位置关系、管径和标高等信息。七、设计阶段划分和不同阶段图纸规划阶段(初步设计阶段):用于指导后期的施工图设计,管道位置、管径、标高等不一定是真实存在的,后续的施工图设计还可能会微调。施工图阶段:用于指导施工的图纸,管道位置、管径、标高等都是真实的。八、制图标准的应用下载后可任意编辑九、鸿业软件的绘图约定在鸿业室外给排水或市政管线中 1 个绘图单位代表实际工程的 1 米。三维管线支持两种绘图状态:毫米图、米图。不论出图比例是多少,平面图在 CAD 图形中的大小是固定的,实现不同比例图纸表示是通过 PLOT 打印控制绘图仪上面 1 毫米代表图形上多少个绘图单位来实现的。基于这个约定,不同出图比例的平面图,在软件中主要表现在文字大小的不同、图块大小的不同等。十、标注左右上下的推断。进行图面标注的时候,常常要推断标注内容是在标注引出点的上、下、左、右。推断下载后可任意编...

1、当您付费下载文档后,您只拥有了使用权限,并不意味着购买了版权,文档只能用于自身使用,不得用于其他商业用途(如 [转卖]进行直接盈利或[编辑后售卖]进行间接盈利)。
2、本站所有内容均由合作方或网友上传,本站不对文档的完整性、权威性及其观点立场正确性做任何保证或承诺!文档内容仅供研究参考,付费前请自行鉴别。
3、如文档内容存在违规,或者侵犯商业秘密、侵犯著作权等,请点击“违规举报”。

碎片内容

鸿业管线的基础知识

文旅传媒+ 关注
实名认证
内容提供者

传播文化,成就未来

确认删除?
VIP
微信客服
  • 扫码咨询
会员Q群
  • 会员专属群点击这里加入QQ群
客服邮箱
回到顶部