电脑桌面
添加小米粒文库到电脑桌面
安装后可以在桌面快捷访问

清水混凝土模板工程施工技术

清水混凝土模板工程施工技术_第1页
1/6
清水混凝土模板工程施工技术_第2页
2/6
清水混凝土模板工程施工技术_第3页
3/6
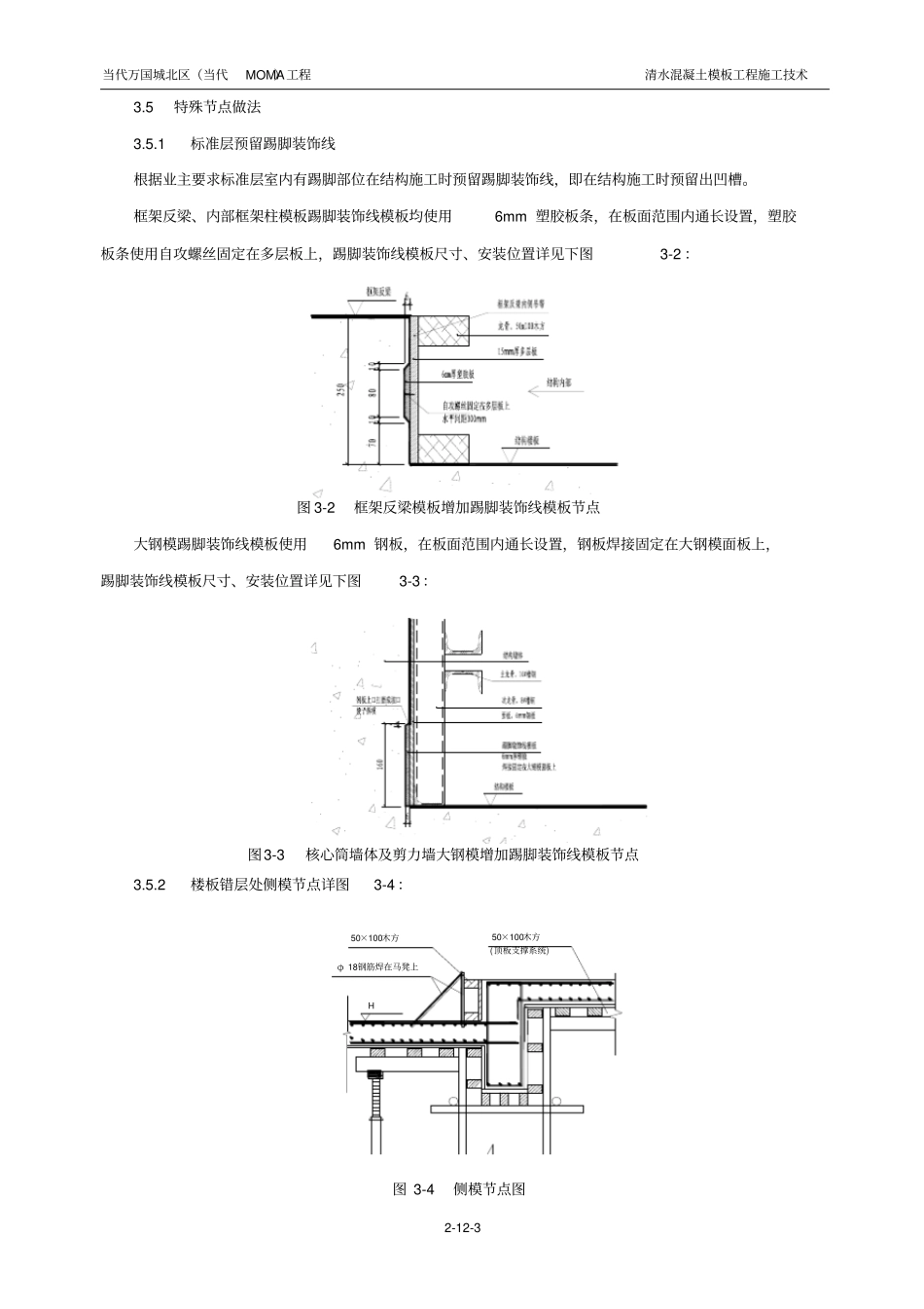
当代万国城北区(当代MOMA)工程清水混凝土模板工程施工技术2-12-1 12 清水混凝土模板工程施工技术1 工程概况当代万国城北区工程采用框架- 核心筒结构。 B2 层高 4.15m,B1 层高 5.3m,首层高 4.55m,其余层高 3.05m。框架柱柱距3300mm,柱截面尺寸400×800,顶板厚度250mm。框架柱混凝土强度等级C40~C50,梁、顶板混凝土强度C35。2 工程特点与难点2.1 工程特点2.1.1 结构形式复杂,构件形式多种多样,层间构件截面变化多。2.1.2 主体结构外框架梁采用上反梁,梁截面尺寸较高。2.1.3框架柱大部分是劲性柱,为了结构受力合理,在一部分两根相邻外框架柱之间设立斜支撑,给框架柱模板的支设带来很大困难。2.1.4层高较高,部分单层达到12m 多,越层部分、超高部分多。2.1.5外框架柱、外框架梁部分为了安装窗户需要,设置子口,需要配置异型模板。2.2 工程难点2.2.1部分独立框架柱高度大、截面尺寸大,需要严格保证框架柱截面尺寸。2.2.2地下网球场高度高,模板支撑体系搭设工程量大,搭设困难。2.2.3主体结构增加了窗框反檐,框架梁,框架柱均需配置异型模板,给模板的加工和安装都带来很大难度。2.2.4工程质量标准高,质量目标确保北京市“结构长城杯金奖”, 混凝土分项要达到结构长城杯“精”标准。2.2.5结构形式复杂,各种构件规格多,尺寸跨度大,标高错落变化多,特殊节点形式多,设备系统多,预留孔洞、设备管道错综复杂,给翻样下料工作带来很大难度。3 模板设计3.1 地下墙体模板设计:地下室外墙,临空墙以及单元隔墙使用木模板支设,按楼层高度一次支设到位;3.1.1 面板: 15 厚多层板。3.1.2 次龙骨: 50mm ×100mm 木方(立放),间距300mm 。3.1.3主龙骨:两根100mm ×100mm 木方并排(横放),2.5m 以下间距 600mm ,2.5m 以上间距 800mm 。当代万国城北区(当代MOMA)工程清水混凝土模板工程施工技术2-12-2 3.1.4 穿墙螺栓:采用M20 工具式止水螺栓,水平间距600mm ,2.5m 以下竖向间距600mm ,2.5m 以上竖向间距800mm 。3.1.5 斜撑: Φ 48 钢管支撑配U 形托撑,上中下三道支撑,水平间距不超过1200mm 。3.1.6模板高度:层高-板厚(梁高)+30mm 。3.2 地下墙体钢模板设计各楼核心筒及与核心筒相连的剪力墙使用定型大钢模,大钢模按照标准层楼层高度配置,地下室层高较高,但墙体截面尺寸、定位同标准层,使用大钢模施工,墙体需分两次浇筑,大钢模需进行一次提升。3.3 框架柱...

1、当您付费下载文档后,您只拥有了使用权限,并不意味着购买了版权,文档只能用于自身使用,不得用于其他商业用途(如 [转卖]进行直接盈利或[编辑后售卖]进行间接盈利)。
2、本站所有内容均由合作方或网友上传,本站不对文档的完整性、权威性及其观点立场正确性做任何保证或承诺!文档内容仅供研究参考,付费前请自行鉴别。
3、如文档内容存在违规,或者侵犯商业秘密、侵犯著作权等,请点击“违规举报”。

碎片内容

清水混凝土模板工程施工技术

确认删除?
VIP
微信客服
  • 扫码咨询
会员Q群
  • 会员专属群点击这里加入QQ群
客服邮箱
回到顶部