电脑桌面
添加小米粒文库到电脑桌面
安装后可以在桌面快捷访问

防护栅栏预制技术交底样本

防护栅栏预制技术交底样本_第1页
1/12
防护栅栏预制技术交底样本_第2页
2/12
防护栅栏预制技术交底样本_第3页
3/12
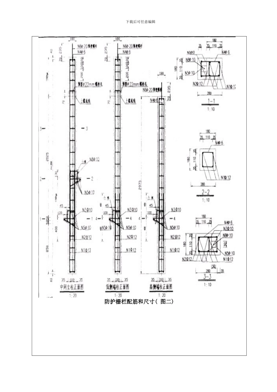
下载后可任意编辑工程名称路基工程交底编号交底项目防护栅栏预制交底日期交 底 人复 核 人一、 钢筋混凝土防护栅栏1. 立柱: 2.2m 高防护栅栏立柱截面尺寸为 18*18cm, 两侧设置 10cm 长牛腿支撑。牛腿支撑用以搭接下槛。2. 上槛及下槛: 上槛分端部用和中间用两种形式, 分别使用于防护栅栏起终点位置及中间位置, 2.2m 高混凝土防护栅栏, 上槛高度 12.5cm, 其下部有向下开口的卡槽, 卡槽深度 2cm, 下槛高度 17.5cm, 其上部有向下的卡槽, 深度 1cm。上槛下槛宽度均为 18cm 预制钢筋混凝土栏片经过上下槛的卡槽固定。3. 栏片: 栏片分两片预制, 2.2m 高混凝土防护栅栏的栏片高 187.5cm。4. 柱帽: 2.2m 高防护栅栏的柱帽截面尺寸为 18*18cm, 高度 15cm。柱帽中心预留螺栓孔, 用于立柱顶部及台阶过渡处前后上槛间的连接, 拼装后螺栓孔采纳 C30 细石混凝土封填。二、 钢筋混凝土防护栅栏配筋和尺寸见附图下载后可任意编辑防护栅栏配筋和尺寸( 图一) 下载后可任意编辑防护栅栏配筋和尺寸( 图二) 下载后可任意编辑下载后可任意编辑下载后可任意编辑下载后可任意编辑下载后可任意编辑下载后可任意编辑下载后可任意编辑下载后可任意编辑下载后可任意编辑如有不详之处请及时与技术人员联系, 严禁私自施工! 接底人: 接底日期:

1、当您付费下载文档后,您只拥有了使用权限,并不意味着购买了版权,文档只能用于自身使用,不得用于其他商业用途(如 [转卖]进行直接盈利或[编辑后售卖]进行间接盈利)。
2、本站所有内容均由合作方或网友上传,本站不对文档的完整性、权威性及其观点立场正确性做任何保证或承诺!文档内容仅供研究参考,付费前请自行鉴别。
3、如文档内容存在违规,或者侵犯商业秘密、侵犯著作权等,请点击“违规举报”。

碎片内容

防护栅栏预制技术交底样本

您可能关注的文档

确认删除?
VIP
微信客服
  • 扫码咨询
会员Q群
  • 会员专属群点击这里加入QQ群
客服邮箱
回到顶部