电脑桌面
添加小米粒文库到电脑桌面
安装后可以在桌面快捷访问

级配碎石、场拌改良土建站实施方案

级配碎石、场拌改良土建站实施方案_第1页
1/27
级配碎石、场拌改良土建站实施方案_第2页
2/27
级配碎石、场拌改良土建站实施方案_第3页
3/27
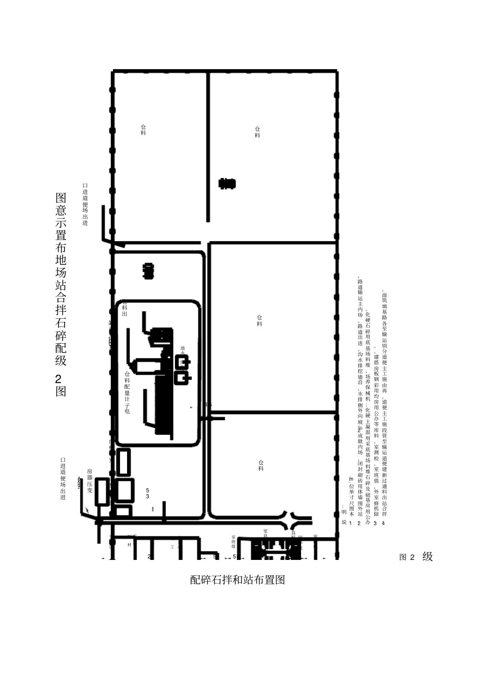
一工程概况我 部 施 工 管 段DK180+700~ DK181+819.08 , DK182+547.08 ~DK183+141.66,DK183+557.66~DK183+735.15,DK184+462.15~ DK184+505,DK185+185~ DK185+191.48, DK185+555.48~ DK185+942.2, DK186+402.2~DK186+410, DK186+700~ DK187+038.27, DK187+838.27~ DK188+191.29,DK188+479.29~DK188+734.35,DK188+894.35~DK189+195.11,DK189+731.11~DK190+175,DK190+550~DK191+100共 13 段路基工程。二拌和站规划 2.1拌和站设置根据我部级配碎石的数量分部及工程工期需要,我部拟建碎石拌和站和场拌改良土站 1 座,位于土峻头隧道附近。表 1 改良土、级配碎石拌和站设置一览表序位置面积用途供应量备注1# 土峻头隧道附近约 25 亩级配碎石及场拌改良土WBS500型拌合机出料仓电子计量配料仓100t水泥罐操作室水池进出场便道进口说明:1、本图尺寸单位:m。2、站外围墙体用砖砌封闭,场内做成2%坡向外侧排水,沿墙挖排水沟。进出道路、场内主运输道路、办公用房基础及碎石堆料场基底采用混凝土硬化;机械保养场、堆料场基底用碎石硬化。3、除机修室外,值班室、检测室、料库等办公用房均用彩钢板房搭建。。4、拌合站出料通过新建便道运输至管段施工主便道,再由施工主便道分别运输至各路基填筑面。3.53.5变压器房200kVA配电室小型机具保养间职工休息室值班室机修室值班室厕所工地办公室检测室材料管理室地磅发电机房20510555图2 级配碎石拌合站场地布置示意图料仓料仓料仓料仓进出场便道进口图 2 级配碎石拌和站布置图WBS500型拌合机出料仓电子计量配料仓100t水泥罐操作室水池备土区进出场便道进口机械保养场备土区石灰备料区进出场便道出口YST-600A型液压碎土机3.53.5变压器房200kVA配电室小型机具保养间职工休息室值班室机修室值班室厕所工地办公室检测室材料管理室地磅发电机房石灰备料区备土区备土区场内主运输便道1020101015备土区消解池消解池备土区图3 厂拌改良土拌合站场地布置示意图说明:1、本图尺寸单位:m。2、拌和站位于取土场附近,平面尺寸约70m*50m,5.3亩。3、拌和站外围墙体用砖砌封闭,场内做成2%坡向外侧排水,沿墙挖排水沟。进出道路、场内主运输道路、办公用房基础及碎石堆料场基底采用混凝土硬化;机械保养场、堆料场基底用石灰土硬化。4、除机修室外,值班室、检测室、料库等办公用房均用彩钢板房搭建。石灰堆料场、备土区及石粉料库搭建临时料棚。5、拌合站出料通过新...

1、当您付费下载文档后,您只拥有了使用权限,并不意味着购买了版权,文档只能用于自身使用,不得用于其他商业用途(如 [转卖]进行直接盈利或[编辑后售卖]进行间接盈利)。
2、本站所有内容均由合作方或网友上传,本站不对文档的完整性、权威性及其观点立场正确性做任何保证或承诺!文档内容仅供研究参考,付费前请自行鉴别。
3、如文档内容存在违规,或者侵犯商业秘密、侵犯著作权等,请点击“违规举报”。

碎片内容

级配碎石、场拌改良土建站实施方案

爱的疯狂+ 关注
实名认证
内容提供者

该用户很懒,什么也没介绍

确认删除?
VIP
微信客服
  • 扫码咨询
会员Q群
  • 会员专属群点击这里加入QQ群
客服邮箱
回到顶部