电脑桌面
添加小米粒文库到电脑桌面
安装后可以在桌面快捷访问

建筑施工之钢框木(竹)胶合板模板

建筑施工之钢框木(竹)胶合板模板_第1页
1/41
建筑施工之钢框木(竹)胶合板模板_第2页
2/41
建筑施工之钢框木(竹)胶合板模板_第3页
3/41
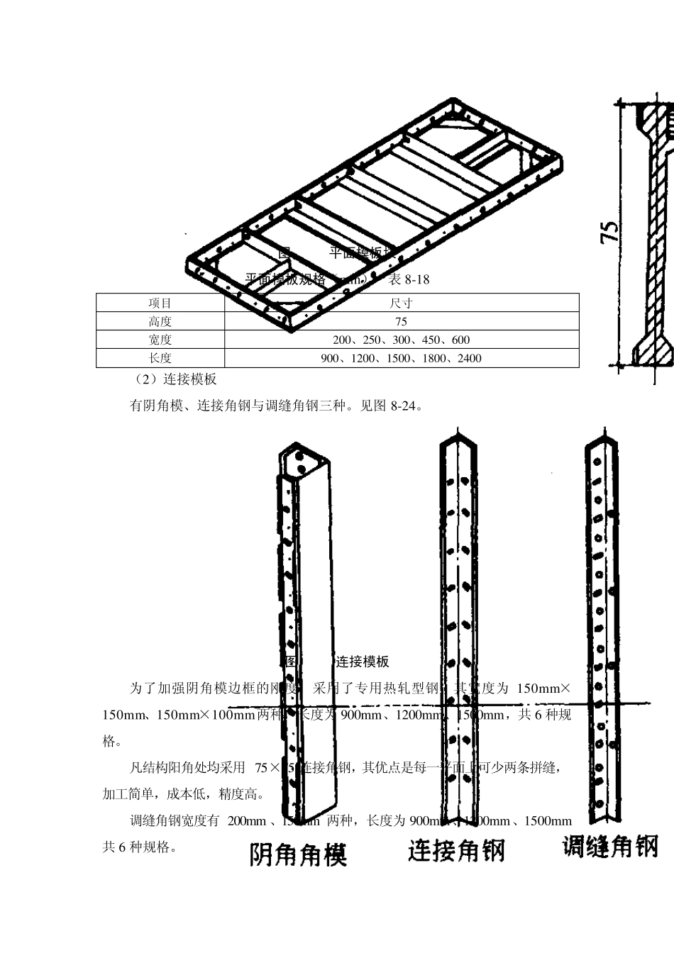
建筑施工之钢框木(竹)胶合板模板 钢框木(竹)胶合板模板,是以热轧异型钢为钢框架,以覆面胶合板作板面,并加焊若干钢肋承托面板的一种组合式模板。面板有木、竹胶合板,单片木面竹芯胶合板等。板面施加的覆面层有热压三聚氰胺浸溃纸、热压薄膜、热压浸涂和涂料等。 品种系列(按钢框高度分)除与组合钢模板配套使用的55 系列(即钢框高55m m ,刚度小、易变形)外,现已发展有63、70、75、78、90 等,其支承系统各具特色。现行《钢框竹胶合板模板》(JG/T 3059-1999)标准中,选定边框高度为75mm 。 钢框木(竹)胶合板的规格长度最长已达到 2400m m,宽度最宽已达到1200m m。因此,具有:自重轻、用钢量少、面积大,可以减少模板拼缝,提高结构浇筑后表面的质量和维修方便,面板损伤后可用修补剂修补等特点。 目前钢框木(竹)胶合板模板的产品较多,现将有代表性的几种产品作简要介绍。 8 -1 -3 -1 7 5 系列钢框胶合板模板 75 系列模板是由中国建筑科学研究院建筑机械化研究所(河北省廊坊市)凯博新技术开发公司研制开发的一种新型模板,是由高度为75m m 的钢框木胶合板模板与配件组成,又称凯博-75 系列模板。 1.组成 (1)平面模板块 平面模板以600m m 为最宽尺寸,作为标准板,级差为50m m 或其倍数,宽度小于 600m m 的为补充板。长度以2400m m 为最长尺寸,级差为300m m 。见图8-23 和表 8-18。 图 8-23 平面模板块 平面模板规格(m m ) 表8-18 项目 尺寸 高度 75 宽度 200、250、300、450、600 长度 900、1200、1500、1800、2400 (2)连接模板 有阴角模、连接角钢与调缝角钢三种。见图8-24。 图 8-24 连接模板 为了加强阴角模边框的刚度,采用了专用热轧型钢,其宽度为150m m ×150m m、150m m×100m m 两种,长度为900m m 、1200m m 、1500m m ,共 6 种规格。 凡结构阳角处均采用75×75 连接角钢,其优点是每一平面上可少两条拼缝,加工简单,成本低,精度高。 调缝角钢宽度有200m m 、150m m 两种,长度为900m m 、1200m m 、1500m m共 6 种规格。 平面模板和连接模板共44 种规格,可满足拼装柱、梁、板、井梯井筒模各种结构尺寸的需要,见图8-25、图8-26。 图8-25 用角模拼装90°转角、十字、端头模板 图8-26 用调缝角钢拼装的 80~200mm的非标准模板 (3)配件 有连接件、支承架两部分。 1)连接件:有楔形销、单双管背...

1、当您付费下载文档后,您只拥有了使用权限,并不意味着购买了版权,文档只能用于自身使用,不得用于其他商业用途(如 [转卖]进行直接盈利或[编辑后售卖]进行间接盈利)。
2、本站所有内容均由合作方或网友上传,本站不对文档的完整性、权威性及其观点立场正确性做任何保证或承诺!文档内容仅供研究参考,付费前请自行鉴别。
3、如文档内容存在违规,或者侵犯商业秘密、侵犯著作权等,请点击“违规举报”。

碎片内容

建筑施工之钢框木(竹)胶合板模板

您可能关注的文档

确认删除?
VIP
微信客服
  • 扫码咨询
会员Q群
  • 会员专属群点击这里加入QQ群
客服邮箱
回到顶部