电脑桌面
添加小米粒文库到电脑桌面
安装后可以在桌面快捷访问

通风隐蔽工程验收记录

通风隐蔽工程验收记录_第1页
1/12
通风隐蔽工程验收记录_第2页
2/12
通风隐蔽工程验收记录_第3页
3/12
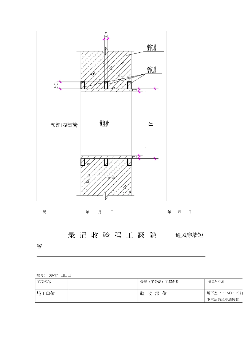
隐 蔽 工 程 验 收 记 录通风穿墙短管编号: 06-17 □□□工程名称分部(子分部)工程名称通风与空调施工单位位 验 收 部地下室 1~7/A ~D轴下三层通风穿墙短管施工执行标准名GB50243 -2002 《通风与空调工程施工质量验收规范》称及编号/ 分项工程名称检验批编号检查项目检查情况说明或简图:穿墙短管材料型号及规格符合要求根据施工图与施工质量验收时在墙内预埋 IDN600 的穿测量管穿墙时在墙内预埋定位,固定牢固,施工质量穿墙短管预埋数量、位置符合要求穿墙短管固定符合要求检查验收意施工单位: 项目专业质量检查员(签名)项目专业技术负责人(签名):专业监理工程师(签名):(建设单位项目技术负责人)见年月日年月日录 记 收 验 程 工 蔽 隐通风穿墙短管编号: 06-17 □□□工程名称分部(子分部)工程名称通风与空调施工单位验 收 部 位地下室 1~7/D ~K 轴下三层通风穿墙短管施工执行标准名GB50243 -2002 《通风与空调工程施工质量验收规范》称及编号/ 分项工程名称检验批编号检查项目检查情况说明或简图:穿墙短管材料型号及规格符合要求根据施工图与施工质量验收测压管安装在 DN500、DN穿墙短管,放射性监测取样墙内预埋 DN50I 型穿墙短管施工质量符合设计与规范要穿墙短管预埋数量、位置符合要求穿墙短管固定符合要求施工单位检查:验项目专业质量检查员(签名)专业监理工程师(签名)收:项目专业技术负责人(签名): 意(建设单位项目技术负责人)见年月日年月日隐 蔽 工 程 验 收 记 录通风穿墙短管□□□06-17 编号:工程名称分部(子分部)工程名称通风与空调施工单位验 收 部 位轴地~ F 地下室 1/12~18/三层通风穿墙短管施工执行标准名GB50243 -2002 《通风与空调工程施工质量验收规范》称及编号/ 分项工程名称检验批编号检查项目检查情况说明或简图:穿墙短管材料型号及规格符合要求根据施工图与施工质量验收超压排气活门安装在墙I 型预埋 DN250的穿墙短管 , 测的穿墙短管,气密测量管穿定牢型穿墙短管,短管采用穿墙短管预埋数量、位置符合要求穿墙短管固定符合要求施工单位检查:验项目专业质量检查员(签名)专业监理工程师(签名)收:项目专业技术负责人(签名): 意(建设单位项目技术负责人)见年月日年月日隐 蔽 工 程 验 收 记 录通风穿墙短管□□□06-17 编号:工程名称分部(子分部)工程名称通风与空调施工单位验 收 部 ...

1、当您付费下载文档后,您只拥有了使用权限,并不意味着购买了版权,文档只能用于自身使用,不得用于其他商业用途(如 [转卖]进行直接盈利或[编辑后售卖]进行间接盈利)。
2、本站所有内容均由合作方或网友上传,本站不对文档的完整性、权威性及其观点立场正确性做任何保证或承诺!文档内容仅供研究参考,付费前请自行鉴别。
3、如文档内容存在违规,或者侵犯商业秘密、侵犯著作权等,请点击“违规举报”。

碎片内容

通风隐蔽工程验收记录

您可能关注的文档

确认删除?
VIP
微信客服
  • 扫码咨询
会员Q群
  • 会员专属群点击这里加入QQ群
客服邮箱
回到顶部