电脑桌面
添加小米粒文库到电脑桌面
安装后可以在桌面快捷访问

PC吊装技术交底

PC吊装技术交底_第1页
1/17
PC吊装技术交底_第2页
2/17
PC吊装技术交底_第3页
3/17
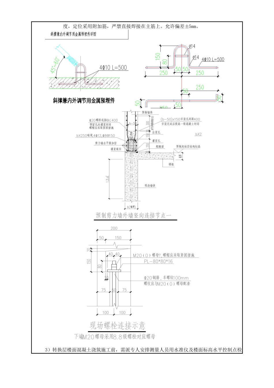
PC 吊装施工技术交底记录编号:颛 桥 镇 闵 行 新 城工程名称MHC10601单元施工部位PC 吊装施工0104A04地块施工图号PC 施工图施工班组PC 吊装班日 期2018年8月5日内容:PC 包含部分为:剪力墙、围护墙、柱、楼梯、叠合楼板;一、准备工作1、材料准备制定材料供应计划,组织相关材料和机械设备进场。机械设备应做好检修和保养,保证完好率。1、提前准备预制构件生产前的孔洞位置留置、构件预留连接件构件、吊点形式布置及预埋件材料准备,项目分包方准备预制构件安装前的吊梁吊架、竖向支撑、斜向支撑相应材料准备。2、构件进场后,现场施工质检员组织对构件自检验收。验收内容应包括:构件的质量保证资料是否齐全;构件的外形几何尺寸是否与图纸相符;误差是否超标;是否与要求发货数量相符。3、预制构件吊装须经项目技术负责人同意并严格核对相应检测报告内容自检通过后报请监理审验、批准,方可进入安装工序,且吊装时龄期不得低于 28 天,抗压强度实际值不得低于设计要求。4、吊装材料准备:吊装主要材料序号1234567891011机械名称塔吊汽车吊钢丝绳钢制扁担墙板吊具楼梯吊具U 型卸扣各种类型调整件各种类型螺栓、垫片、垫环各种手动工具、葫芦经纬仪、水平仪数量4 台1 台10 付2 个10 付10 付6 付规格型号TC7020/ TC703550T6*7 股(1+6)直径 20.5mm 绳纤维芯苏州一光自有、租赁租赁租赁自有自有自有自有自有自有自有自有自有 2、转换层工作准备1、转换层墙体钢筋定位措施:1) 预埋好斜撑埋件,根据 PC 墙板数量提前加工好,每块 PC 墙板预埋 2 个。预埋时项目部给出控制线,PC 安装班组进行分尺预埋。2) 预埋好剪力墙、柱预埋件,根据 PC 墙板数量提前加工好,每块 PC 墙板预埋数量按图纸。预埋时项目部给出控制线,PC 安装班组进行分尺预埋。严格控制平面位置和水平高度,定位采用附加筋,严禁直接焊接在主筋上。允许偏差±5mm。3)转换层楼面混凝土浇筑施工前,需派专人安排测量人员用水准仪及楼面标高水平控制点检查楼面浇筑标高,尤其是内外墙根部位置标高,以免影响后期预制墙体安装。4)转换层楼面混凝土浇筑完毕后,测量放线人员及时放楼层墙体边线及控制线,根据边线用定型钢模具再加以校正,将偏心钢筋用钢管调直。3、场内外准备(1)场内准备本项目配备 4 台塔吊,保证塔吊全覆盖各栋号,并满足 PC 安装,确保平均每 6 天一层的节点。各栋号同时吊装施工,造成现场塔吊的平面布置交...

1、当您付费下载文档后,您只拥有了使用权限,并不意味着购买了版权,文档只能用于自身使用,不得用于其他商业用途(如 [转卖]进行直接盈利或[编辑后售卖]进行间接盈利)。
2、本站所有内容均由合作方或网友上传,本站不对文档的完整性、权威性及其观点立场正确性做任何保证或承诺!文档内容仅供研究参考,付费前请自行鉴别。
3、如文档内容存在违规,或者侵犯商业秘密、侵犯著作权等,请点击“违规举报”。

碎片内容

PC吊装技术交底

爱的疯狂+ 关注
实名认证
内容提供者

该用户很懒,什么也没介绍

确认删除?
VIP
微信客服
  • 扫码咨询
会员Q群
  • 会员专属群点击这里加入QQ群
客服邮箱
回到顶部