电脑桌面
添加小米粒文库到电脑桌面
安装后可以在桌面快捷访问

玻璃肋的专项施工方案

玻璃肋的专项施工方案_第1页
1/26
玻璃肋的专项施工方案_第2页
2/26
玻璃肋的专项施工方案_第3页
3/26
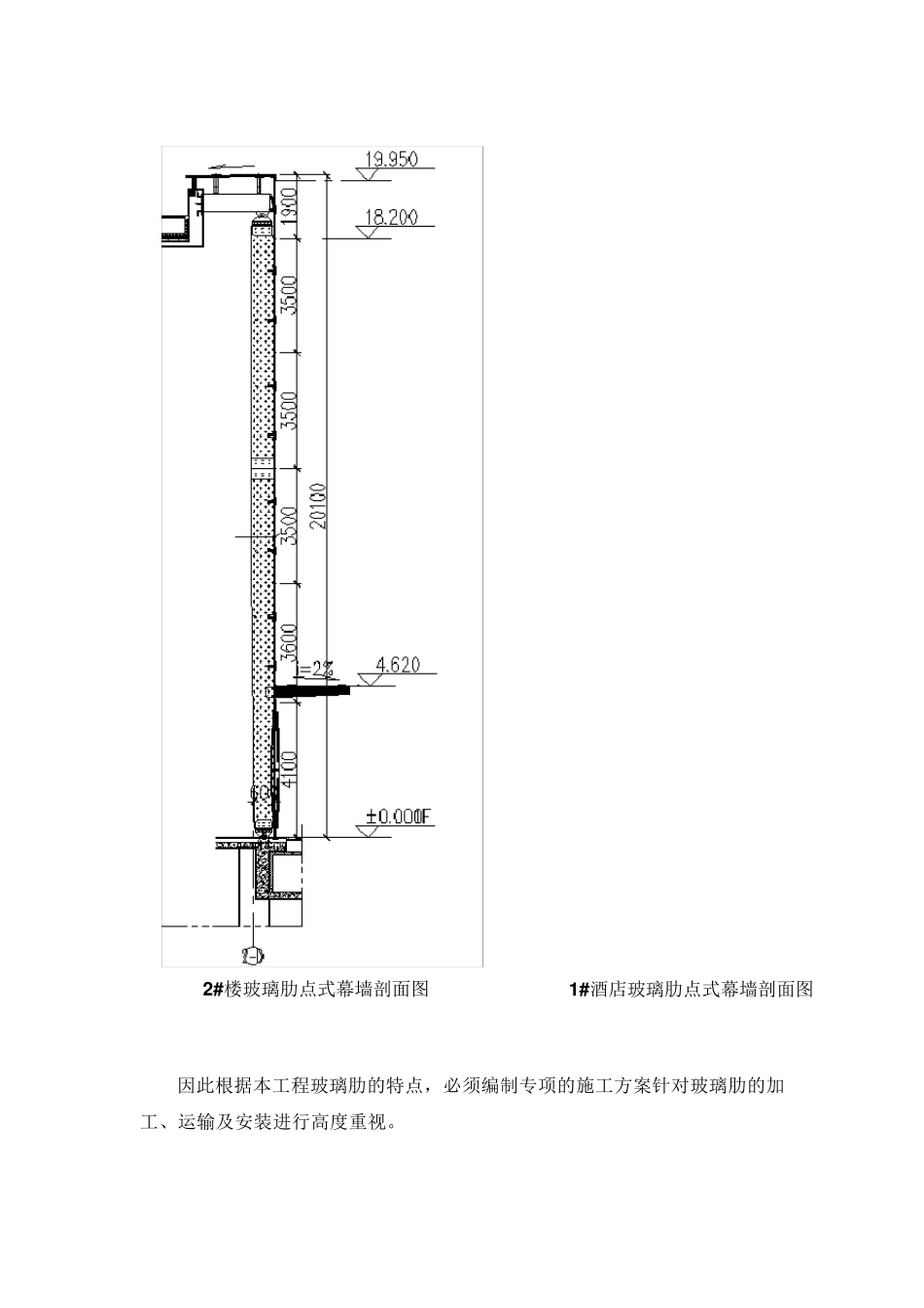
第三章 玻璃肋的专项施工方案 本工程存在大量的肋玻璃幕墙,如4#楼入口处立面和采光顶部分的幕墙采用玻璃肋点式支撑体系,2#楼中心艺术大堂立面及采光顶幕墙采用玻璃肋点式幕墙系统。1#酒店大堂采用玻璃肋点式幕墙系统等。其中肋玻璃规格最大的为900X12170X95(m m ),重量最重可达 373Kg 左右。主要规格及位置如下: 4 # 楼玻璃肋点式幕墙剖面图 因此根据本工程玻璃肋的特点,必须编制专项的施工方案针对玻璃肋的加工、运输及安装进行高度重视。 2 # 楼玻璃肋点式幕墙剖面图 1 # 酒店玻璃肋点式幕墙剖面图 一、玻璃肋的加工 玻璃肋的加工主要在玻璃材料厂家工厂内完成,我们根据最终的施工图纸将玻璃肋的具体尺寸及要求提供给玻璃材料生产厂家,玻璃生产厂家根据具体的加工图纸进行加工生产。为了确保玻璃肋的加工质量,需要对玻璃肋的采购方面加强控制,具体如下: 1 、根据建设单位和业主对本工程功能的总体定位,为保证工程达到创优目标管理,严格遵守建设单位的技术要求,并参照相关的规范和标准,对所有采用的玻璃肋材料必须为没有缺陷的材料,我公司直接从产品的生产厂家或指定授权代理商采购做起,以确保本工程的整体质量。 2 、材料采购前,我司材料供应部将编制相关玻璃肋的产品资料提交业主、设计、监理单位审核,一旦玻璃肋供应商确定后将提供相应的样品(包括材料的提交日期、审阅、修正和重新提交及开始生产所要求的日期)提交建设单位。 3 、材料如期进厂,是正常生产的先决条件。对此,我们一方面加快设计进程,提前制定材料定额,另一方面,我们将要求材料厂商加快生产进度,保障我方的生产需求。 4 、基于本工程特 殊 情 况 ,根据质量管理体系 要求,将质量控制延 伸 至 玻璃肋供货 厂商,为了做到这 一点 ,我们将依 靠 与 材料厂家的多 年 良 好 的合 作 关系 ,派 质检 员 到供货 厂,进行现 场 调 度控制,使 玻璃肋材料都 能按 期或提前进厂,并发 货 前进行检 验 ,缩 短 不 合 格产品处 理周 期,为施工缩 短 进度争 取 时 间 。此外 ,进货 的玻璃肋要提供质量保证证书 ,完整的质量检 验 报 告 ,并严格按 照相关标准进行验 收 。 二 、玻璃肋的运 输 根据本工程玻璃肋的具体特 点 ,玻璃肋由 于尺寸规格大 及重量比 较 重,单块玻璃肋的搬 运 都 必须借 助 专 用的吊 装 工具才 行,因 此我们要求厂家在肋玻...

1、当您付费下载文档后,您只拥有了使用权限,并不意味着购买了版权,文档只能用于自身使用,不得用于其他商业用途(如 [转卖]进行直接盈利或[编辑后售卖]进行间接盈利)。
2、本站所有内容均由合作方或网友上传,本站不对文档的完整性、权威性及其观点立场正确性做任何保证或承诺!文档内容仅供研究参考,付费前请自行鉴别。
3、如文档内容存在违规,或者侵犯商业秘密、侵犯著作权等,请点击“违规举报”。

碎片内容

玻璃肋的专项施工方案

确认删除?
VIP
微信客服
  • 扫码咨询
会员Q群
  • 会员专属群点击这里加入QQ群
客服邮箱
回到顶部