电脑桌面
添加小米粒文库到电脑桌面
安装后可以在桌面快捷访问

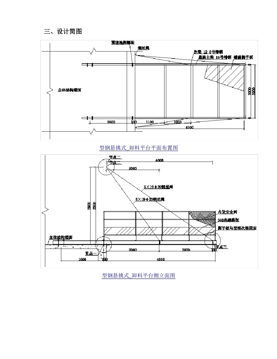
型钢悬挑卸料平台计算书品茗

型钢悬挑卸料平台计算书品茗_第1页
1/12
型钢悬挑卸料平台计算书品茗_第2页
2/12
型钢悬挑卸料平台计算书品茗_第3页
3/12
型钢悬挑卸料平台计算书计算依据:1、《建筑施工高处作业安全技术规范》JGJ80-20162、《钢结构设计规范》GB50017-2003一、构造参数卸料平台名称卸料平平台卸料平台类型类型一:主梁垂直建筑外墙卸料平台支撑方式平台宽度 B(m)考虑主梁内锚长度上拉钢丝绳2是平台长度 A(m)卸料平台与主体结构连接方式主梁建筑物内锚长度 Lm(mm)主梁间距 L1(m)4.1地脚螺栓16002主梁外锚 固点到建筑物边缘的距离 100c(mm)次梁间距 s(m)内侧次梁离墙水平距离 a(m)11.1次梁外伸长度 m(m)外侧钢丝绳离墙水平距离 a1(m)内侧钢丝绳离墙水平距离 a2(m)042外侧钢丝绳上下固定点垂直距离 h1(m) 2.9内侧钢丝绳上部上下固定点垂直距离2.9h2(m)内侧钢丝绳上下固定点水平距离 s2(m) 2钢丝绳夹个数4外侧钢丝绳上下固定点水平距离 s1(m) 4计算内侧钢丝绳否二、荷载参数面板自重 Gk1(kN/m )主梁自重 Gk3(kN/m)20.390.197次梁自重 Gk2(kN/m)栏杆、挡脚板类型0.124栏杆、冲压钢脚手板挡板栏杆、挡脚板自重 Gk4(kN/m)安全网自重 Gk5(kN/m)堆放荷载 Pk(kN)施工活荷载动力系数0.150.01101.3安全网设置施工活荷载 Qk1(kN/m )堆放荷载作用面积 S(m )22设置密目安全网22三、设计简图型钢悬挑式_卸料平台平面布置图型钢悬挑式_卸料平台侧立面图节点一四、面板验算面板类型截面抵抗矩 W(cm )3冲压钢脚手板10.67面板厚度 t(mm)抗弯强度设计值[f](N/mm )28205面板受力简图如下:计算简图取单位宽度 1m 进行验算q=1.2×Gk1×1+1.4×(1.3×Qk1+Pk/S)×1=1.2×0.39×1+1.4×(1.3×2+10/2)×1=11.108kN/mq静=1.2×Gk1×1=1.2×0.39×1=0.468kN/mq活=1.4×(1.3×Qk1+Pk/S)×1=1.4×(1.3×2+10/2)×1=10.64kN/m抗弯验算:Mmax=0.1×q静×s2+0.117×q活×s2=0.1×0.468×12+0.117×10.64×12=1.292kN·mσ=Mmax/ W=1.292×106/(10.67×103)=121.057N/mm2<[f]=205N/mm2面板强度满足要求!五、次梁验算次梁类型截面惯性矩 Ix(cm )抗弯强度设计值[f](N/mm )24槽钢391.47205次梁型钢型号截面抵抗矩 Wx (cm )弹性模量 E(N/mm )2312.6 号槽钢62.14206000次梁内力按以两侧主梁为支承点的简支梁计算:承载能力极限状态:q1=(1.2×Gk1+1.4×1.3×Qk1)×s+1.2×Gk2=(1.2×0.39+1.4×1.3×2)×1+1.2×0.1237=4.256kN/mp1=1.4×Pk=1.4×10=14kN正常使用极限状态:q2=(Gk1+Qk1)×s+Gk2=(0.39+2)×1+0.1237=2.514kN/mp2=Pk=10kN1、抗弯强度计算简图Mmax=q1(L12/8-m2/2)+p1...

1、当您付费下载文档后,您只拥有了使用权限,并不意味着购买了版权,文档只能用于自身使用,不得用于其他商业用途(如 [转卖]进行直接盈利或[编辑后售卖]进行间接盈利)。
2、本站所有内容均由合作方或网友上传,本站不对文档的完整性、权威性及其观点立场正确性做任何保证或承诺!文档内容仅供研究参考,付费前请自行鉴别。
3、如文档内容存在违规,或者侵犯商业秘密、侵犯著作权等,请点击“违规举报”。

碎片内容

型钢悬挑卸料平台计算书品茗

爱的疯狂+ 关注
实名认证
内容提供者

该用户很懒,什么也没介绍

确认删除?
VIP
微信客服
  • 扫码咨询
会员Q群
  • 会员专属群点击这里加入QQ群
客服邮箱
回到顶部