电脑桌面
添加小米粒文库到电脑桌面
安装后可以在桌面快捷访问

型钢悬挑脚手架扣件式技术交底

型钢悬挑脚手架扣件式技术交底_第1页
1/10
型钢悬挑脚手架扣件式技术交底_第2页
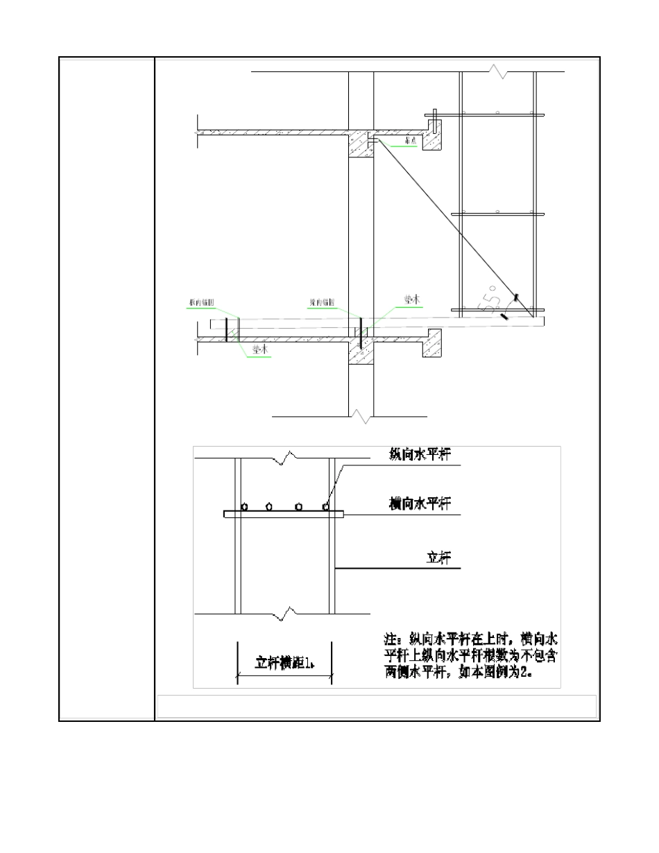
2/10
型钢悬挑脚手架扣件式技术交底_第3页
3/10
型钢悬挑脚手架(扣件式)技术交底工程名称湘潭美的·国宾府项目一期A区及地下室工程施工单位广宏建设集团有限公司交底部位交底内容脚手架搭设方式双排脚手架,脚手架搭设高度18m;钢管类型Ф48×3.5;脚手架沿纵向搭设长度100m;立杆步距1.8m,立杆纵距或跨距la:1.5m;立杆横距lb:0.8m;双立杆计算方法为不设置双立杆;挡脚板:2步1设,脚手板:2步1设,横向斜撑:6跨1设;连墙件布置方式为两步三跨,连墙件连接方式为扣件连接;钢丝绳绳夹型式为抱合式,钢丝绳不均匀系数α为0.85,钢丝绳安全系数k=9,拴紧绳夹螺帽时螺栓上所受力T=15.19kN,钢丝绳绳夹数量为4,吊环设置为共用;第1次卸荷位置高度:18m,卸荷段净高1.8m,钢丝绳上下吊点的竖向距离ls3m,上吊点距内立杆下吊点的水平距离HS300mm,上吊点距外立杆下吊点的水平距离HS1100mm,卸荷点水平间距HL1.5m;主要参数采用普通主梁悬挑方式,主梁间距1500mm,主梁与建筑物连接方式平铺在楼板上,采用U型锚固螺栓锚固,锚固螺栓/钢筋直径16mm,主梁建筑物外悬挑长度3600mm,主梁外锚固点到建筑物边缘的距离100mm,主梁建筑物内锚固长度1600mm,主梁材料为工字钢,型号为16号工字钢,主梁合并根数1根;各排立杆依次距主梁外锚固点水平距离:400、1200;悬挑型钢主梁上第1个支撑点,支撑方式为上拉,材料类型为钢丝绳,距主梁外锚固点水平距离1150mm,支撑件上下固定点的垂直距离3300mm,支撑件上下固定点的水平距离1050mm;悬挑型钢主梁上第2个支撑点,支撑方式为下撑,材料类型为工字钢,距主梁外锚固点水平距离1160mm,支撑件上下固定点的垂直距离3300mm,支撑件上下固定点的水平距离1050mm;分项工程名称脚手架工程交底时间2017/11/13安装示意图施工要求:1、悬挑梁定距定位,悬挑长度应按设计确定。上部脚手架立杆与挑梁支承结构有可靠的定位连接措施,采用在挑梁或纵向联粱上焊接100mm、外径Φ25mm的钢筋,立杆套在其外,并同时在立杆下部设置扫地杆。2、U型螺栓预埋件位置宜为悬挑梁尾端向里20㎝处;尾端预埋两个U型锚固环,两环之间间距200~400mm之间,同时用2根1.5米长直径14三级钢筋放置U型筋上部,U型螺栓与悬挑梁间隙用木楔楔紧。悬挑端锚固环预埋在结构梁内,特殊部位(如悬挑构件)支撑点位于结构梁上,不得位于悬挑板或悬挑梁上,但悬挑梁位置必须预埋一个U型锚固环,起固定作用,悬挑工字钢不能与悬挑结构梁或板直接接触,需用木方垫起,与结构面直接预留20~30mm距离。3、钢丝绳卸荷锚...

1、当您付费下载文档后,您只拥有了使用权限,并不意味着购买了版权,文档只能用于自身使用,不得用于其他商业用途(如 [转卖]进行直接盈利或[编辑后售卖]进行间接盈利)。
2、本站所有内容均由合作方或网友上传,本站不对文档的完整性、权威性及其观点立场正确性做任何保证或承诺!文档内容仅供研究参考,付费前请自行鉴别。
3、如文档内容存在违规,或者侵犯商业秘密、侵犯著作权等,请点击“违规举报”。

碎片内容

型钢悬挑脚手架扣件式技术交底

您可能关注的文档

确认删除?
VIP
微信客服
  • 扫码咨询
会员Q群
  • 会员专属群点击这里加入QQ群
客服邮箱
回到顶部