电脑桌面
添加小米粒文库到电脑桌面
安装后可以在桌面快捷访问

电气工程施工图预算编制VIP免费

电气工程施工图预算编制_第1页
1/100
电气工程施工图预算编制_第2页
2/100
电气工程施工图预算编制_第3页
3/100
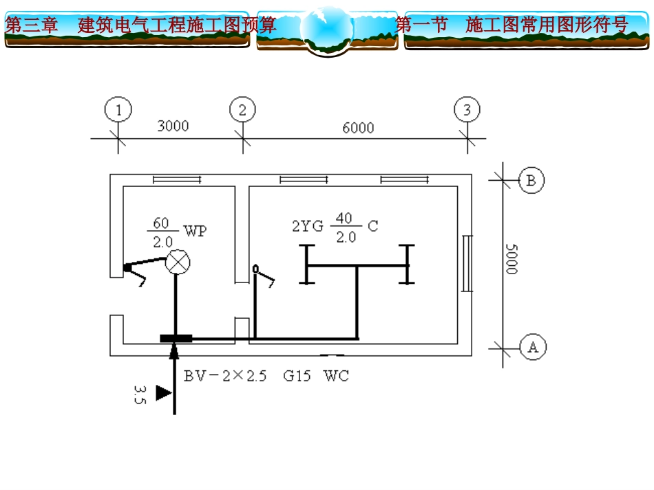
第三章建筑电气工程施工图预算第三章建筑电气工程施工图预算编制第一节常用图形符号章节内容:1、建筑电气工程施工图常用图形符号2、建筑强电安装工程量计算3、建筑弱电安装工程量计算4、综合布线系统安装工程量计算5、电气安装工程施工图预算编制实例第三章建筑电气工程施工图预算第一节建筑电气工程施工图常用图形符号做好电气工程施工图预算的关键是看懂电气施工平面图和电气系统图。这些图纸当中标注了各种变配电设备、电缆种类及敷设方式、配管配线种类及敷设方式、照明器具及安装方式等等。这些都是通过全国统一的图形符号来表达的。因此,熟悉常用的电气施工图纸图形符号,是做好电气工程施工图预算的基本要求。常用图形符号详见p39-46记住这些常用符号的方法不是一个个地去记住它。而是通过大量的阅读施工图纸来掌握它。例如下面两个图。第一节施工图常用图形符号第三章建筑电气工程施工图预算第一节施工图常用图形符号第三章建筑电气工程施工图预算第一节施工图常用图形符号第三章建筑电气工程施工图预算第二节建筑强电安装工程量计算本节内容:1、变配电装置工程量计算2、母线及绝缘子安装工程量计算3、高压控制台、柜、屏安装及低压配电控制设备安装工程量计算4、电缆工程量计算5、配管配线工程量计算6、电机安装的检查接线与调试工程量计算7、照明器具安装工程量计算8、电梯电器安装工程量计算9、防雷及接地装置工程量计算10、10kv以下架空配电线路工程量计算11、电气调试工程量计算第二节建筑强电安装工程量计算第三章建筑电气工程施工图预算一、变配电装置工程量计算发电厂(站)发出的电,要经过一系列升压、降压的变电过程,才能安全有效地输送、分配到用电设备和器具上。通常将35kv以上电压的线路称为送电线路,10kv以下电压的线路称为配电线路。建筑电气是对配电线路系统的应用。变配电工程是变电、配电工程的总称,变电是采用变压器把10kv电压降低为380v/220v,配电是采用开关、保护电器、线路,安全可靠地进行电能源分配,一般把超过1kv的电能称为高压电,1kv以下的称为低压电,而36v以下叫安全电压。变配电工程的内容主要是安装全部电气设备,包括变压器、各种高压电器和低压电器。变配电装置工程量计算及定额套用,执行第二篇(部)《电气设备安装工程》定额中的规定。第二节建筑强电安装工程量计算第三章建筑电气工程施工图预算10kV以下变配电装置,有架空进线和电缆进线等安装方式。变配电进线方式不同,控制设备不同,工程量列项内容也不相同,但工程量的计算顺序均从进户装置开始进行工程量的计算。变配电装置进线及设备如下图所示。第二节建筑强电安装工程量计算第三章建筑电气工程施工图预算1、变压器安装工程量计算(1)变压器安装,按不同电压等级、不同容量、不同类型。变配电电压等级一般均为10KV以下;变压器电压容量为100—2500KVA;变压器类型分为油浸电力变压器、自耦式变压器、带负荷调压变压器、电炉变压器、整流变压器,干式变压器等。1)变压器安装包括的内容:变压器安装定额中包括的内容有:开箱检查、本体就位、器身检查、套管、油枕及散热器的清洗、油柱试验、风扇、油泵电机的清洗检查接线,附件安装、垫铁及止轮器制作安装、补充变压器油、安装后整体密封试验、接地、补漆。2)电力变压器安装定额不包括的内容:下列内容必须另列项目进行计算①电力变压器系统调试第二节建筑强电安装工程量计算第三章建筑电气工程施工图预算②变压器油的耐压试验、混合试验等内容,无论是施工单位自检或委托电力试验部门代验,均按实际发生计算;③变压器油过滤,以变压器铭牌油量加上损耗计算过滤工程量,以t计算。计算公式如下:油过滤量=变压器铭牌油量×(1+1.8%)注意:河北省预算定额施工中变压器油的过滤损耗及操作损耗已包括在有关项目中。④变压器干燥,另列项目按台计算,若搭干燥棚时,搭拆费另计。⑤变压器端子箱制作安装,应分别列项计算。按台计算。⑥端子板外接线,按10头计算。⑦变压器二次喷漆,另列项目计算。按喷漆表面积计算。第二节建筑强电安装工程量计算第三章建筑电气工程施工图预算2、配电装置安装(1)断路器(QF)、负荷开...

1、当您付费下载文档后,您只拥有了使用权限,并不意味着购买了版权,文档只能用于自身使用,不得用于其他商业用途(如 [转卖]进行直接盈利或[编辑后售卖]进行间接盈利)。
2、本站所有内容均由合作方或网友上传,本站不对文档的完整性、权威性及其观点立场正确性做任何保证或承诺!文档内容仅供研究参考,付费前请自行鉴别。
3、如文档内容存在违规,或者侵犯商业秘密、侵犯著作权等,请点击“违规举报”。

碎片内容

电气工程施工图预算编制

您可能关注的文档

确认删除?
VIP
微信客服
  • 扫码咨询
会员Q群
  • 会员专属群点击这里加入QQ群
客服邮箱
回到顶部