电脑桌面
添加小米粒文库到电脑桌面
安装后可以在桌面快捷访问

房屋建筑制图统一标准

房屋建筑制图统一标准_第1页
1/41
房屋建筑制图统一标准_第2页
2/41
房屋建筑制图统一标准_第3页
3/41
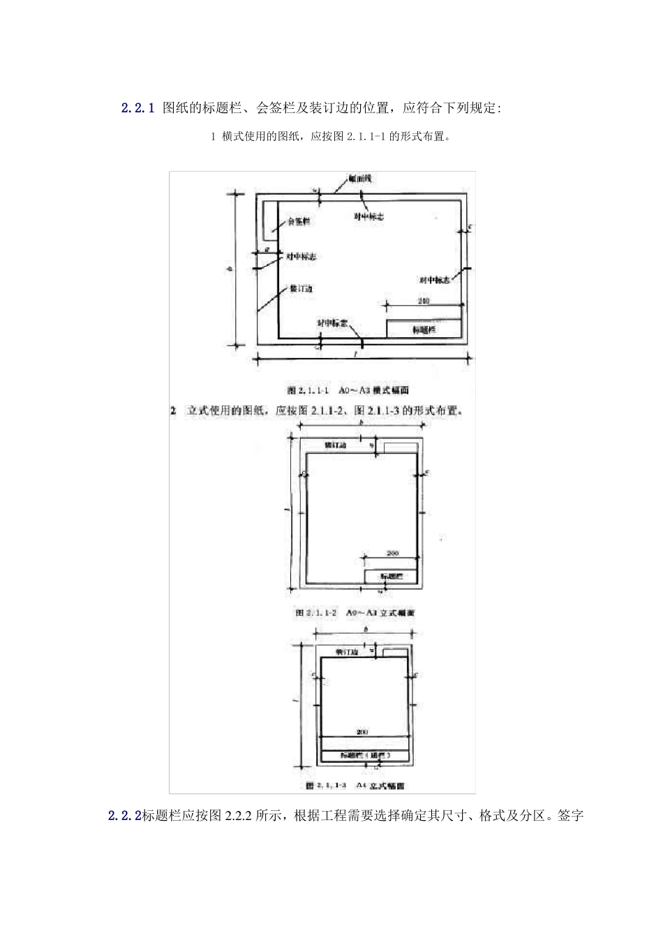
房屋建筑制图统一标准1 总则1.0.1 为了统一房屋建筑制图规则,保证制图质量,提高制图效率,做到图面清晰、简明,符合设计、施工、存档的要求,适应工程建设的需要,制定本标准。1.0.2 本标准是房屋建筑制图的基本规定,适用于总图、建筑、结构、给水排水、暖通空调、电气等各专业制图。1.0.3 本标准适用于下列制图方式绘制的图样:1 手工制图;2 计算机制图。1.0.4 本标准适用于各专业下列工程制图:1 新建、改建、扩建工程的各阶段设计图、竣工图;2 原有建筑物、构筑物和总平面的实测图;3 通用设计图、标准设计图。1.0.5 房屋建筑制图,除应符合本标准外,还应符合国家现行有关强制性标准的规定以及各有关专业的制图标准。2 图纸幅面规格与图纸编排顺序2.1 图纸幅面2.1.1 图纸幅面及图框尺寸,应符合表 2.1.1 的规定及图2.1.1-1~图 2.1.1-3 的格式。2.1.2 需要微缩复制的图纸,其一个边上应附有一段准确米制尺度,四个边上均附有对中标志,米制尺度的总长应为 100mm,分格应为 10mm。对中标志应画在图纸各边长的中点处,线宽应为 0.35mm,伸入框内应为 5mm。2.1.3 图纸的短边一般不应加长,长边可加长,但应符合表 2.1.3 的规定。2.1.4 图纸以短边作为垂直边称为横式,以短边作为水平边称为立式。一般 A0~A3 图纸宜横式使用;必要时,也可立式使用。2.1.5 一个工程设计中,每个专业所使用的图纸,一般不宜多于两种幅面,不含目录及表格所采用的 A4 幅面。2.2 标题栏与会签栏2.2.1 图纸的标题栏、会签栏及装订边的位置,应符合下列规定:1 横式使用的图纸,应按图 2.1.1-1 的形式布置。2.2.2标题栏应按图 2.2.2 所示,根据工程需要选择确定其尺寸、格式及分区。签字区应包含实名列和签名列。涉外工程的标题栏内,各项主要内容的中文下方应附有译文,设计单位的上方或左方,应加“中华人民共和国”字样。2.2.3会签栏应按图 2.2.3 的格式绘制,其尺寸应为 100mm×20mm,栏内应填写会签人员所代表的专业、姓名、日期(年、月、日);一个会签栏不够时,可另加一个,两个会签栏应并列;不需会签的图纸可不设会签栏。2.3 图纸编排顺序2.3.1 工程图纸应按专业顺序编排。一般应为图纸目录、总图、建筑图、结构图、给水排水图、暖通空调图、电气图……等。2.3.2 各专业的图纸,应该按图纸内容的主次关系、逻辑关系,有序排列。3 图线3.0.1 图线的宽度 b,宜从下列线宽系列中选取:2.0、1.4、1.0、0.7、0.5...

1、当您付费下载文档后,您只拥有了使用权限,并不意味着购买了版权,文档只能用于自身使用,不得用于其他商业用途(如 [转卖]进行直接盈利或[编辑后售卖]进行间接盈利)。
2、本站所有内容均由合作方或网友上传,本站不对文档的完整性、权威性及其观点立场正确性做任何保证或承诺!文档内容仅供研究参考,付费前请自行鉴别。
3、如文档内容存在违规,或者侵犯商业秘密、侵犯著作权等,请点击“违规举报”。

碎片内容

房屋建筑制图统一标准

确认删除?
VIP
微信客服
  • 扫码咨询
会员Q群
  • 会员专属群点击这里加入QQ群
客服邮箱
回到顶部